前言:
设计说明:
《壹》源起.........
业主生活方式是平淡宁静而没有太多的讲究,但是生活相互扶持、相互鼓励,从而构建起一个富有情感的家。尊重彼此的个人空间和兴趣爱好。鼓励每个家庭成员都追求自己的梦想和热爱,只有身心都健康、快乐的人才能成就更美好的家庭。无论是追逐运动、沉浸于阅读、探索艺术创作等等,让我们开启一个崭新的空间
幸福的四口之家,拥有一对双胞胎儿女,为了给孩子带来了更多的欢声笑语和活力,业主委托我们做精心的设计和布置,旨在创造了一个充满爱和温暖的生活空间,让孩子们在这里成长、学习和享受家庭的陪伴。
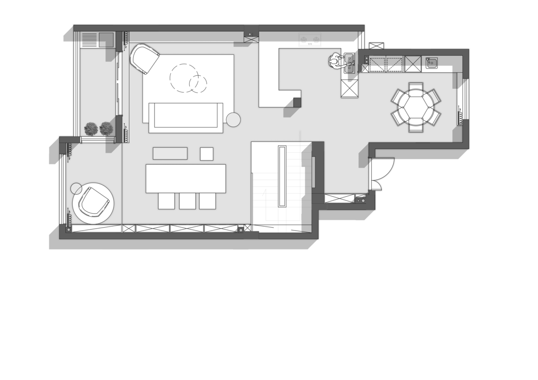
注重创造一个宽敞明亮的空间。大面积的开放式设计不仅使整个家居空间显得更加通透,而且能够满足孩子们的运动需求。开放式厨房与客厅相连,让我们在烹饪的同时与全家人保持互动,享受到和家人一起度过美好时光的乐趣。
注重舒适度,特别是对孩子们的考虑。孩子们的卧室是以他们喜欢的动漫元素为主题,精心布置了色
《贰》空间建构
错落高低的复式结构空间,上下楼层光线的穿透,客餐厨的贯穿,使整个空间,从自然采光到空间走向更流畅贯通起来,楼梯的错位高低,灯光的渲染增加了空间的延伸感。
开放式厨房与客厅相连,让我们在烹饪的同时与全家人保持互动,享受到和家人一起度过美好时光的乐趣。
开放厨房将厨房与餐厅空间打通,消除了传统餐厅与厨房之间的隔阂,让父母和孩子之间的互动更加自然和友好。孩子可以近距离地观察到父母的烹饪过程,感受到食物的制作过程,增加了用餐的乐趣和参与感。
并且一些壁柜、抽屉和嵌入式家具融入设计中,将闲置角落利用起来,为家庭提供足够的存储空间。收纳保持整齐有序,让整个家居宜居和宜工作。
《叁》材质 色系
大理石作为一种高贵、耐用的建筑材料,赋予了楼梯独特的质感和视觉效果,大理石的冷峻与胡桃木的温暖形成鲜明的对比,创造了一种独特的视觉冲击力,大理石的光泽和质感让整个楼梯显得高贵而华丽。
在设计上,楼梯的扶手采用了铝钢制作,既美观又实用。扶手的弧度和手感经过精心设计,为楼梯增添了一份舒适和安全感。同时,我们也在楼梯的踏步上加入了铝材的镶嵌,使整个楼梯更加独特和精致。
胡桃木搭配为整个空间增添了一份温馨和自然的气息。胡桃木的纹理细腻、色彩丰富,带来了一种自然的质感和温暖感。胡桃木的温柔与地面材质刚硬相互融合,形成了一种独特的和谐美感。
<br/
相关案例推荐
徐丽

粤公网安备 44010602000156号