前言:
设计并非只是遵循既定的概念,而是要适应场地和居者的现状,做出创造性的改变。一些基于想象的发挥,一些基于创造的实现,一起培育“花朵”的成长,守护家人每一天,生活悠悠,健康优优,灵感有有。
本案屋主是一位从事广告拍摄行业的妈妈,为了小孩读书购入这套房子,因为平时小孩的爷爷奶奶会来照顾,四房的空间正好满足了目前的使用需求。屋主性格非常随和,审美品位极佳,对设计师提出的一些理念也非常认同。日常喜欢收藏一些日漫的手办周边,希望这次设计能将自身的爱好在空间中体现出来。另外考虑到孩子的年纪还小,需要大面积的亲子互动空间,因此公区做了开放式大横厅的设计,满足小朋友在家跑跑跳跳的需求。
拾起那些归于本身的生活片段,让设计走入每一位家庭成员的内心角落,与空间精神构建内在的文化映射!
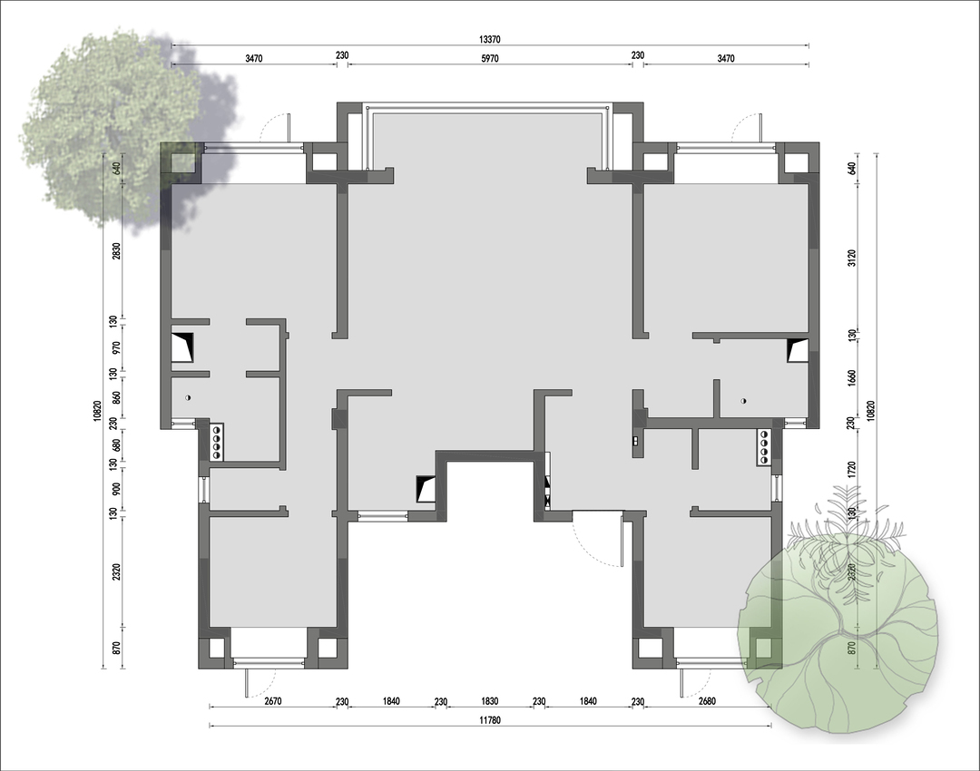
改造前户型缺陷:
1.入户视野受限,进门拥堵。
2.几间卧室的面积均不大,储物空间有限。
3.隔墙过多,造成很多边角空间,干扰动线,空间利用率极低。
4.阳台、客厅与餐厅的衔接失调,空间视野闭塞,缺乏亲子互动的空间。
改造后设计亮点:
1.进门区隔墙拆除,仅保留承重柱,扩增视野,增加视觉亮点。
2. 厨房门洞加宽,搭配玻璃移门,烹饪空间在开放和封闭模式之间随意切换。
3. 拆除主卧非承重墙之后,增加了一排储物柜,满足女屋主日常衣物收纳需求。
4. 儿童房内套储物间拆除,增加孩子的自由活动空间。
5. 摈弃传统的生活阳台,利用木质地台结合自由横厅,打造灵动的亲子互动休闲空间。
▲玄关。推门而入,迎面而来的开阔感着实让人身心愉悦。玄关区拆除局部隔墙,仅以承重柱作为进门空间与公区的区域界点,扩增空间视野。
▲玄关。同时承重柱被木质护墙板包裹,局部留出开放展示格,小朋友回家后的第一时间就是和可爱的手办say hi~
#现代#极简#简约#奶油#原木#三代同堂#亲子设计#适老化设计#收纳设计#旧房改造#动线规划#异形户型#中户型#手办#玄关
▲玄关。靠墙定制上下两排收纳柜,搭载柔和的灯光系统,方便日常足量的鞋子、包包、雨具的收纳,回家后就可以当个“甩手掌柜”。定制柜体做悬挑设计,避免了卫生死角,方便清洁打扫,懒人居家必备。
#现代#极简#简约#奶油#原木#三代同堂#亲子设计#适老化设计#收纳设计#旧房改造#动线规划#异形户型#手办#玄关#中户型
▲玄关。线条凹凸有致的灯光回廊,环绕型动线与带科技感的手办构成了一个奇幻的空间,原木+奶油色调柔和了线条边角的突兀感。
#现代#极简#简约#奶油#原木#三代同堂#亲子设计#适老化设计#收纳设计#旧房改造#动线规划#异形户型#手办#玄关#灯光设计#中户型
▲客厅。抬眼即是优美的拱形门洞,奶油色、木地板、温柔灯光,奠定空间优雅底色,简洁轻盈的桌椅,告别繁冗装饰的墙面,又让客厅氤氲着简约轻松的不凡气度。
#现代#极简#简约#奶油#原木#三代同堂#亲子设计#适老化设计#收纳设计#旧房改造#动线规划#异形户型#客厅#木地板#中户型
▲客厅。客餐厅以标准大横厅形制来布置,借助阳台宽绰落地窗引入的自然光线,公区仿佛被围拢在温柔梦境当中。
▲客厅。地毯主色调与地板同色,边缘与沙发相呼应,起到画龙点睛的作用。
#现代#极简#简约#奶油#原木#三代同堂#亲子设计#适老化设计#收纳设计#旧房改造#动线规划#异形户型#客厅#手办#中户型
▲客厅。客餐厅及阳台融为一体,扩大面积的同时,整屋采光非常充足,动态线十分流畅,也因此减少了老人与小朋友的磕磕碰碰。
#现代#极简#简约#奶油#原木#三代同堂#亲子设计#适老化设计#收纳设计#旧房改造#动线规划#异形户型#中户型#客厅
▲客厅。电视柜与墙面保持齐平,视觉上流畅简约,也与一旁的圆形拱门形成一方一圆的不对称美感。
▲客厅。下方设计木质地台,与地板色调呼应,又可以丰富电视区的视觉层次,同时也可以成为小朋友玩具的展示区。
#现代#极简#简约#奶油#原木#三代同堂#亲子设计#适老化设计#收纳设计#旧房改造#动线规划#异形户型#中户型#拱形门洞
▲客厅。屋主喜欢收藏手办,将最得意的收藏置于电视墙一侧,给低饱和度的空间带来一处视觉上的冲击,归家之后抬眼便是满心欢喜,也是小朋友可爱的童年“玩伴”。
#现代#极简#简约#奶油#原木#三代同堂#亲子设计#适老化设计#收纳设计#旧房改造#动线规划#异形户型#中户型#手办
▲客厅。落地式艺术沙发可以灵活挪动,让客厅在保守与奔放中自由切换。舒适宽敞的沙发,搭配圆润的边几,没有多余的棱角,更多的是柔软与包容,是一家大小闲坐观影的惬意场所,也是晒太阳看书的温雅之地。
#现代#极简#简约#奶油#原木#三代同堂#亲子设计#适老化设计#收纳设计#旧房改造#动线规划#异形户型#中户型#沙发#茶几
▲厨房。厨房与餐厅动态线布局更加合理化,拉进两个空间的距离,实现一体化。
▲厨房。厨房侧边墙体打造了一整排收纳柜,满足客厅储物需求的同时,对厨房储物进行一定的补充。将超大容量的冰箱与柜体相结合,平面干净整洁让人倍感舒适。
#现代#极简#简约#奶油#原木#三代同堂#亲子设计#适老化设计#收纳设计#旧房改造#动线规划#异形户型#中户型#厨房#冰箱
▲厨房。厨房门洞拓宽,并加装通透的玻璃移门,平时移门打开,厨房与公区互动连通,开阔自由。做饭时关上玻璃门,也不必担心油烟问题。
#现代#极简#简约#奶油#原木#三代同堂#亲子设计#适老化设计#收纳设计#旧房改造#动线规划#异形户型#中户型#厨房#玻璃门
▲厨房。U形操作台,将洗切动线梳理的井井有条。玻璃门设计也方便家长做饭时随时观察在公区玩耍的孩子动向。
▲厨房。米白色调的烹饪环境,也让人的烹饪心情无比愉快,沉浸在欢乐的气氛中与家人一同准备美食。
#现代#极简#简约#奶油#原木#三代同堂#亲子设计#适老化设计#收纳设计#旧房改造#动线规划#异形户型#中户型#厨房#移门
▲餐厅。简单的餐桌椅子,低饱和度的色调温暖着一日三餐,设计感满满的吊灯,时刻能吸引着还在探索宇宙的小男孩的好奇心,心甘情愿爬上餐桌。
▲餐厅。灯亮时,散发的暖暖灯光将一家人包裹着,似乎蕴含着彼此互相支持、互相温暖的深意。
#现代#极简#简约#奶油#原木#三代同堂#亲子设计#适老化设计#收纳设计#旧房改造#动线规划#异形户型#中户型#餐厅#餐桌椅
▲餐厅。餐厨空间根据区域应用特性,选择了不同的地面材质。餐厅的人字拼木地板温润自然,带出就餐时的闲适轻松感。厨房处选择高级灰地砖,不惧水油污染,方便清洁打理。
#现代#极简#简约#奶油#原木#三代同堂#亲子设计#适老化设计#收纳设计#旧房改造#动线规划#异形户型#中户型#餐厅#地砖#地板
▲餐厅。餐厅选择的家具呼应空间整体高级简约风格,通透亚克力材质桌腿,增加空间呼吸感。餐椅上的金属结构,让餐厅在享食功能之外,多了几分现代气质。
#现代#极简#简约#奶油#原木#三代同堂#亲子设计#适老化设计#收纳设计#旧房改造#动线规划#异形户型#中户型#餐厅
▲卫生间。主卫从原本的主卧中独立出来,同时满足儿童房和主卧两个空间的卫浴需求。淋浴区布置小型浴缸,满足居者在家泡澡需求,提升屋主生活质量。
#现代#极简#简约#奶油#原木#三代同堂#亲子设计#适老化设计#收纳设计#旧房改造#动线规划#异形户型#中户型#卫浴#浴缸
▲卫生间。洗手区选择抽拉式水龙头,使用灵活。上方镜柜+下方悬挑抽屉柜,充分发挥纵向空间功能,增加卫生间收纳能力。
#现代#极简#简约#奶油#原木#三代同堂#亲子设计#适老化设计#收纳设计#旧房改造#动线规划#异形户型#中户型#卫生间
▲卫生间。次卫空间重新规划,借次卫部分面积,实现卫浴区的干湿分离。靠墙定制收纳柜,上方可做置物空间,下方预留之地将洗衣机纳入其中,实现空间的最大化利用。
▲卫生间。淋浴区与干区以长虹玻璃门隔开,透光不透人,保护隐私的同时,不会影响空间采光。
#现代#极简#简约#奶油#原木#三代同堂#亲子设计#适老化设计#收纳设计#旧房改造#动线规划#异形户型#中户型#卫生间#镜柜
▲卧室。主卧与儿童房位于一侧,方便家长随时照应孩子。床尾拆除部分非承重墙,定制整排高柜,为屋主四季衣物收纳找到“置身”空间。
#现代#极简#简约#奶油#原木#三代同堂#亲子设计#适老化设计#收纳设计#旧房改造#动线规划#异形户型#中户型#卧室
▲卧室。睡眠空间延续公区的简洁风格,低调的深蓝色床品,搭配黑色皮质床头,烘托静谧高级的适睡氛围,引人沉入好梦!
#现代#极简#简约#奶油#原木#三代同堂#亲子设计#适老化设计#收纳设计#旧房改造#动线规划#异形户型#中户型#卧室#床品
▲老人房。次卧为孩子的爷爷奶奶居住,通过玄关区的改造,让进门区与次卧之间新增出一条动线,减少因为代际差异造成的居住不便。
▲老人房。次卧床头放置了一些小玩具以方便老人与小朋友的亲子互动。床尾布置电视,契合老人喜欢看电视的需求。
#现代#极简#简约#奶油#原木#三代同堂#亲子设计#适老化设计#收纳设计#旧房改造#动线规划#异形户型#中户型#老人房
▲老人房。原始飘窗部门做拆除处理,增扩出的空间布置一张成品书桌,睡前看书,醒后喝茶,惬意悠然。
#现代#极简#简约#奶油#原木#三代同堂#亲子设计#适老化设计#收纳设计#旧房改造#动线规划#异形户型#中户型#书桌
▲书房。进门区一侧的房间规划为书房,主要为了满足屋主偶尔在家处理工作的需求。书桌临窗布置,在熹微日光沐浴中工作,效率也会大大提升。
▲书房。一侧靠墙设计收纳柜,形制多样的柜格,让收纳变得精致而有条理。
#现代#极简#简约#奶油#原木#三代同堂#亲子设计#适老化设计#收纳设计#旧房改造#动线规划#异形户型#中户型#书房
▲儿童房。考虑到孩子正是充满想象力的年纪,儿童房在设计时融入了很多童趣元素,飞船壁纸,星球吊灯,将孩子的航天梦具象化至空间设计当中。
▲儿童房。书桌椅均选用了可调节高低的成长型桌椅,靠背舒适,保护小朋友的脊椎,呵护成长。
#现代#极简#简约#奶油#原木#三代同堂#亲子设计#适老化设计#收纳设计#旧房改造#动线规划#异形户型#中户型#儿童房
▲儿童房。儿童房拆除原始内套的小衣帽间之后,可布置面积增加。用弧面解决空间合并造成的顶部衔接问题,趣味感与艺术感兼具。
#现代#极简#简约#奶油#原木#三代同堂#亲子设计#适老化设计#收纳设计#旧房改造#动线规划#异形户型#中户型#儿童房
▲阳台。阳台区抬高做地台,明确区域界线,同时进行留白处理,为日后改造预留其它可能性。采用了与客厅同色却不同形式的地板去铺设,巧妙地让空间灵动起来。
▲阳台。地台下方的隐藏灯带,用精致光影让区域间的过渡趋于自然,室内的浪漫温情感也被转译出来。同时保障了老人与小朋友的安全,晚上玩耍时也不怕摔倒。
#现代#极简#简约#奶油#原木#三代同堂#亲子设计#适老化设计#收纳设计#旧房改造#动线规划#异形户型#阳台#地台#地板#纱窗#中户型
▲阳台。宽敞的阳台,能够极大程度地拥抱阳光与微风。闲暇时光,与小朋友在这里一起看书一起玩耍,一起躺着晒太阳,一起趴着看日落,一起细数窗外的车水马龙……尽享快乐的亲子时光~
#现代#极简#简约#奶油#原木#三代同堂#亲子设计#适老化设计#收纳设计#旧房改造#动线规划#异形户型#中户型#地板#地台#纱窗
相关案例推荐
玖柞制作私宅设计
设计师相关作品
编辑精选

粤公网安备 44010602000156号