前言:
本案位于闵行区浦江华侨城的大平层,房屋原始格局为四房三卫一厨房。居住人员包括一对父母、一个小孩,后续可能会聘请保姆。业主希望保留三个房间,主卧、儿童房,另设一个保姆间。卫生间保留两个,同时需要打造一个衣帽间和一间书房。
在空间改造上,计划将原始露台搭建为阳光房,拓展室内使用面积;把厨房改造成多功能房,满足多样化需求;同时扩大客厅空间,提升视野开阔度,营造更加宽敞舒适的居住环境。
在风格设计方面,整体以白色和原木色相结合,通过大量运用白色搭配原木色,打造自然温馨的居住环境,让业主仿若置身于充满生机的自然空间,时刻感受家的温暖与惬意。
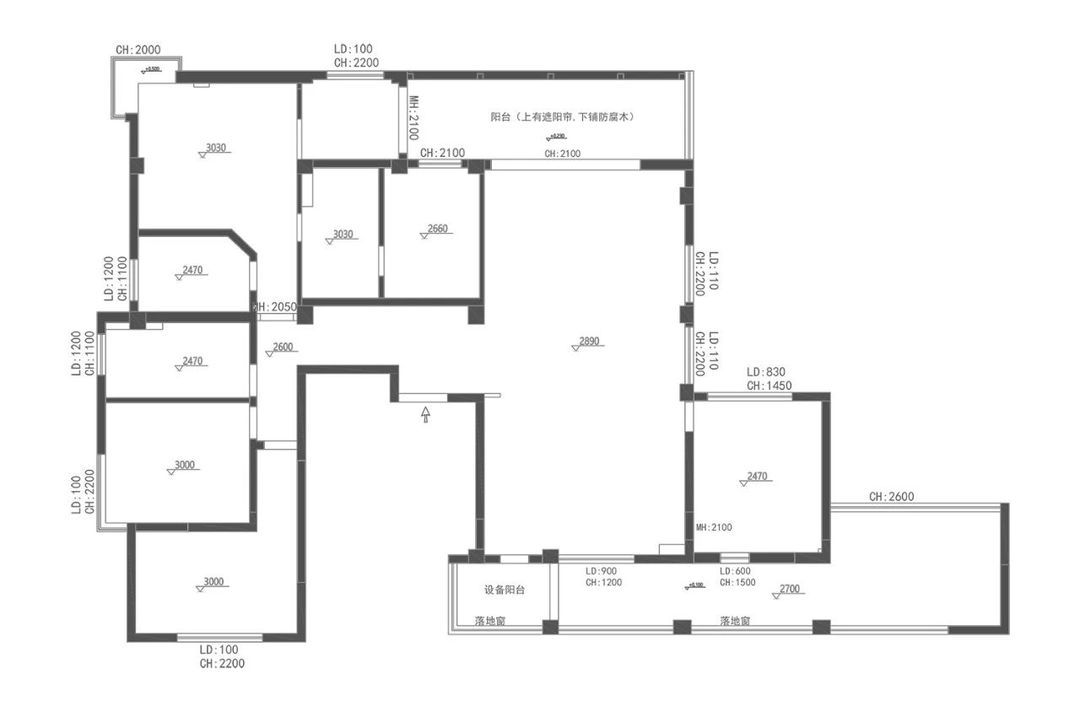
改造前平面布局图?
房屋原始格局为四房三卫一厨房,带有两个阳台。居住人员包括一对父母、一个小孩,后续可能会聘请保姆。业主希望保留三个房间,主卧、儿童房,另设一个保姆间。卫生间保留两个,同时需要打造一个衣帽间和一间书房。
改造后平面布局图?
在空间改造上,计划将原始露台搭建为阳光房,拓展室内使用面积;把厨房改造成多功能房,满足多样化需求;同时扩大客厅空间,提升视野开阔度,营造更加宽敞舒适的居住环境。
玄关入户门的左侧规划为睡眠区,右侧则是活动区域,以此实现动静分区,确保休息空间的静谧与活动空间的活力互不干扰。
原本入户正对着一面实体墙,为提升空间通透感,我们将其拆除,替换为玻璃隔断搭配悬念台面,上面摆放绿植,让入户瞬间便能收获惊艳视觉体验,同时极大地提升了采光效果。
整个走廊顶部采用木饰面装饰,并嵌入筒灯,不仅提升空间格调,还能通过柔和灯光营造温馨氛围。鞋柜的另一侧墙面,采用木饰面搭配内藏式隐形线形灯带,与过道尽头的隐形门巧妙融合,从视觉上弱化门的存在,使整体空间更显自然流畅,营造出浑然一体的美感。打开这扇隐形门,内部呈现出套房形式的布局,包含主卧、儿童房以及客房。套房设计既保证了各房间的独立性与私密性,又让空间利用更为合理高效,满足业主多样化的居住需求。
在玻璃玄关隔断的左侧设置鞋柜,柜体顶部到顶,底部与中间均做镂空处理,既保证了充足的收纳空间,又增添了轻盈感。
在玄关处,采用了弧形的卡座设计,与电视背景墙的弧形相互呼应,营造出和谐统一的视觉美感。
卡座的弧形设计,流畅的线条不仅巧妙利用了空间,还为归家之人提供了舒适的换鞋、小憩区域,彰显出独特的设计巧思。
客厅改造将原本包含在主卧进门一侧的小套间空间打通,使其与客厅合为一体。客厅沙发集中布局,增强空间的整体性与互动性。电视背景墙采用悬空设计,巧妙结合原始承重墙,运用钢结构悬挂电视,既稳固又具现代感。表面涂抹蛋壳艺术漆,电视嵌入其中,呈现出简洁美观的视觉效果。把部分插电设备隐匿于电视后方的柜体中,柜体底部采用大理石台面,并设计成弧形,增添柔和优雅的气质。
沙发靠背后精心设置了钢琴区,并与柜体进行一体化设计。柜体采用开放式层架结构,不仅为放置书籍提供了充足空间,还能完美陈列各类装饰品,为空间增添艺术氛围。在材质与色彩的搭配上,选用温暖自然的原木色作为主色调,同时穿插点缀黑色层板,通过深浅色调的碰撞,营造出独特而富有层次感的视觉效果,为整个空间注入时尚与个性元素。
餐厅采用岛台与餐桌相结合的形式,顶部设计了造型独特的吊灯,暖黄的灯光倾洒而下,瞬间营造出温馨浪漫的用餐氛围感。地面大面积铺设奶白色地砖,简约大气,让整个空间更显开阔明亮。
站在餐厅望向客厅,南北通透的格局让空间豁然开朗。设计师采用无主灯设计,进一步拓宽了视觉感受。整体空间以白色为主调,搭配温润的原木色家具,二者相得益彰,营造出温馨明亮的居家氛围,让人倍感舒适惬意。 整个顶部安装磁吸轨道灯和内嵌筒灯,让空间更显开阔大气。一整面白色窗纱窗帘,为空间带来极佳的通透感。
我们把原本的厨房空间巧妙改造成多功能卧室,同时将厨房迁移至原始设备空间一侧,沿着过道呈一字型靠墙布局。厨房台面下方精心嵌入烤箱与微波炉,而在台面的另一侧,定制了一整排集收纳与实用为一体的柜体,并搭配嵌入式电器,大幅提升了空间的收纳能力,功能十分强大。
厨房空间顺势延展至露台一侧,将此处规划为洗衣房区域。同时,对露台进行重新搭建,打造成阳光房,不仅为衣物晾晒提供了便利实用的专属空间,还能让阳光充分洒入,增添室内温馨氛围 。
我们对原始主卧内的套房布局重新规划,将卫生间改造成了衣帽间,极大提升了衣物收纳功能。主卧背景墙运用硬包木饰面与木格栅拼接,搭配内嵌隐形灯带,灯光亮起时,既能补充柔和光线,又营造出温馨浪漫的氛围,增强了空间层次感。左右两侧的吊灯进一步渲染氛围,为卧室增添温馨气息。
在床头柜一侧,定制悬空柜体用作化妆桌,巧妙利用空间,兼具美观与实用性。窗台一侧采用转角窗帘的弧形设计,为空间增添柔和弧度,视觉上更加灵动。原本的飘窗被打造成休闲空间,可供休憩、阅读。顶部采用悬空吊顶,并内嵌灯带,灯带散发的光线让卧室更具氛围感。
在主卧与阳台的衔接区域,我们匠心独运地将其打造成一处静谧书房。书房采用柜体与隐形门一体化设计,柜体沿着墙面有序排列,既可以收纳大量书籍、文件,又能摆放精致的摆件,兼具实用与装饰功能。
隐形门巧妙地融入柜体之中,当门闭合时,从外观上几乎难以察觉门的存在,使整个空间保持简洁流畅的视觉效果,极大地提升了空间的整体性与美观度。与此同时,在书房的墙面上设置了层架,层架不仅可以进一步收纳小型物品,还能作为独特的墙面装饰,摆放一些富有艺术感的工艺品,为书房增添文化氛围与艺术气息,打造出一个兼具收纳、装饰与实用功能的理想书房空间 。
整个儿童房以温馨的粉色系搭配纯净白色为主色调,营造出甜美烂漫的氛围。顶部选用悬空吊顶,轻盈的设计让空间更显开阔。沿着墙面定制了一排到顶的柜体作为衣柜,满足充足的衣物收纳需求,巧妙利用空间,整洁又美观。
在房间转角靠墙处,打造了一组集吊柜、地柜、隔板书架于一体的书柜,丰富的收纳与展示功能,为孩子的书籍、文具和玩具提供了有序的归置空间。特别增设的一排轨道插座,可灵活满足各类电子设备充电需求,使用起来便捷又安全。
房间摆放着可爱的卡通式儿童床,靠墙放置,有效节省空间。地面铺设地板,温润舒适。在转角窗户一侧,安置了柔软的落地沙发,为孩子打造了惬意的休闲角落。而在床头柜一侧,精心设计了童趣十足的吊灯,其独特造型在提供照明的同时,也为儿童房增添了一抹活泼的气息 。
相关案例推荐
麦古一
设计师相关作品

粤公网安备 44010602000156号