以不同的材質衍生的介面,於節點或顏色的接續上,交錯並列著與異材質的融合與鑲嵌藝術的完美表現。
2023-09-27
40587
前言:
空間在設計本身著重於連貫性的表現,透過轉折、延伸出視覺上的反差美感,藉由虛實比例上消弭結構壓力,從居住者的行為模式出發,呈現居住者獨特的品味及性格。
於廳區場域設計,利用建築縱身12米長的優勢,將客、餐廳、中島、廚房等區域機能,以同一軸線的開放方式規劃,並以連續開窗、線性天花設計,加深、拉闊空間主場氣勢…沙發後面以薄石板為主要材質,後方以隱藏門與儲藏室界定,以及充裕的收納機能;開放式的公領域設計,可以同時容納5-60人,滿足屋主好客的需求,更引入戶外寧靜優美風景,對應生活悠閒大器品味。
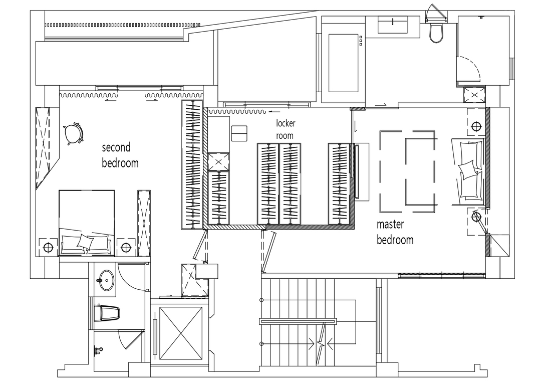
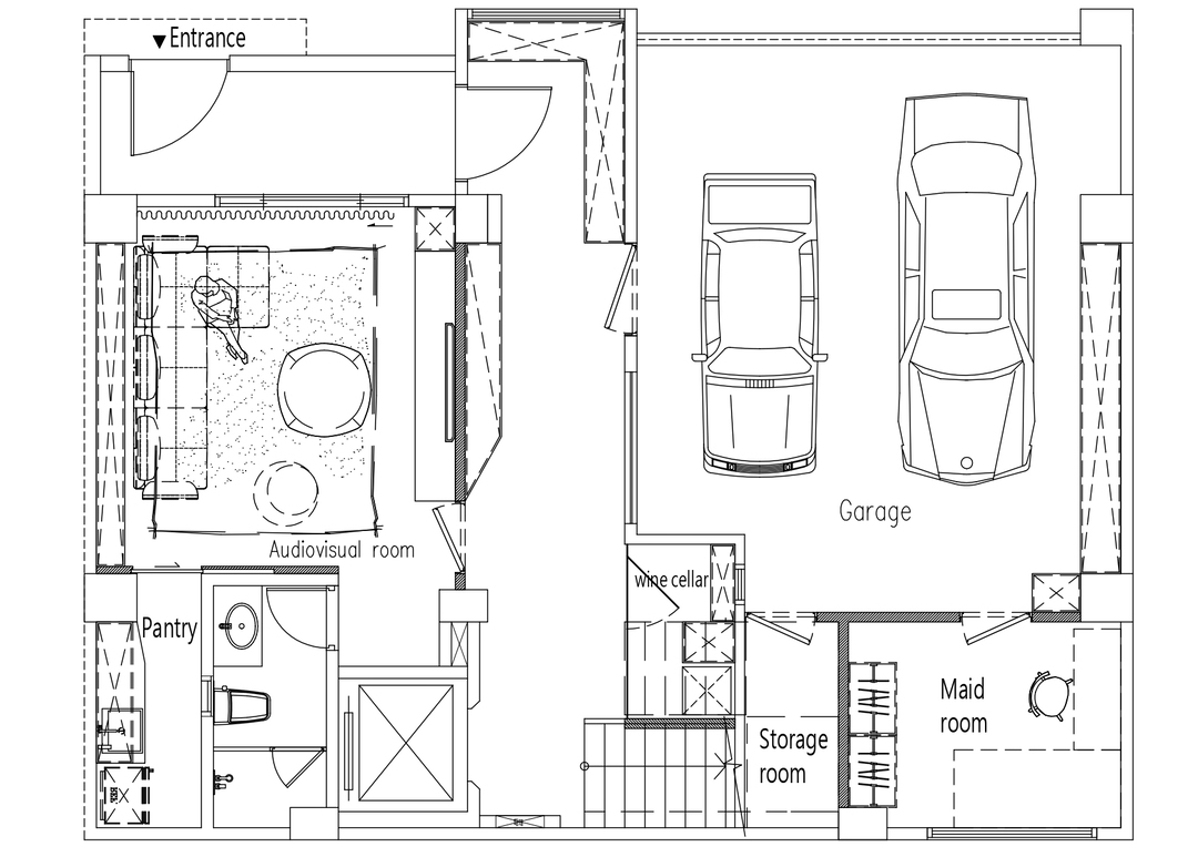
卧室
相关案例推荐
网友评论
深度空間設計
设计师相关作品

粤公网安备 44010602000156号