前言:
为了给客户提供更优质的服务体验,我们再一次踏上了品牌升级之旅。因此,这一次我们在办公室的选址上也是慎之又慎。上海工艺美术厂创立于1970年,是新中国成立以来,上海市人民政府首批认定的市级都市创业园区,也国内第一家生产软陶的单位,更是中国工艺艺术家的摇篮。整个厂区仍陈列着曾经使用过的机器零件,是一个具有强烈70年代工业发展印迹的厂房式建筑,在闹市区难能可贵。翰高设计的新办公室便坐落其中。因此,在对空间进行修复、改造之前,我们的整个设计团队数次拜访工艺美术厂,在了解研究工厂的演变史后,设计团队一致认为,旧改项目的关键在于度的把握。在新与旧之间,在功能与美学之间,都要基于“真善美”来平衡建筑历史与室内设计之间的表达。
真 · 尽可能保留原建筑的真实性,比如立柱和老式钢窗。
善 · 用游园式的开放改造,向客户和园区里的邻居释放同等的善意。
美 · 连接过去与未来,用新颖的材质和手法满足年轻群体的喜好。
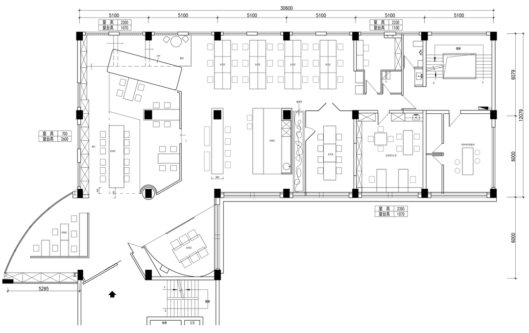
● 整个空间布局呈L型,是点柱式结构,没有一根横梁,,空间通透,层高3.42米,采光极好。
● 南面和东面各有一个入口和一个楼梯间,主入口在南面。
● 我们改变了进门方式,将原本直进直出的门洞,改成了一个30°度角的斜角,为入口处平添了一个观景门厅,既增加了进门的仪式感,也保证了一定的私密性。
● 进门左侧三角形区域则顺应其特殊形态,做成“3+2+1”前台接待区。
● 进门右侧新增了一个小型储物间和一个半开放式的洽谈区,并在洽谈区设置了一个弧形的壁炉端景。
● 借由门厅的改变,整个空间动线也由原本单一的直进直出,改为了一步一景式的游园式格局。
● 进门后第一景是洽谈区,洽谈桌错层围合式分布,靠墙一侧布满储物柜以便展示材料和所有奖杯。
● 紧靠洽谈区的一个方盒子是一个挑空的儿童乐园,专为有小孩的家庭服务。
● 穿过洽谈区即到达休闲区,我们倚原始立柱打造了一个超长餐桌,然后将一旁的地面整体抬高做成可供至少10人同时使用的吧台。
● 办公区和休闲区则占据大半个横轴线,根据原始立柱的位置,依次排布。
入门提炼出老厂房的线条样式,用水泥和生锈的铁艺LOGO,并配以黑色的门框进行重组与结构。由两组富有雕塑感的地灯来开启时光之门,引导客户前往。
流转的门厅是光与影的折叠。粗矿的细节之美,在暖调的辉光之下,也多了一些人间烟火气息。门厅是一个空间的门面,它用气场来阐释着翰高设计的品牌理念与待客之道。
我们将原本封闭的前台区完全打开,专门定制了落地老钢窗,最大限度的还原老厂房的韵味,以保证了外立面的统一。微水泥、皮质长凳、矮墙和绿植,层层递进,在梦幻帘的映衬下,为空间增加丰富的视觉层次。
整个空间由不同的单色调组成并形成丰富的层次效果,用木、铁艺和多种灯光设计来诠释那份经过岁月洗礼的「高级感」,其中微水泥与未经打磨的砖墙是主要的设计亮点,兼具现代秩序与自然粗矿之美。
经过岁月洗礼的老物件,总能唤醒人们内心深处的情感共鸣。因此我们保留了空间里所有的原始立柱,不加以修饰的显露出70年代的峥嵘脾性。水泥色砖墙则效仿那个年代的建筑,自圆型立柱起,以L形为边缘勾勒,形成轻盈的空间界定,与高低错落的台阶,让人游走于空间内时,有一种最直观的穿透感。
从空间到家具组合,从布局到材料细节,新旧对话弥漫整个空间。我们选用上百年的法国白橡木、极具现代感的不锈钢等材料,与原有的墙面顶面形成对比。局部吊顶是为了让营造一个围合式的洽谈氛围,给人带来亲近感的体验。
出于客户特性的考虑,我们特地设计了儿童乐园,以方便有孩子的家庭能够“0压力”的出门。在功能性上,我们用钢架构做基础构架,将空间整体抬高,像一个大玩具一样立于大空间内,然后用微水泥加以修饰,与旁边的砖墙一道,呈现出建筑的结构之美。
为了防止小朋友磕磕绊绊,我们将方盒子的外立面整体磨圆。结构窗景上,一只正在思考的巨型兔子,面向前厅,像一个使者在欢迎着小朋友们的到来。
倚靠立柱而建的休闲区作为空间的中心部分,不仅在功能上链接着前端与后端,也在视觉在被定义为洽谈区的背景。它既是独立的,又是一个丰富空间的重要存在。
在设计的初期,设计团队也希望能在这个“一横一竖”的结构中,随着公司活动次数的增加,创造出不同的记忆点和聚焦点。而在它身后,为它保驾护航的西餐吧则被赋予了更深层次的寓意。灰调西餐吧整体呈悬浮式,随着太阳的东升西落,上下变化的光感会营造出不同的温馨属性。
相关案例推荐
翰高设计
设计师相关作品

粤公网安备 44010602000156号