前言:
这是一对年轻夫妻的新房
我们希望通过与他们的沟通互动中,了解他们的需求和生活习惯,以在空间布局、材料搭配和空间氛围等多个方面创造出舒适、温暖而具有强烈归属感的家。
原始结构图
槽点:
1:次卧采光极差,空间利用率差
2:客厅空间原有功能单一,顶面横梁导致空间更显局促
3:卫生间原有功能划分混乱
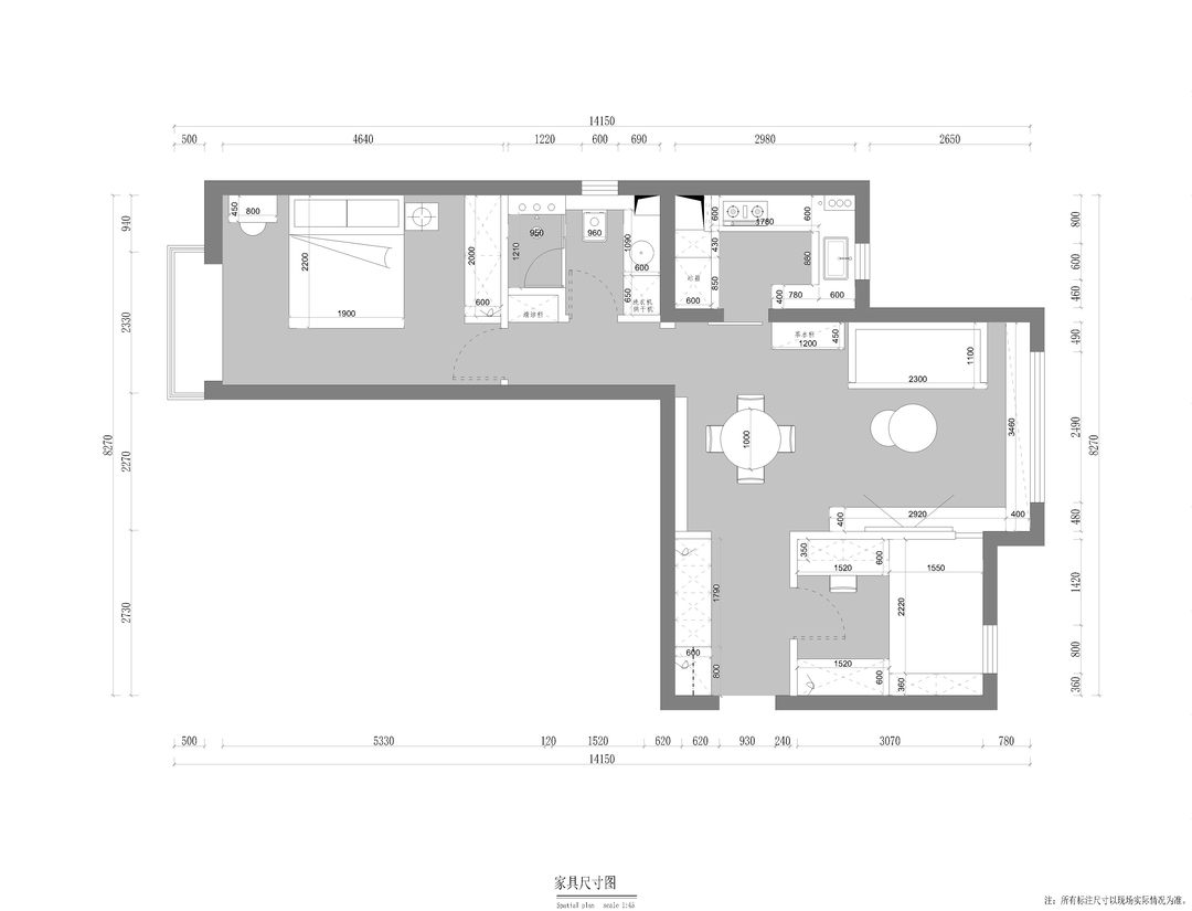
改造后户型图
改造:
1:入户门厅处增加墙体,与客厅分隔开,且加出了鞋帽柜,满足入户收纳功能
2:次卧改变入门位置,做出榻榻米增加储物,墙体使用部分玻璃砖,解决缺乏自然光线的问题
3:客餐厅利用顶面横梁,缓解压迫感的同时做出靠窗阅读台,与客厅沙发,餐桌形成三角沟通区
4:厨房最大限度利用空间,做出高柜满足电器空间且操作区做出U型空间
5:卫生间墙体改造,借出部分空间做出清洁柜
进入家门,玄关作为客厅的缓冲区域,通过新增墙体与客厅分隔开来,并提供了储物功能,用于解决入户时的各种日常动作,如换鞋、换衣和存放物品等。
在进门入户玄关处,推门而入看到的便是定制的白色岩板餐桌,索耐特18号餐椅,贝壳椅
与花苞灯组成的美妙画面。
功能齐全的二黑木作餐边柜不仅兼具实用性和美观性,还满足了起居室各种需求。
客厅与餐区紧密相邻,既相互独立又紧密联系。为避免空间过于拥挤,我们使用无扶手云朵沙发,使人们可以近距离交流,既亲密又自由。
阅读区位于窗户旁边,通过设计靠窗阅读台,解决了顶面横梁的压迫感,使空间显得更加宽敞,并增加了趣味性。
阅读区的地台做开放格处理,方便摆放书籍和未来的儿童物品等。
电视墙的玻璃砖墙是与次卧相连,原次卧采光受到外墙遮挡影响,采光较差,这也是业主最为头疼之处,于是我们利用玻璃砖的形式,从客厅处借光改善次卧缺乏自然阳光的问题。
哑口通向主卧的设计采用了弧形洞口,以柔和的方式将动态区和静态区划分开来。 墙面上的黑胶唱片置物架既具有装饰性,又具备实用功能,完美利用了过道的墙壁空间。
主卧移动家具整体使用温暖的木色,这种自然的材质与绿色乳胶漆墙面的搭配,使空间温暖自然充满生机。
主卧拥有充足阳光的南向窗户,自然光线与温润的木质元素相结合,创造出温暖和温馨的氛围。
卫生间的格局我们进行了微调,腾出空间用于放置清洁柜。
内部墙面使用手工砖,在视线中心使用绿色手工砖,下半墙使用白色手工砖,使空间感得到延伸,而手工砖自然窑变色差,也带来一种自然律动的美感。
为了充分利用厨房内部空间,我们在选购厨房门时选择了定制的推拉门,使得动线更加流畅。内部柜子的设置使得厨房充满了存储空间,这样我们能够充分利用厨房的每一寸空间。
厨房内部空间也得到充分利用,设计了高柜和U型操作区,以满足电器和操作空间的需要。如净水设备、新风主机、地暖分水器、锅篮碗篮和洗碗机等。
次卧的改造更让业主惊喜,原本采光不足的问题通过玻璃砖墙的巧妙运用得到了解决,同时地台床的设置也兼顾了储物的需求。书桌书柜的安排为工作和学习提供了理想的环境,而衣柜的合理规划使得空间利用得以最大化。
相关案例推荐
安之见舍空间设计
设计师相关作品

粤公网安备 44010602000156号