前言:
“设计是浮现于内心,
源自生命的一种力量。”
"Design is a force that
emerges from within, from life."
——黑川雅之
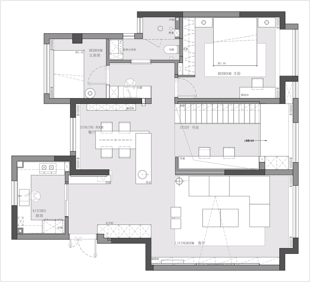
在换鞋凳上方,用纯色描摹基底,让心渐渐静了下来。在上方创意性地开了一个圆洞,散发出暖暖的柔光,打破了原本的沉闷和昏暗。用最少的设计语素完成最明晰的功能构建,在玄关处开启归家的幸福感知。
沿墙壁设计了一排悬空式多功能收纳柜,丝毫不影响各个空间的采光,而且消弭了边界感,将过道让渡于餐厅和吧台,显得整体空间更为宽敞明亮。到顶的设计,赋予柜子强大的收纳能力。
客厅在色系上以黑白灰咖为主,长排的电视柜,延伸了视觉观感,扩大了收纳性能。取消了传统的茶几,改用小巧精致的移动边几,在视觉上最大程度地放大空间,也为家人提供更宽敞的活动空间,营造更放松无拘、融洽温馨的家庭氛围。
设计,围绕着家人的生活习惯和审美偏好展开,着重强调了空间的开放性和互动性,在舒适互联的空间内,妻子在岛台做着夏日饮料,孩子在餐桌边翘首以待,丈夫在书房办公,或者在周末约上朋友小酌,在客厅聊聊天看看电影,惬意极了。
“精致生活,是一种用心感受的生活品质,更是一种舒适惬意的生活方式。”岛台与餐桌紧密相连,充当了分区媒介,串联了不同的场景,无形中扩展了空间,也承担了备餐、洗菜、收纳等功能,提高了空间的使用率和社交性。
卧室的色调是温润平和的,每个细节的设计都是有联系的,直观呈现了居住者的生活品味。床头背景用木饰面进行分割,营造回归自然的静中之境。悬空姿态与凹入空间,言简意赅地阐释着空间的延伸感与包容感。
相关案例推荐
晓安设计
设计师相关作品
编辑精选

粤公网安备 44010602000156号