前言:
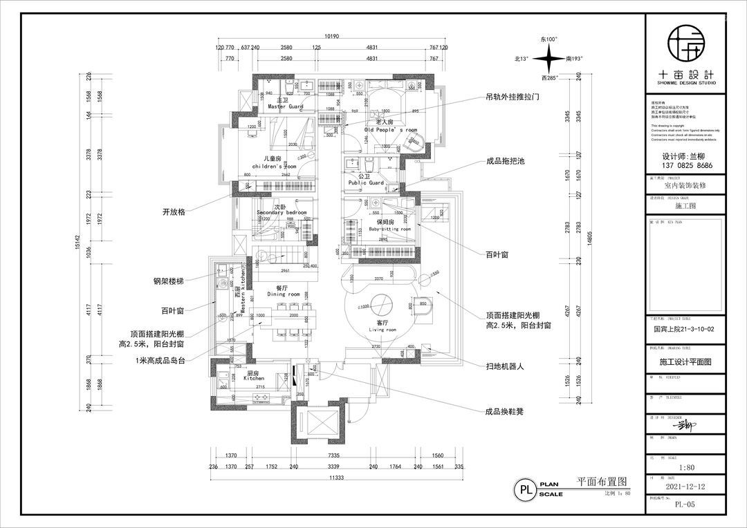
该空间为两层的复式结构,常住人口为四口人,要求有老人房、儿童房、保姆房和临时客房。女业主知性美丽,希望自己的家有咖啡色调,但是又不老气,端庄又大方,适合全家人居住。
在空间改动上不是很大的动作,因为基础使用条件固定,楼梯上楼方式稍作调整,让楼梯能更加平缓,同时在效果上把第一步加宽处理,做了一个平台,烘托出楼梯的主导位置。在主卧设计上,将卫生间、书桌、睡眠区打通处理,让空间看起来更有层次,也有会给空间带来一种慵懒的、时尚的氛围。
在风格方面,定位为现代风格,空间关键词为知性、优雅。以暖系浅咖色打底,灰木纹作为主体家具背景色,带有艺术气息的,弧线型的家具、软装,和有意思的装置艺术,在空间中徐徐展开,充分的去体现整个家的气质。
在灯光上,用线性光源向上打光,可以抬高客厅顶部,同时空间也会看起来整体明亮,照顾到家里老人的需求。餐厅部分原来顶部梁结构比较多,做了压低空间的平调处理,从顶部去区分客餐厅的区域,吊灯、射灯、地灯等将整个空间更有层次。
网友评论
兰柳

粤公网安备 44010602000156号