前言:
有些人的到来,只觉得相见恨晚。
本仙女第一次见小姐姐,没想到小姐姐会立刻签单。从北京回来,买了房,选设计师,怎么也得多看几家比一比,当小姐姐要签合同的时候,本仙女整个人还处于懵圈阶段——就这?两个设计本仙女就签了?
真的验证了一句话,有缘不必多言。
这一套是小姐姐给爸妈的养老房,因为是小户型,小姐姐选择了日杂的风格,主打居家温馨。因为是养老房,所以特别考虑的很多适老化的设备,其中的细节包括设计了整体动线的宽度,能够确保轮椅的顺利通行。
原始结构:
1.厨房和次卧的天井,使厨房虽然有采光,但相当于没有。
2.卫生间尺寸太小,长辈使用不方便。
3.需要更多的储物
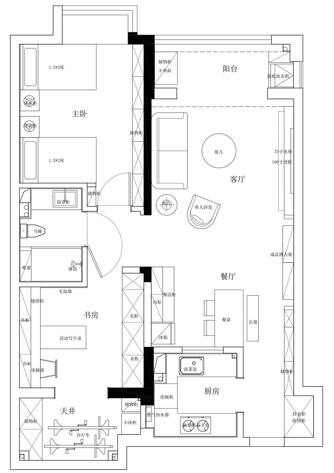
平面图
这个户型是很经典的套二的户型了,要说有很多问题其实也没有,更多的还是我们对细节的一些规划。
每个门洞我们都拓宽到90以上,方便以后进出轮椅。
卫生间改造成长方形,淋浴做成长方形,方便之后辅助长辈。
卫生间门做了外开,是怕之后摔倒抵住门,不好打开。尽量多的去做储物,给长辈划分好,药品的存放,方便拿取。
因为长辈还是非常的热爱骑行,所以把原来的天井预留成存放自行车的位置。
因为小姐姐住在三楼,基本很难开火,十有八九也是来一楼蹭饭,所以我们给叔叔阿姨还是预备了洗碗机。
叔叔喜欢看股市,我们准备了书桌位,阿姨喜欢国画书法,我们做了活动写字桌,方便操作,也做了方便阿姨制作的缝纫机的位置。
生活就是这样的柴米油盐。
入户鞋柜底部做了悬空的设计,方便拿放拖鞋,干净又整洁;中间的开放格可以放钥匙、包包等物品,旁边的深柜可以挂衣服,上面部分可以放工具箱。
小可爱说:
从玄关开始,设计了鞋柜,因为我家这个位置是凹进去一块,所以鞋柜虽然看起来不大,但实际上很能装。鞋柜的一侧,是次净衣柜和地暖的开关,和一旁的零食杂物储存柜一起,都做了通顶的设计,好看又不压抑,就是那种从小户型偷出空间的快乐。
设计师说:
进门之后下面留好了拖鞋的位置,中间的留空也是根据长辈的身高做了设计,方便进门随手来放置包包,钥匙。
绿植
地板
灯具
地毯
客厅
沙发
日式
电视柜
电视墙
窗帘
沙发墙
绿植
地板
灯具
地毯
客厅
沙发
日式
电视柜
电视墙
整个屋子除了厨房和卫生间,通铺了木纹砖,搭配上专门调色的美缝,从玄关到餐厅再到客厅,又一种空间的延伸感。
绿植
沙发墙
地板
灯具
地毯
客厅
沙发
日式
电视柜
电视墙
窗帘
整面电视墙由定制柜组成,这样的设计除了美观之外,额外也增加很多收纳空间。
博古架的设计可以展示摆放那些经过精心挑选、具有很高价值的收藏品,如一些精品瓷器、古玩、字画等,摆放的艺术品可以为室内营造出一种艺术氛围。底部的橱柜可以收纳一些其他杂物或物品,如书籍、文具等。
小可爱说:
这款地砖特别逼真,花纹也好看,让来我家拜访的人经常认不出这是砖,也因此让我家不大的房子却有着足够宽敞的感觉。
客厅我给爸妈配了75寸的电视和100寸的投影,幕布隐藏在幕布盒里,当拉上窗帘,打开投影时,那种家庭影院的氛围拿捏的足足的。
沙发上面是有山丘效果的射灯,我这里不得不夸仙夫潇哥,我所有的灯都是他挑的,我除了掏钱没操心任何其他事情,结果每盏灯都恰到好处。尤其是在我住进来后,发现每盏灯都有它该有的用处,没有白费安装的灯,这是何等的惊喜。
设计师说:
我是储物的终极爱好者,储物一定要多,再加上我觉得长辈有很多东西都舍不得扔掉,那我们可能也需要更多的储物。所以我在所有能做储物的地方都做上了储物,满墙的柜子真的十分喜欢,中间的博古架,也可以更好的展示,叔叔的瓷刻。
洗碗机
置物架
日式
油烟机
橱柜
瓷砖
厨房
嵌入式家电
壁柜
因为厨房的面积有限,我们采用了U型的橱柜设计方案,U型的橱柜储物利用性最大,可增加收纳空间,可旋转水龙头让我们的日常操作更加便捷。
小可爱说:
进门右转就是厨房,我家厨房非常方正,所以空间利用率就更高。麻雀虽小五脏俱全,这样一个小小的空间,我把各种电器都塞了进去(烟灶,热水器,蒸烤一体机,洗碗机,前置过滤,净水,软水一整套),如果不是设计规划得好,很难达成最后完美的结果。
仙女特别在靠近餐厅的一整面墙上做玻璃隔断,这个位置我们本来讨论是安装上推的窗户,最后在考虑采光,实用和颜值的多重角度,最后选择用木色做框,安装整面玻璃。事实上,最后的成品的确非常漂亮和通透,让烹饪的人可以看到餐厅和大厅中人活动的场景,便没有那么沉闷了。
设计师说:
我觉得回到父母身边之后,不想放弃任何一点互动关系,但叔叔阿姨又没办法接受开放式厨房,我就在厨房留了一个面向客厅的窗户,解决厨房的采光问题,也能增加互动关系。剩下的关于设计介绍啥的,小可爱说得比我都详细,哈哈哈。
冰箱
餐椅
绿植
餐厅
艺术品
餐桌
灯具
餐边柜
日式
隔断
橱柜
瓷砖
冰箱
餐椅
绿植
餐厅
地板
餐桌
灯具
餐边柜
日式
隔断
橱柜
瓷砖
采用樱桃木的餐桌与地面木纹砖相呼应,日式简约吊灯以及柔和的光线设计,为家居空间注入一股清新淡雅的气息,让整个家变得温馨起来。墙面上部分设计了吊柜方便收纳,中间的花砖将整个空间的可爱俏皮体现的淋漓尽致。
绿植
餐椅
冰箱
餐厅
地板
灯具
餐桌
餐边柜
日式
隔断
瓷砖
橱柜
冰箱
餐椅
绿植
餐厅
地板
餐桌
灯具
餐边柜
日式
隔断
橱柜
瓷砖
在客厅和厨房之间设计了玻璃隔断,这样不仅提高了厨房的采光,也可以和厨房里的人进行互动。
小可爱说:
餐厅紧挨着厨房,仙女给挑选的樱桃木的餐桌餐椅,非常貌美,使用起来也很实用和舒适。因为厨房太小,冰箱放在餐厅,和餐边柜并排,方便又实用。其中,我特别喜欢这块餐边柜后面贴的小花砖,很有味道。
设计师说:
小可爱是一定会来叔叔阿姨家蹭饭的,所以必须是4人餐桌了,长凳搭配椅子的设计,也是为了节省空间,当然这个位置必须夸一下我们白色的松下冰箱,颜值真的没话说,好看。
卫生间做了镜柜,搭配合台盆使得洗手区域非常好打理。浴室柜也做了悬空设计,可以防止柜子受潮而产生变形。
最后:
小可爱:
装修一套房子中总会遇到各种各样的问题,在这整个过程中,我充分感受到怕的不是遇到问题,而是怎样解决问题。不逃避,负责任,积极解决,是听白坚持做到的事情,在看了其他装修人各种各样的坑后,我真的觉得我何其幸运,遇到听白,遇到仙女。所以给所有看到我文字的人说,如果你也装修,听白真的是个美好的选择,另外真的对仙女好一点啊,不要因为她太负责,反而把不是她的问题也推到她头上。
哈哈,今天我依旧是仙女的小心肝,她的最爱(不许质疑),再过两天,继续去找她玩,住着梦想的房子,牵着仙女闺蜜,又是人生幸福又凡尔赛的一天。
仙女:
和小宝贝相处了这么久,千言万语真不知道从哪里开口。
怎么说呢,我们的未来很长。
卧室我们根据客户的需求设置了双人床,在床尾设计了一排橱柜来增加收纳,即简洁又实用。
小可爱说:
爸妈年纪大了,要求分房睡,腰不好的妈妈,特别给买了电动床(啊,那个床如今全家都羡慕,早知道那么好睡,我的床也换电动的)。
床尾做了通顶薄柜,放常用的衣物,本来以为放不了多少东西,可等住进了才发现,小瞧了它,真的很能装。
设计师说:
我第一次见到叔叔阿姨,我问了一下是不是要分房,叔叔阿姨觉得分开睡还不放心,一起睡,互相影响,所以我们在主卧做了两张床,其中一张是买了护理床,真的十分好用。
主卧的门洞也做了拓宽处理,方便之后进出。
床尾的墙,我们做了35公分的柜子,在做不做这个柜子纠结的时候,我们还是选择了做,美丽和实用,我想在这个空间里,实用是更重要的,入住后,这个大柜子,承载了更大的需求。
实木地板
书房
地板
办公椅
艺术品
定制柜
装饰画
书桌
书架
日式
实木地板
书房
办公椅
地板
定制柜
艺术品
装饰画
书桌
书架
日式
书房采用了双人书桌,可以同时办公,互不干扰。多层吊顶柜加底柜可节省空间,满足收纳储物的需求。
实木地板
书房
办公椅
地板
定制柜
艺术品
装饰画
书桌
书架
日式
实木地板
书房
地板
办公椅
定制柜
装饰画
书桌
书架
日式
中间是可伸缩推拉式的桌子,可以满足更多的操作需求。在书房一角设计了一面毛毡墙,可以用来展示书法、篆刻、国画等作品。
小可爱说:
我的父母是有非常多的爱好的,爸爸喜欢看股票,书法,篆刻,妈妈喜欢国画,编织,丰富的爱好让他们的书房就需要承载更多的需求。
这里特别给妈妈定制了一整面毛毡墙,搭配上吧台椅,让她可以坐在椅子上,自由的绘画。
其中最特别的设计要数中间可以伸缩推拉的书桌,它让爸爸妈妈都有足够的空间可以进行自己想要的活动。
设计师说:
我在设计这个空间的时候,写书法的桌子需要很宽,但又不是经常使用,所以我们在后续做设计的时候,就把这个不常用的大桌子做成了随时可以隐藏起来,使用的时候可以使用,隐藏后给书房更大的操作空间。
阳台我们做了柜体嵌入式的设计,并调整了机器的摆放高度,这样我们拿放衣服时就再也不用弯腰了。对面放置了一个实木的一体柜茶水柜承担着收纳物品、储物功能等作用。
相关案例推荐
听白设计
设计师相关作品

粤公网安备 44010602000156号