前言:
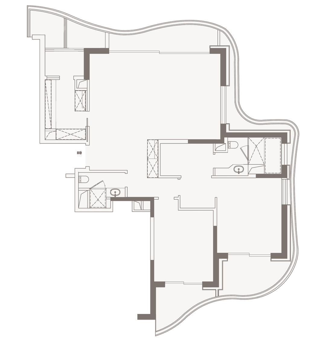
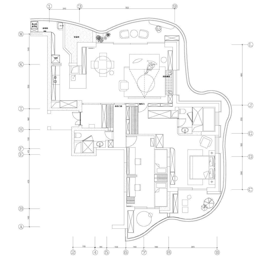
本案,位于陆家嘴·九庐,160㎡大平层,两房的现代精装交付标准不太能满足四口之家的需求。屋主希望在尽量避免拆改厨卫的基础上做设计。
白色系+轻法+温暖明亮+自然质感的设计风格,软装上则采用现代+意式极简的温柔搭配,营造出优雅舒适的空间氛围。布局上,设计师重新划分,将原入户玄关面积减半,部分作为收纳及通往房间的走道,部分给到玄关。主卧衣帽间拆除后,多出的空间与原走道的空间全部划分至次卧,次卧面积获得延伸。
逐一拆解时空的脉络,将藏艺带入空间。拱形门连接玄关与走道,客厅视角下,是“别有洞天”的景观区。隐藏式收纳与绿色系的组合,给人焕然一新之感。
错落有致,层层包裹的Verpan贝壳灯,激发听觉和视觉的双重感知,为生活注入热情和动态趣味的幸福。
集功能与美观于一体的Zanotta艺术边柜像是为这个空间量身定制,无论是尺寸比例、独特的设计风格,亦或是充足的雕塑感,仿佛都在诉说着:恰到好处的自然之美。
现代法式与浪漫时尚的温柔搭配,奶白色与淡雅绿的清新相遇,细腻柔和的基调与克制线条的雅致融合,打造了高级感&时尚经典的客餐厅空间。
原宽厅设计的客餐厅,全景窗直面江景,好不惬意。为加强互动感,设计师将原封闭式厨房调整为半开放式,岛台上方设计的嵌入式卷帘,可以过度油烟,收放自如。
以藏为美的设计手法,满足女屋主的强收纳需求。客餐厅可见的墙面均做了隐藏式收纳柜。窗户的卡座,中间区域全部做镂空设计,左边区域、岛台、右边的临时柜体等兼具收纳功能。
Linge Roset 多元化主沙发,满足屋主几代人的生活方式,可灵活移动位置的靠背,实现生活场景化的多种可能,既可以调整方向欣赏江景或追剧娱乐,也可以躺着小憩。Finn Juhl单椅,融合卡座,客厅围合式氛围感立现。
阳光透过纱窗洒在地面上,灵动的白色系,给人一种宁静而纯粹的感受。自然质感的风格,似乎把天地万物带入了家,让人与大自然和谐共融。
步入开放餐厅,犹如闯入一处美学空间。它将光与影、线条与曲度融入灵动设计,用简约的方式来展现精致。
一桌美食,细数世间甜美,1.35米的圆桌和开放客厅的设计,增加了客餐厅外部的活动区域,视觉上更显舒适。
现代摩登别致的造型,感受着简单的美感,经典大理石餐桌Agapecasa 搭配极具未来感的Roche Bobois 透明圈椅,赋予空间丰富的定义与深度。
逐一拆解时空的脉络,将藏艺带入房间。既可敞开又可关闭的儿童房,通过结构上的划分,让同一区域的两位小屋主,既可以共享休闲娱乐空间,同时也拥有各自独立的“秘密基地”。
淡绿色主色调区域是弟弟的“理想国”,哥哥的房间则是白色系,站在哥哥房间的视角看向弟弟的区域,有无限延伸的感觉,色块分明,趣味十足。
家,是每个人心中的港湾,亦是一座承载岁月的建筑。观赏窗外的风景,聆听钟声的轻敲,仿佛置身于“世外桃源”,与浪漫共舞,感受流动的美学。
相关案例推荐
示觉设计
设计师相关作品
编辑精选

粤公网安备 44010602000156号