前言:
“虽然非常喜欢巴黎,我最终却没有选择法式风格的设计师。考察过的法式风格案例总给我一丝刻意的感觉,更像是从一个法风列表上选取各种元素拼接,一个法式公寓并不等于一个法式的家。
我更偏爱用日常的琐碎物件和生活方式去构建风格,在居住过程中,家才会和主人互动,成长为最终模样。”
文字引用于业主自媒体账号,我们和业主对风格的认知在某种程度上是同频的,这也是促成这次合作的主要原因之一。本案从业主的生活方式与经历着手,围绕功能改善与氛围营造,打造一个温馨的独居小屋,最后呈现出与屋主契合的空间状态。
原始房屋状态:
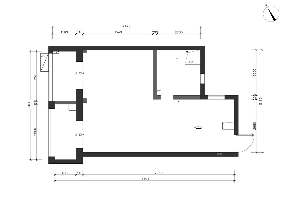
1. 原始户型为较为方正的一居,室内格局较为开阔
2. 西北面采光及窗景较好
3. 装修风格陈旧,与屋主审美偏好和生活状态不符
4. 收纳空间不足,不满足功能性需求
空间改造后:
1. 将原半封闭厨房改为开放式厨房,引入自然采光
2. 因空间主要为一人使用,尽量减少实墙隔断,用布帘隐性分区,增强室内采光和通风,保持通透开放的视觉感受
3. 墙面边角弧形处理,塑造柔和的造型语言
4. 空间采用淡奶油及牛油果色复古墙漆,搭配木质、藤编、亚麻等自然材质营造空间
空间轴侧图
简约
现代
灯具
客厅
沙发
混搭
欧式
法式
饰品
现代简约
客厅具有接待、休闲、阅读和办公的功能,多重空间属性使起居区域成为屋主生活中逗留最久的地方。
墙面及天花的交接面采用弧形来柔和边界,在造型上更贴合屋主的性格和空间的整体感受。
充分利用屋主收藏和日常物件来作为装饰点缀空间,形成具有个人特色的专属环境。
简约
现代
装饰画
客厅
沙发
混搭
欧式
法式
饰品
隔断
现代简约
由于独居的空间属性,隐私性需求相对较弱,我们将居住感受做为设计的出发点,将室内格局打开,用布帘来隐性进行功能分区,分隔客厅与卧室。开放的空间增强采光和通风及通透的视觉感受。
简约
现代
装饰画
客厅
沙发
置物架
混搭
欧式
法式
饰品
现代简约
客厅的书架具备储物和展示功能,屋主平日在此阅读和办公。书架成为空间氛围的主导,展示屋主的多彩生活。
客厅沙发和座椅的位置可以随意调整,根据光线和场景变化围合出不同的使用感受。
简约
现代
地毯
装饰画
客厅
置物架
混搭
欧式
法式
饰品
现代简约
编辑精选
客厅区域没有设置主光源,通过筒灯、落地灯和台灯进行氛围营造,空间光感均匀,具有灵活性。
法式
欧式
现代简约
嵌入式家电
开放式厨房
现代
简约
灯具
混搭
烤箱
厨房
瓷砖
橱柜
原户型厨房为半封闭空间,拥堵交通,遮挡光线。改造后,开放厨房与玄关、餐厅、客厅相连通,形成流畅的人流动线,并为入户区域增加自然采光,使空间开阔明亮。
锅碗瓢盆,瓶瓶罐罐,是对生活的热爱与向往。
冰箱
简约
现代
混搭
欧式
法式
现代简约
烤箱
橱柜
厨房
嵌入式家电
开放式厨房
冰箱、厨房电器都嵌入在柜体中,充沛的储物空间满足一人居的生活需求。
纯色柜体饰面感官上扩大空间,且易于清洁。
餐椅
简约
现代
餐厅
灯具
餐桌
混搭
欧式
法式
现代简约
餐厅紧邻厨房,延伸岛台,形成餐厨一体的空间布局,便于一人或亲友来访时烹饪和用餐。
款式经典的吊灯和餐椅为区域增添复古感和历史感,也体现屋主在家具选择上的审美意趣。
卫生间拐角设计弧形磨砂玻璃,形式上与空间墙面、顶面相呼应,柔化边界;同时为内部空间引入光线,增强采光。
门上开设猫洞,方便猫咪出入。
木质衣架造型简约,用于晾挂衣物和毛巾。
简约
现代
干湿分离
混搭
欧式
法式
壁挂式马桶
现代简约
瓷砖
花砖
卫生间
改造后卫生间进行干湿分离,便于日常使用及清洁。
纯色长砖搭配牛油果色墙面和水磨石花纹砖打造复古感十足的空间氛围。
简约
现代
定制柜
储物柜
混搭
欧式
法式
现代简约
床
衣柜
卧室
卧室与客厅通过布帘分隔,模糊弱化公区与私密区域的界限,更符合一人居的生活状态。解放空间后增强了室内采光和通风,塑造开放的居住感受。
满墙储物柜体提供充足的储物空间,悬空的设计手法既用于陈设展示,同时也增强体块轻盈感。
风口藏于柜体之中,外观设计整体处理,美观整洁。
布帘隔断隐性处理功能分区。
相关案例推荐
辰境设计
设计师相关作品
编辑精选

粤公网安备 44010602000156号