前言:
									项目名称:温州悦府
项目面积:200㎡
项目地点:浙江 · 温州
设计公司:LND力那室内设计
主案设计:徐蔚秋
设计时间:2020年
完工时间:2021年
项目摄影:吴昌乐
施工单位:宸筑装饰
主要材料:微水泥 艺术涂料
主案设计:徐蔚秋
									
首先,极简主义是非常激进的概念
而我在內心与灵魂上都不是一个激进的人
我更钟情于为我的客人与我自己创造温暖与舒适
这是一个四口之家,我们彼此合作多年建立了良好的信任关系。空间的设计本身也是一则选择和舍取的结果,在功能的配置上,我们根据家庭生活方式去定制方案 。
美并非在于物体,而在于物体与物体相合而生的阴翳之浓淡明暗。
——《阴翳礼赞》
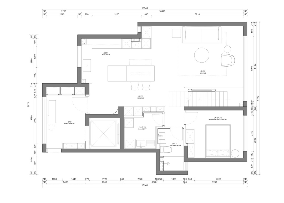
一层是一个开放式平面,将厨房、餐厅、客厅打通形成一个轻松的互通关系,孩子在空间里可以没有过多限制地走动。光与空气也得以舒展,不被打断地散布于空间的每一处角落,形成明亮与阴暗的差异对话。
联结两层的空间用一个中空的圆将隔层打通,用圆拱门的形式表达空间动静的分离,楼梯下方一个手工制的石膏球体落下空间的重心,再布局弧形线条的家具维持轻与重的平衡。
柔和的米白色系微水泥地面与同色系的艺术涂料相融合,形成温柔的感知。客厅朝南的窗户作为空间最主要的光线来源,春夏秋冬、日出日落…通过罗马帘的升降,让空間的光得以持续流动,以此传递家的温润质感。
这也是主人强调的一个部分:
希望空间是简单但不冰冷的,拥有生活的温暖质感,与触手可及的人情味。
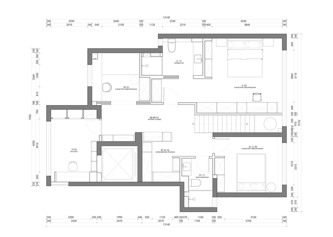
二层是私密的起居空间,我们将更多的目光聚焦于构建个人与空间的关系。我们把孩子的卧室和书房空间分开,同时将其中一个书房墙体打通 用一个可以消失于墙体的推拉门做成灵活空间。既是书房,又可以作为家庭的储物空间,同时若有到访的客人也可作为临时的休息场所,日常则保持敞开。
在非大户型的空间里,我们希望通过这样一种简单的结构语言让室内格局兼具实用性和灵活性。
我们给这个空间许多的留白——主人可以在经年的居住中慢慢添置合适的生活器皿和艺术品。
相关案例推荐
 
							力那空间设计
 
 
 
												
													
														
															
																 
												
													
														
															
																 
												
													
														
															
																 
												
													
														
															
																 
												
													
														
															
																 
												
													
														
															
																 
												
													
														
															
																 
												
													
														
															
																 
												
													
														
															
																 
												
													
														
															
																 
												
													
														
															
																 
												
													
														
															
																 
												
													
														
															
																 
												
													
														
															
																 
												
													
														
															
																 
												
													
														
															
																 
												
													
														
															
																 
												
													
														
															
																 
												
													
														
															
																 
												
													
														
															
																 
												
													
														
															
																 
												
													
														
															
																 
												
													
														
															
																 
                                                     
                                                         
                                                     
                                                         
                                                     
                                                         
                                                     
                                                         
                                                     
                                                         
                                                     
											
											
										 
														 
														 
														 
														 
														 
				 
                
 粤公网安备 44010602000156号
粤公网安备 44010602000156号