前言:
本案业主是幸福的一家三口,一对小夫妻带着一个可爱的小朋友【3岁男孩】,女业主居家带小朋友,男业主企业高管,正值事业上升期。
男业主在外打拼创业给这个家更多的安全感,女业主的陪伴增加整个家的幸福感。
迎面而来的装修,却打破了这个平静的家。可~给予给家和自己的时间是不能缺少的。
业主说:
第一次的装修,是不想回忆的经历,是时刻盯着现场、不断消耗成本的记忆,并不怎么美好的记忆需要时间去治愈,治愈的不是时间,是路程中遇到的美好。
不用操心的装修,是治愈路上最大的美好了吧!住在不远的家,“全副武装”的准备好突击,最后好像都没用上新家就竣工了,甚至有点不相信这么顺利!心情忐忑的开始了新家落地的第一次体验!
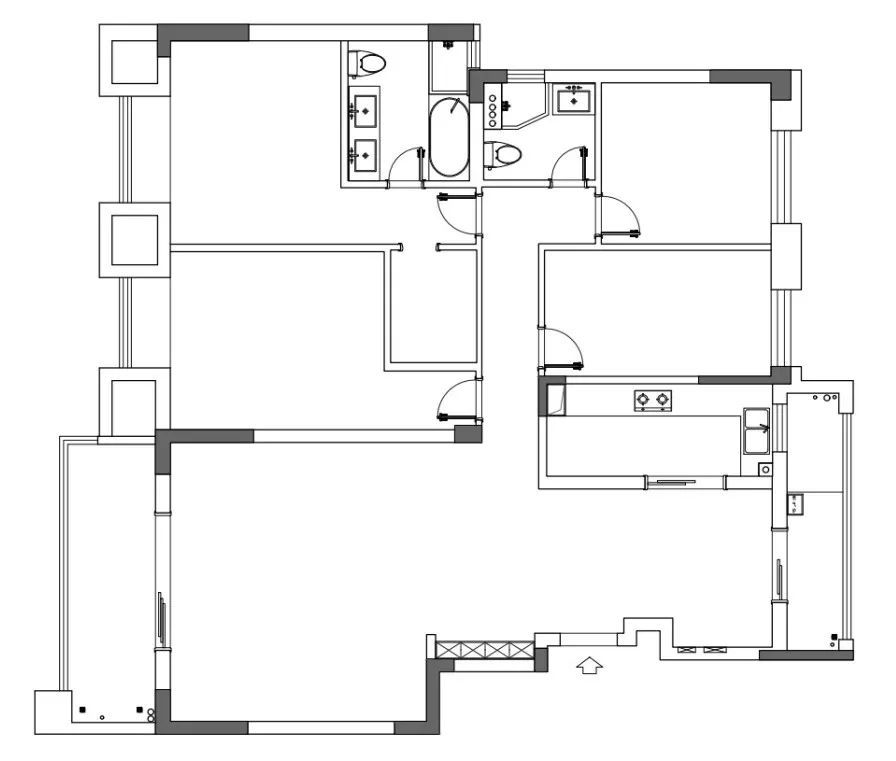
本案新家面积200㎡?错,实际面积是168㎡
是一个常见的四室两厅的布局,其优点在于户型方正、南北通透,拥有两个独立的户外花园。
户型弊端也很突出,采光问题是业主最头疼的点,具体的缺点在于餐厨区空间面积小且光线偏暗、儿童房空间偏小、客餐厅采光不足... ...
接下来,开始户型改造设计:
1、客厅增加盥洗区和品茗区,客厅功能多样化;
2、主卧和儿童房的飘窗拆除,增加卧室面积;
3、开放式厨房设计,增加采光和空间面积;
4、原有北向阳台增加到餐厅,进一步增加餐厅面积;
5、L型衣帽间改为U字型衣帽间。
不同材质通过不同的处理方式,整片的推拉门与室内外连接,使自然光可以自由穿梭于室内外空间,打造一个没有边界感的空间。
空间融入了业主对光的考量,昼夜晨昏,阴晴雨晦,每一刻都伴着光的不同变化,有了光,家才会有了生活气息。
沙发背景整体采用木饰面,浅灰色与木色竖向木饰面搭配,整体简约大气。
夜幕降临,入目的暖橙色灯光与休闲椅,家的氛围愈加浓厚,回到家,躺着小憩一会,属于一家人的休闲时间悄然到来。
艺术画中宽广山海的刚,大理石茶几上干枝雪柳的柔,不知不觉竟又成为家的一幅写照图。
隐匿在客厅角落的“沉默者”人物雕塑摆件,一杯咖啡,一本书,光影散落,努力诠释安宁的意义。
阳台区增加的盥洗区,清洗功能区的生活气息,偏偏掉进品茗区的高雅, 别有一番家的烟火气。
白色展示柜,结合爵士白花色岩板的悬浮背景,搭配黑色岩板地台相得益彰。
蒸汽壁炉模拟出的火光的温度与大理石带来的坚硬冰冷感产生碰撞,理性的线条赋予空间现代感的氛围。
穿过时光,慢慢转变,一点点成长,已呈现出不一样的感觉,只要有光,在曲折中也总会找到终点,有心就会做到!
生活不只有柴米油盐,试图用艺术感的空间表达我们的观念,艺术的生活是充满人性化特征的呈现。
空间的仪式感,曾经昏暗无光的餐厅设计不断衍生,引入光源,开放式厨房增加了空间的整体通透感。
真正的简洁,往往体现在功能与美学的完美契合上,就餐区的线性照明设置让设备带隐而不露,是业主想要的光感的模样。
改造前餐厅与厨房被分隔,陪伴家人的时间缩减,餐厅融入大理石岛台设计,既节省了空间又增加了餐厅的陪伴功能。
有光的生活当然少不了“爱好”,满当当的柜子,酷爱收藏酒的业主放进了自己的爱好,这也许是他最爱的一角了吧
线条感的吊灯,灯光洒落在岛台的红酒杯中、水果上,熠熠发光的仪式时刻只属于这个家。
主卧空间合理利用空间的属性,最大化空间体验感,在同色系里区分明暗,不同灯光组合,增强空间层次感。
整体散去,映入眼帘的休闲椅落在窗台边,拆掉飘窗余出的空间光线掉落的慵懒感。
隐藏的灯光遇上大面积木饰面,同色系空间也更加的有立体感。
枫叶红色系点缀卧室的床头柜,灯光散落在角落,一如日出在秋林的斜阳般温暖。
相比较于男业主酒柜的热烈,女业主的独立梳妆台流露出的一份安宁。
相关案例推荐

时一设计
设计师相关作品