前言:
为年轻夫妻打造治愈系 “充电站”
当一对年轻夫妻提出 “想要一个能让人彻底放松的家”,这份需求便成了设计的核心锚点。摒弃繁杂冗余,我以极简风为载体,从色彩、布局到细节,为他们勾勒出一个卸下疲惫、回归本真的生活空间。
一、设计思路:以 “放松” 为核心的三重构建
(一)色彩:低饱和基调,揉进自然温度
色彩是空间情绪的第一语言,为了营造松弛氛围,我选择低饱和度的灰、白、原木色作为主色调。浅灰与纯净白奠定冷静、开阔的基底,弱化视觉压迫感;温润的原木色则从地板延伸至柜体,带来自然的肌理感,中和了冷调的疏离。同时,在角落摆放几株绿植让 “高级感” 不再冰冷,而是充满可触摸的温度。
(二)布局:打破边界,让光线与风自由穿行
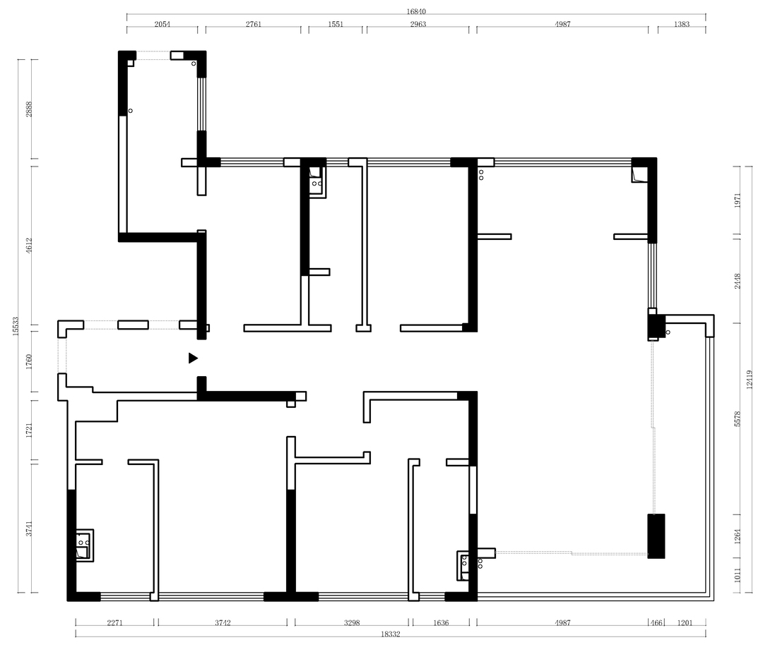
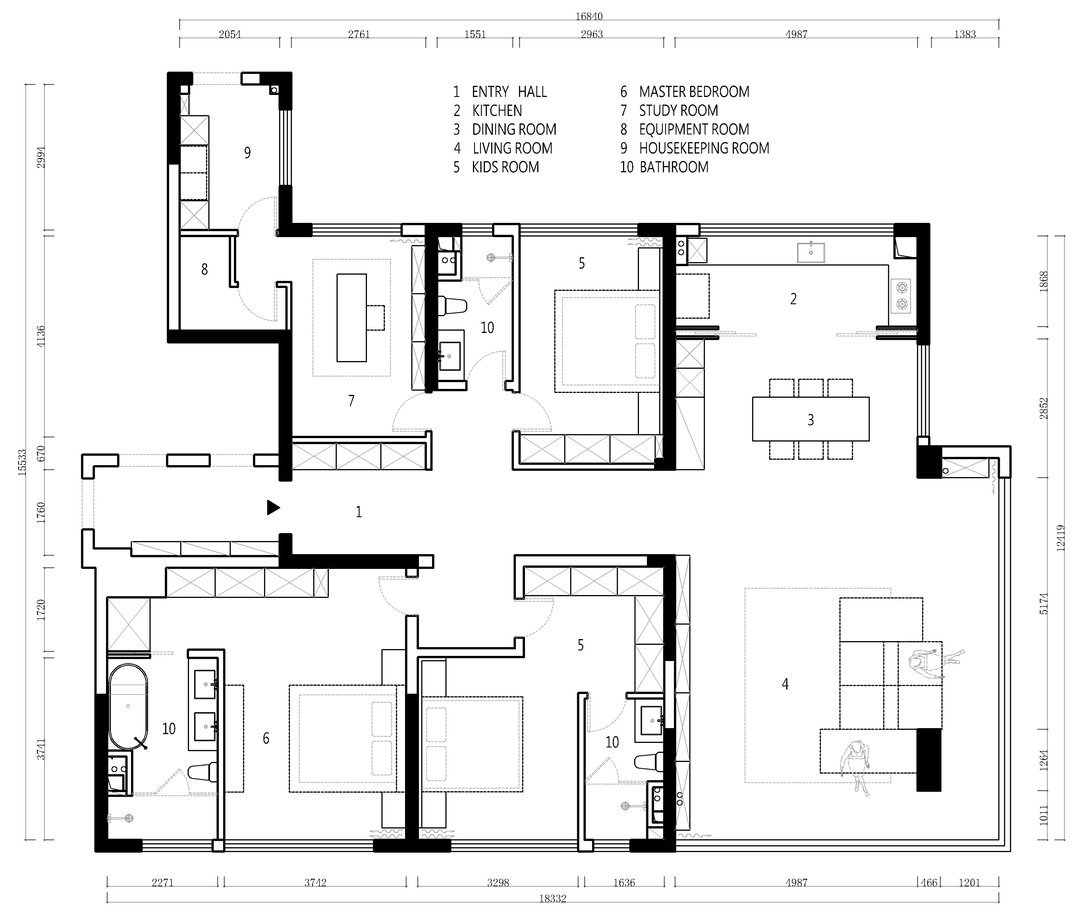
原户型的客餐厅与阳台被墙体分隔,空间显得局促且昏暗。我果断打通三者边界,拆除非承重隔墙,让客餐厅与阳台形成连贯的开放区域。阳光透过阳台的玻璃门,毫无阻碍地铺满客厅、餐厅,甚至延伸至玄关;开窗时,穿堂风自在流动,带走室内沉闷。改造后,视觉上空间通透感翻倍,行走其间没有逼仄感,身心也随之舒展。
(三)细节:藏起繁杂,简化生活动线
极简的核心不是 “空”,而是 “有序”。我在细节处做足 “减法”,让生活更轻松:
隐藏式收纳:客厅电视墙采用整体定制柜体,柜门与墙面齐平,将零食、遥控器、收纳箱等杂物尽数藏起;卧室衣柜嵌入墙体,无把手设计让墙面保持完整,视觉上更显整洁。
无主灯设计:放弃传统吊灯,改用磁吸轨道灯、筒灯与氛围灯带组合。光线均匀分布,避免了单一主灯的刺眼感,夜晚打开氛围灯,柔和的光影能瞬间抚平一天的疲惫。
极窄边框门:室内门与阳台门均采用极窄边框设计,减少了视觉分割,让空间线条更利落,也让整体风格更统一。
二、客厅:最爱的 “治愈充电站”
客厅是整个家的核心区域,我为业主定制了浅灰色布艺沙发,柔软的材质让人一坐就想放松;搭配同色系地毯与原木色茶几,简约却不失质感。沙发旁的落地窗没有做多余装饰,仅用一层轻薄的纱帘,既保证了隐私,又不遮挡阳光 —— 清晨,阳光透过纱帘洒进客厅,落在绿植上,整个空间都充满了生命力;傍晚,夫妻两人窝在沙发上,看看电影、聊聊日常,这里成了他们卸下压力、补充能量的 “充电站”。
业主说,现在每天下班回家,推开门看到空旷、明亮的客厅,疲惫感就会少一半。其实,好的设计从不是为了 “好看” 而堆
相关案例推荐
何骋
设计师相关作品
编辑精选

粤公网安备 44010602000156号