前言: 这次的屋主是一家四口,夫妻二人之前经常往返日本生活和工作,习惯了日本自然、简约、实用的生活方式,屋主最大的需求就是需要有一个可以一家人活动娱乐的空间,四层楼的空间虽然宽敞,但屋主希望不要划分的太过零碎,空间尺度上需要把握好布局。经过充分的沟通后,我们最终将这个娱乐休闲的空间放到了地下室,为保持整体简约的效果,施工上格外注意谨慎,每一个尺寸都把控到最好,做到给屋主一家最精致完美的效果。
地下室作为家庭的主要活动空间,拆除了原结构的卫生间和小卧室空间,设置了餐厨区和游戏区,增加了地下室的采光面积和活动空间,一家人可以在此空间做自己喜欢的事情。
一层作为会客厅使用,取消原有的餐厅和厨房空间,将原厨房位置设置为一个可以临时休息的半开放空间,老人和朋友到访的时候可以临时使用。
二层是休息空间,布局上进行了重新规划,将原有的主卧室卫生间的一部分给了女儿房,加大女儿房的使用空间,把原有不太实用的小露台划分给了公用的卫生间。主卧室去除原结构衣帽间加大卫生间的使用,做了独立的淋浴和浴缸的区域,方便后期使用。
三层阁楼是留给男孩的独立空间,包含了卧室、衣帽间、储物间以及休闲空间。
玄关处保留了一大部分空间,让进出家门能够有足够的位置来换鞋整理。靠墙打造了一长排鞋柜,可以放置很多鞋子。
独特的吊顶形状让人眼前一亮,波浪型状的吊顶克服了空间上的压抑与单调,多了几分优雅与层次
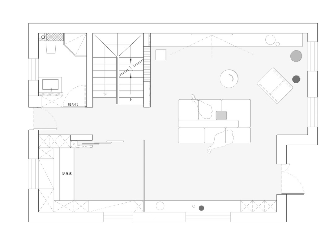
一层的主要空间都留给了客厅,南北通透的采光使得客厅更加明亮开阔,客厅布局松散自由,设计简洁明了,给予人放松无拘束的氛围感。
捧着一本书,喝着一杯茶,时光便在沙发椅的一摇一晃中悄然溜走。
客厅与楼梯一墙之隔,将中间一部分墙面打通安装上长虹玻璃,通透且模糊的材质让楼梯间有了更多的光线和神秘感。
模块化的沙发组合起来十分随意,灵活多变的布局给空间搭配带来更多可能性。
一长排的电视柜承担了客厅的杂物收纳功能,同时将插座巧妙地藏在了中间的抽屉中,保持整体的简单、干练
电视机旁用深胡桃木饰面叠起,仿佛一个大画框,让美好画面定格在这一方小空间
利用吊顶划分两个空间,客厅吊顶无主灯的设计让空间更加通透,虚实之间更加凸显层次。
散落安放的造型摆件,如同生活碎片,虽然零零散散,但也错落有致。
羊羔绒沙发质感明显,像是撒了一把糖霜的糯糯糍粑,QQ弹弹,却又温柔非常。
云深不知归处,从前沧海几粟,
茫茫又茫茫。
开放式厨房增加了亲子间的互动,厨房不只会有忙碌做饭的身影,也可以有欢愉的谈笑声。
靠墙设计了一排通顶的书柜,和木色桌椅的搭配,使得餐厅也可以变成一个办公学习区。
半地下室的采光并不算差,在兼顾隐私和实用性上选择了柔纱卷帘,有自然光的情况下也不会显得地下室太阴暗不透气。
屋主二人喜爱喝咖啡,所以我们专门在餐厨内设计了咖啡角,用来延续这份对生活的热爱。
厨房的L型台面可以满足绝大部分的烹饪需求,餐厨柜的木饰面与地板同色,整体保持简单干净的效果。
花从发丝中生长,花在指缝间烂漫
屋主小姐姐给我们做的咖啡,很好喝很赞!
拱形门划分了两方空间,里面是杂物间、洗衣房和卫生间,考虑到动线和美观便规划到了一起。
花开在云朵上,花开在远方的路上
透过窗纱,阳光顷顷洒洒,墙面上斑驳着的,是余晖的痕迹
二层包含了主卧和女儿房,L型的长排衣柜能够收纳很多衣物,充当了衣帽间的角色。
用最简单的色块将卧室的轮廓勾勒出来,床体是地台设计,底部微微挑空安装了灯带增加轻盈感。
地台和衣柜用与地板同色系的木材制作,因为楼梯的缘故,衣柜一部分需要改变造型,经过仔细的测量和安装,衣柜与楼梯造型完美贴合,细节的处理也让这部分不显突兀。
床头板恰如其分的黑色中和了暖色调,其表面的凹凸感也为房间增添了些许艺术感。
三楼单独留给男孩使用,因为斜坡吊顶的原因,整个空间的高度不一,将整体层高较高的部分作为休息睡眠区,靠近楼梯的部分作为休闲区,床体直接选择地垫,减少层高对居住体验的影响。
靠楼梯的部分作为休息放松区,摆放一张小桌子和靠背坐垫,小窗户提供自然采光。平常男孩都在学校学习,周末回家就可以享受自己的小空间啦~
情书写给山鬼,心事给予晚风
相关案例推荐
清和一舍
设计师相关作品

粤公网安备 44010602000156号