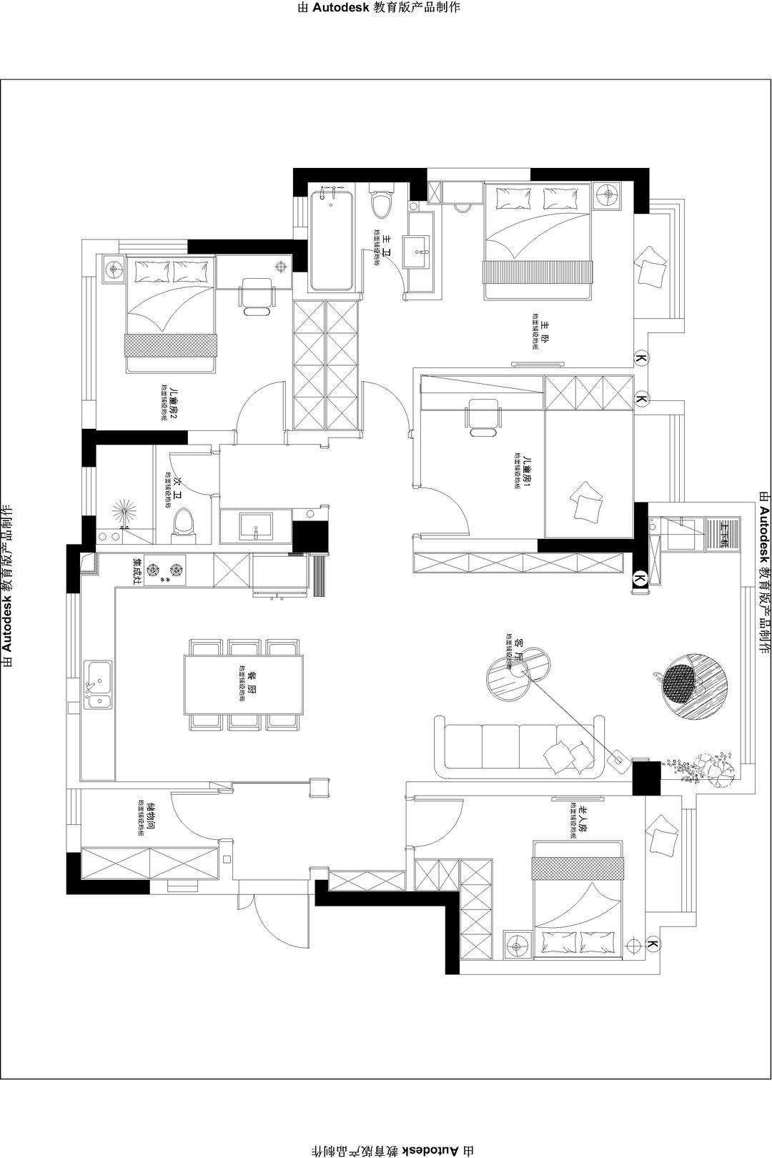
前言: 极简设计往往通过一些极其简单的形、色、文完成形式上的演绎,来达到情景上的无限扩张。过滤和提炼之后的信息更纯净、清晰、鲜明而有力度,有极佳的视觉传达效果。就像本案中运用的设计一样,简单的乳胶漆,大理石砖,木作,营造出简洁实用的家居空间。厨房与餐厅的合并,进户玄关与餐厅的关系处理,阳台与客厅的融合,都在极力宣扬着设计的魅力。
相关案例推荐
网友评论
付磊

粤公网安备 44010602000156号