前言:
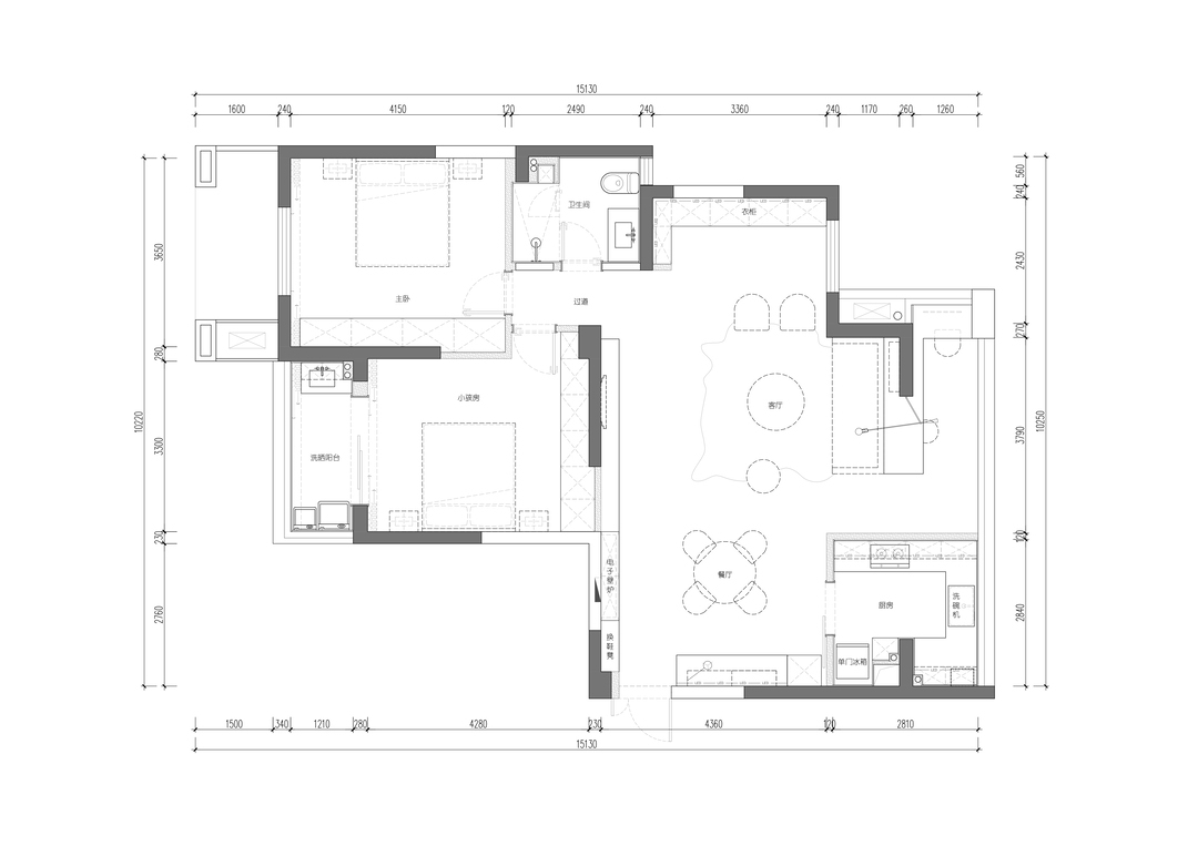
这是一对90后夫妻的婚房,空间客厅朝北,采光较差,每个空间相对封闭局促,如何释放和整合空间是设计师对这个项目的思考。虽然空间不大,但是他们对新家充满了期待。我们减少硬装的堆砌,功能衍生界面与尺度,给小朋友足够的活动区域和玩耍空间。在软装家具上我们选用黄色的TOGO从空间中跳脱出来,增加空间的氛围感,让空间中的色彩有冲撞感。
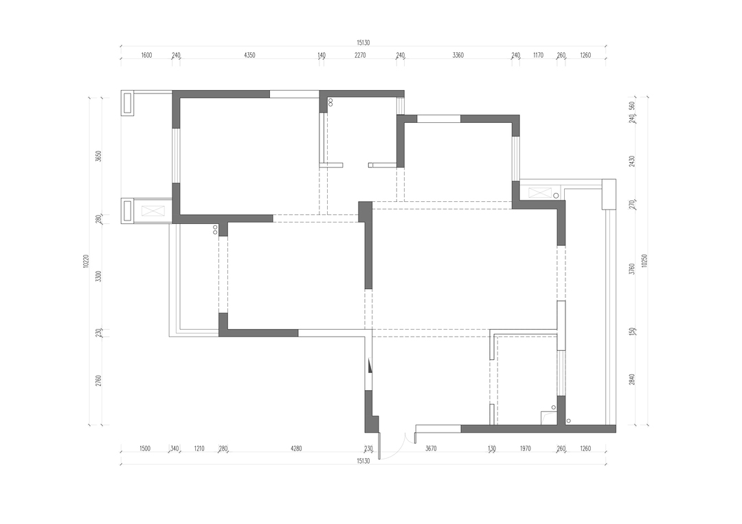
原始户型的缺点: 1. 厨房面积较小,过分压缩餐厅空间,就餐空间较紧凑 2.主卧开间尺寸过宽,较浪费主卧空间,收纳性不足 3.北阳台空间尺寸较为浪费,原始的门窗关系衰减了北面的采光度 4.入户区域没有足够的功能收纳性,会增加入户凌乱感。
设计策略: 1.跟业主沟通后,业主希望保留足够的孩子玩耍空间,所以我们最大化打开公区区域,把北面的移门全部拆除,增加客厅的开敞度。 2.把书房区域做开放式处理让原书房空间打开后,可跟客厅联动,最大程度预留给孩子玩耍的空间 3.充分利用墙体深度,让柜子最大化排布,可最大化增加业主的储物 4.厨房外扩可以增加厨房的面积,在餐厅独立设计餐边台和西厨功能,延伸中厨的功能。
超长悬挑抽屉在安装时花了很多心思,我们用钢结构在内部做了结构加固,使抽屉具有较大的承重力,同时,木色与地板相呼应,呈现温柔自然的氛围。客厅电视背景大面积留白,为电视机或艺术品预留了充足的空间。红色的餐椅与黄色的沙发呈现高饱和度的冲击感,黑白格的边几为空间增加了不少趣味性。
相关案例推荐
郭恒博
设计师相关作品

粤公网安备 44010602000156号