前言:
漫漫时光,素年锦时,与知己爱侣相守恬静宁和的日子,偶尔邀请好友细品亲自手作的甜点;待年末之时,喜迎一双女儿从海外归巢,享受一宿四彩的家庭温暖。悉心翻阅由不同幸福章节装帧而成的生活剧本,张馨&瀚观室内设计在其中寻找浪漫又深情的美学符号,将空间比作精心裁剪的定制花束,透过精致的软装设计、优雅细腻的美式语汇,以及柔和唯美的色系铺叙,让一枝一态的美丽花叶,在恰如其分的格局里相互映衬,共同撑起温馨美好的梦幻庄园。
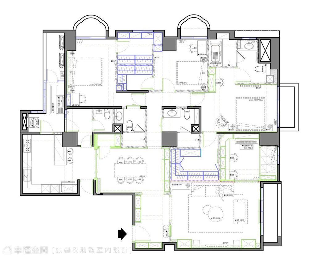
本案前身为20年的老屋,存有天花低矮、多梁柱等问题,设计师保留双面采光的天生优势,舍弃繁复矫饰,采取简约轻盈的天顶纵向拉伸屋高,重启敞亮宽绰的视野。为了规避穿堂的风水疑虑,设计师拆除原先位在入口旁的卫浴,以高雅典丽的材质构筑独立式玄关,作为迎宾的第一道景幕,并从中建立区隔,体现一进又一进的豪邸风范。
淡雅柔美的藤色作为空间叙事的起点,美学触角从玄关连绵至客厅,再藉同色系的花样壁纸妆点餐厅,成功在场域与画面感之间创造紧密的视觉联系,奠定交流互动的轴心。客厅引入煦煦日光,在百叶窗、线板、金色框线及典雅家具润饰下,韬韫出温甜稳敛的美式基底。推开沙发背墙旁的玻璃格门,书房的风格定调幡然一转,空间以鲜明大胆的霾雾蓝展现另一种美式风情。此外,设计师巧用上下分段的巧思梳理家具配置,在四方的平面向度里植入卧榻、神明桌及钢琴的摆放位置,齐全所有生活的实用机能。
延续书房的活泼调性,乡村质感的厨具与简约雅致的小花砖,以蓝白分明的跳色设计串织整个厨房空间,为喜爱烹饪做甜品的女主人,精筑一处轻松悠闲的厨艺坊。沿着窗边延伸出的中岛吧台,将电器柜、碗盘收纳裹藏于下方,而桌台大尺度的面宽,更厚载了制煮香醇咖啡、准备面包小点、享用轻食早餐等日常情境。
张馨&瀚观室内设计从屋主一家的需求,逐步推敲出每间卧房的廓形,经由矫正入口动线及隔间墙位置,不只赋予两间女儿房完整的更衣机能,也为主卧增加梳妆区域。至于各自的风格喜好,则借由不同饰板、色彩及造型渲染空间氛围,将典雅的美式格调、自由不羁的Boho style,以及温雅甜润的手绘风场景一一映现。
相关案例推荐
幸福空间618
设计师相关作品

粤公网安备 44010602000156号