前言: 当我透过裂缝,窥探未来时空时,光年便从这里开始流淌,故事开始了......
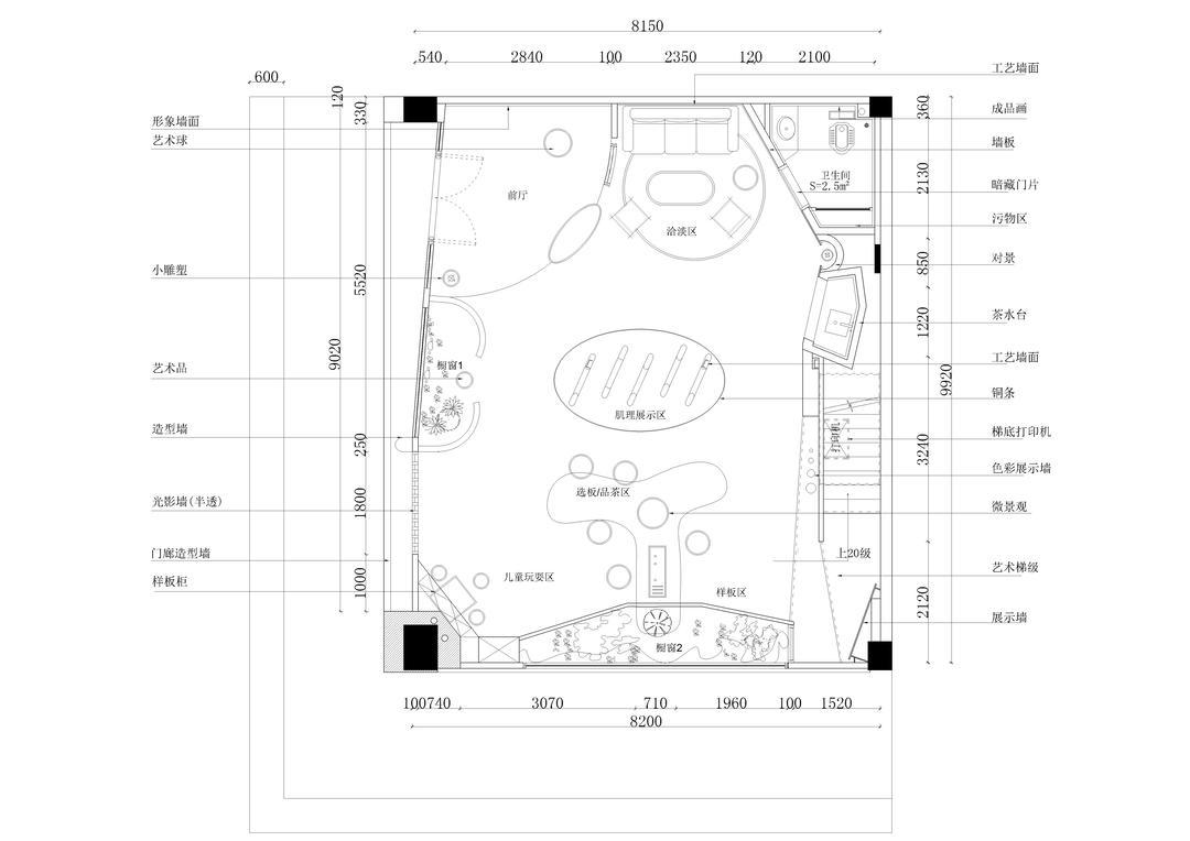
玄关
前厅细节图
为了处理两层建构上的结构柱外露问题,设计师巧借品牌涂料从桶里倾泻而出的造型灵感。从二楼垂泻下来的涂料,与从墙上流淌下来的涂料,相互交融,一起勾勒了一幅有力量,却温柔诗意的画面。
前厅
前厅细节图
厨房
展示区
利用造型丰富、有层次的隔断方式,展示了涂料不同的应用属性,同时使空间隔而不断。当你穿梭其中,每个区域看似分割开来,实际上相互连通。
展示区
展示区细节图
相关案例推荐
网友评论
陈意

粤公网安备 44010602000156号