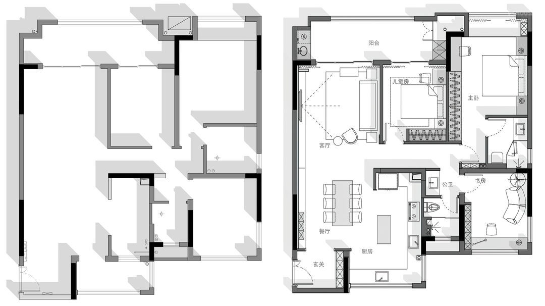
前言:
极简风格的空间,往往给人留下高冷的刻板印象,
屋主期待干净有质感且保留烟火气,让他们更享受在家的时光。
地板
地毯
灯具
客厅
艺术漆
沙发
现代简约
瓷砖
椅子
电视墙
电视柜
窗帘
沙发墙
地板
挂画
地毯
灯具
客厅
艺术漆
摆件
沙发
现代简约
瓷砖
窗帘
沙发墙
绿植
地板
挂画
地毯
灯具
客厅
艺术漆
摆件
沙发
瓷砖
窗帘
沙发墙
地板
地毯
装饰画
艺术漆
摆件
现代简约
落地灯
窗帘
绿植
挂画
客厅
灯具
沙发
瓷砖
电视墙
屏风
电视柜
沙发墙
地板
地毯
艺术漆
摆件
现代简约
隔断
窗帘
绿植
挂画
客厅
灯具
沙发
瓷砖
电视墙
屏风
电视柜
沙发墙
地板
地毯
艺术漆
摆件
现代简约
隔断
窗帘
绿植
挂画
客厅
灯具
沙发
瓷砖
电视墙
电视柜
屏风
冰箱
餐厅
烛台
洞洞板
餐边柜
摆件
现代简约
隔断
绿植
餐椅
挂画
灯具
餐桌
瓷砖
橱柜
屏风
冰箱
餐厅
烛台
地板
洞洞板
餐边柜
摆件
现代简约
隔断
餐椅
绿植
挂画
灯具
餐桌
瓷砖
橱柜
屏风
冰箱
餐厅
烛台
地板
洞洞板
餐边柜
摆件
现代简约
隔断
绿植
餐椅
挂画
灯具
餐桌
瓷砖
橱柜
屏风
地板
地毯
摆件
现代简约
衣柜
卧室
床头柜
窗帘
绿植
飘窗
定制柜
挂画
灯具
镜子
床品
床
地板
地毯
摆件
现代简约
衣柜
卧室
床头柜
窗帘
绿植
飘窗
定制柜
挂画
灯具
镜子
床品
床
吊灯
地板
地毯
摆件
现代简约
衣柜
卧室
床头柜
窗帘
绿植
飘窗
定制柜
挂画
灯具
镜子
床品
床
吊灯
相关案例推荐
京点设计
设计师相关作品

粤公网安备 44010602000156号