前言: 关于精装的利弊居者自知,当下精装房的改造不在少数,很大比例是出于对空间美学氛围的追求,居者更为关注家居生活中空间与人的融洽,气质相通 享受于其中的氛围感塑造。本案的精装房在硬装上除去两个飘窗外丝毫未动,凭借空间功能的重新规划配置与软装上的搭配,重新焕发空间,乐得自在的家居生活氛围开启,有的人装修是为了追求设计感、有的是为了实现自己喜欢的家居风格、而有的是为了生活的更惬意一点,将房子变为真正的可依之家。
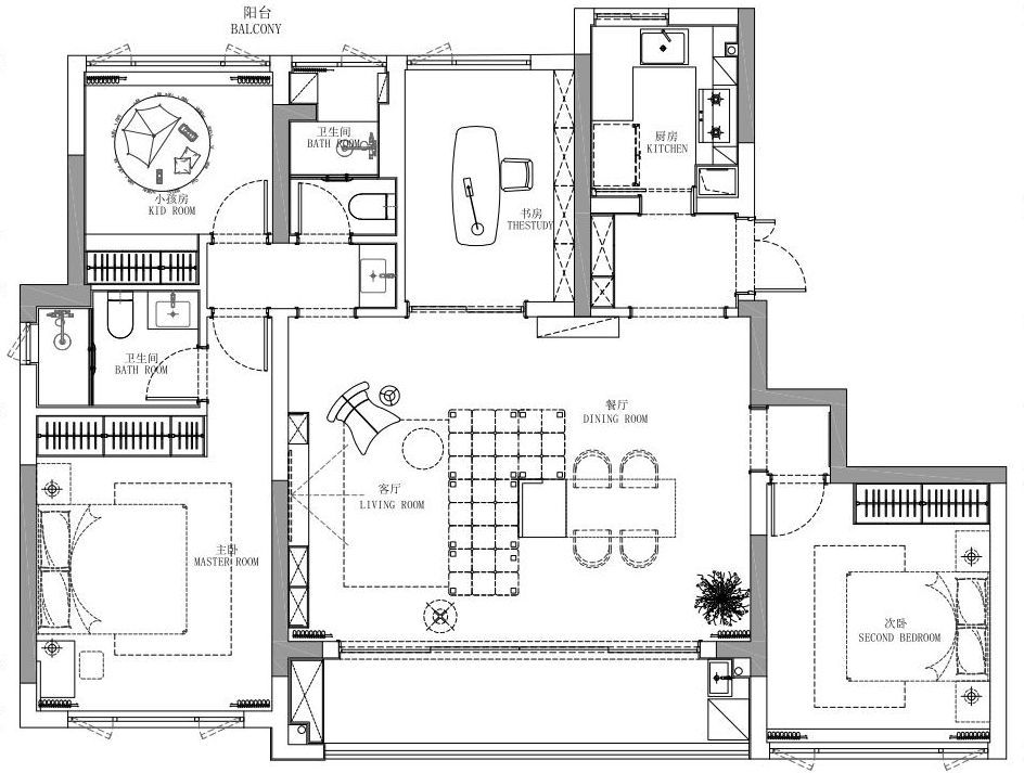
房子是四室两厅的格局,客餐厅在朝南的同一个大空间,大体上户型通透合理,房子本身采光条件较好,空间不闭塞是一大优点。我们依据房子本身的优势加以利用,将光线最大化引入室内,空间通透舒服,营造一个自在闲散的家居氛围。
房子户型蛮好的,客厅和餐厅都在一个大空间之内没有阻碍,加上朝南窗口是将近一整面,采光也是非常的好,我们便沿借房子本身的优势,将优秀的采光条件和空间的通透加以利用。客餐厅我们依然保持它不设隔墙、隔断的状态,让整个公共空间是连贯通畅的,阳光也不受阻,而是凭借沙发的摆放形态与餐桌之间做的衔接,让客厅餐厅之间即便不设限也有所自立。
我们在选择沙发款式的时候,不仅考虑到坐感、美感方面的问题,更是关注沙发在空间上发挥的功能重要性,它不仅要是坐着舒服的,看着好看的,更具备优化空间结构的功能。我们选择了一款米色的几何体块组合沙发,米色在大空间中显得温柔包容,与室外景色、室内阳光糅合自然;体块形态可以随意组合搭配,具有较强的组合性,并配合空间结构进行布置,呈围合L状。我们在餐厅和客厅之间做了一个方正的柱台,一是做实物之用,台面上设有插孔可以充电,平日里在客厅充手机,在餐厅吃火锅等等,插电口是必不可少的;其二是为客餐厅做一个空间分割过渡,空间的划分更为明确,也更为自然。
朝南的大阳台并没有包进室内,保留它的独立性用作生活阳台。阳台和客餐厅的隔断我们用的是推拉门式玻璃和竖百叶窗帘,将自然光最大化引入室内,通光通风。
客厅的电视背景我们从考虑实用角度出发,顾及客餐厅没有储物收纳的情况,电视背景墙我们以柜体的形式生成电视背景,电视以嵌入式置入,结合储物柜下面做地台式的电视柜形式,一切刚刚好~
我们凭借客餐厅之间的方正柱体以及沙发的组合摆放形式,让客餐厅之间依据功能性的软装承接规划空间界限的功能,两个空间不用刻意分割也有各自的区域所得。考虑到餐厅的空间富余,过道也是足够宽敞,我们在一侧的墙壁加入了一组挂墙式展览架。
餐厅在餐椅的挑选上也是结合整个室内外呈现的状态,阳光、空气、树丛,室内室外景色互通互借,将恣意的自然元素延伸,木质餐桌、藤编椅的自然元素将整个空间的气韵娓娓道来。
在方形台柱的侧边增设的插座,嵌入式滑轨排插将实用与美感结合。
一盏白色吊灯平衡视觉着重点,增加餐厅氛围感。
我们还在吊灯顶部做了一个石膏圆顶装饰,来自细节的爱意~~
书房靠窗位置原是有飘窗,占面积不说也不实用,问及业主习惯就给拆掉释放空间。书桌后面做了一整面墙的收纳,中间一部分由铁板制做的展览置物架,通体黑色与白色对比优化视觉美感。
相关案例推荐
菲拉设计
设计师相关作品
编辑精选

粤公网安备 44010602000156号