前言: 房子是在科技园现代豪园的顶层复式,户型采光都很美好。Q先生是腾讯IT男,只要能满足他的基本需求就可以,其他并没有特别的要求,哪怕是最简洁的造型都可以。L小姐虽然也是IT女,但是明显对于整套房子的风格和规划有自己的想法。不仅要空间的改造,更希望能有一些小女生的恬美感觉还有偶尔的小资浪漫的地方。
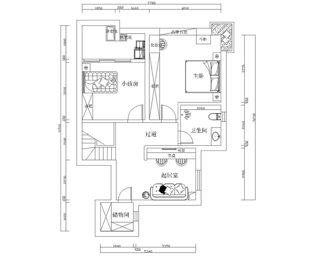
户型图
一楼为大客厅和餐厅,应业主需求,增加多一个客房。所有空间全部进行重新规划,风格定位为乡村风格,餐厅采用彩色篱笆状护墙板,客厅文化石背景墙打造乡村气息。
二楼原本两个卫生间,取消掉其中一个作为储物间,小孩房的墙往阳台推,扩大房间空间。上楼梯后看到的是一整面的手绘墙,墙后是双人书桌。开放的书房可以充当起居室和健身区域。
相关案例推荐
网友评论

粤公网安备 44010602000156号