前言:
其实家存在的意义就是不管在外面有多辛苦。总有一个地方是完全属于你自己的。在这个嘈杂的世界,家是自己的一份安宁。
这次的案例是一个复式空间,业主人在北京,见面机会很少,装修只来过不到五次,基本都是线上沟通细节。
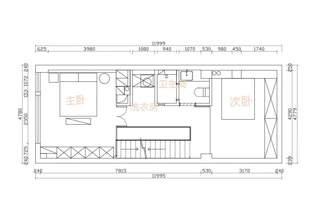
业主是一个比较感性浪漫的人,装这个房子不想投入太多的钱,因为过几年打算再换个大点的房子。我们目前主要是自己一个人住。爸妈可能过年的时候才会过来几天。所以在二楼我们也预留了一个次卧的空间。以便亲朋好友偶尔的到访。
通过几次的沟通交流,了解到她喜欢比较浓郁的色彩,非常喜欢的这种森系,想要开阔的空间,因为平常工作比较忙碌,节奏太快,想回到家可以让自己安静下来。
最后确定下来主色调是复古的绿色,在进门的玄关,电视背景墙等处都刷上了比较浓郁的绿色。绿色总是给人一种宁静自然的感觉,我们想把大自然融入进去,让人感到亲切舒适和放松。除了舒适感,美观也同样重要!在整体的软装色彩搭配上也花了很多心思,呈现出复古又浪漫的气质。
一开始业主也能质疑过最后呈现出来的效果,会不会没有想象中的好看,好在她足够信任我们,我们也当然没有让她失望!
即使是小户型,我们也尽力让整体显得大气,舒适。
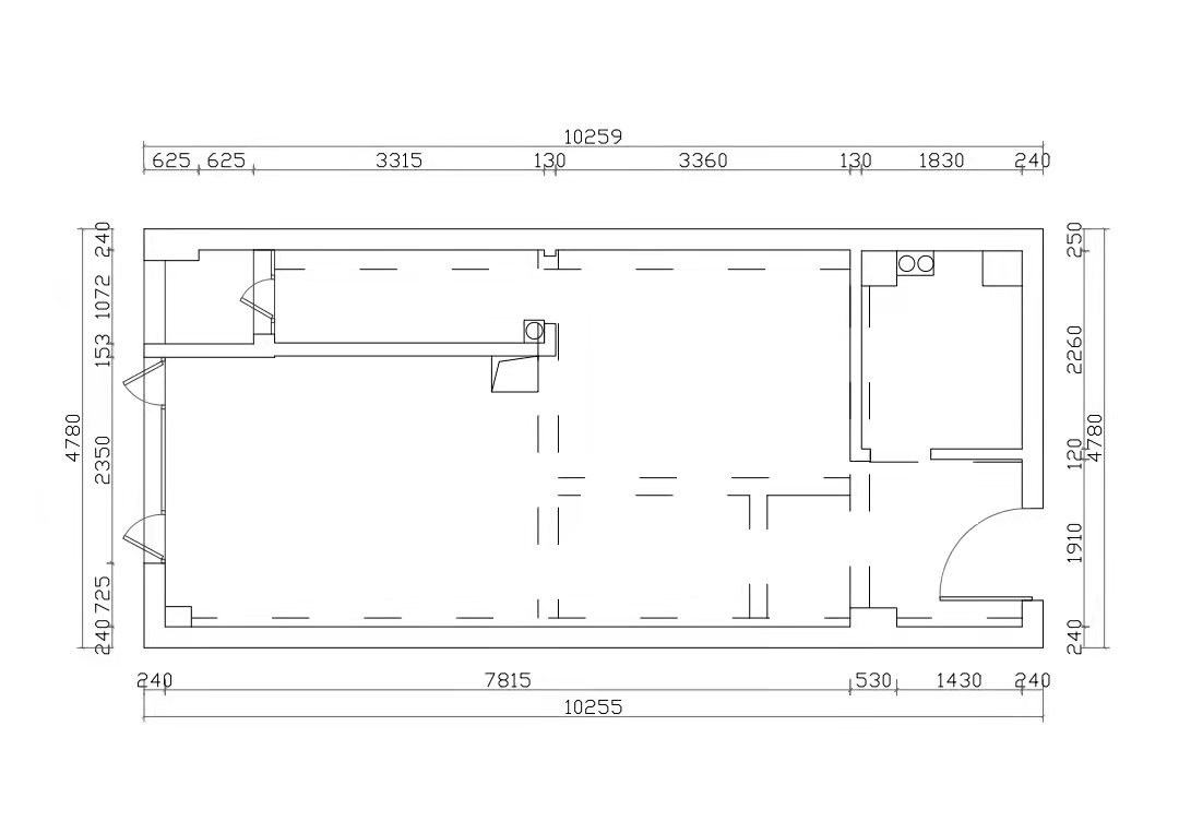
原始户型一楼和二楼的梁体,柱子都很多,要解决原始户型的梁体,还有空间承重柱,烟道,水管的问题。现浇后如果按照开发商预留高度还很受限制。一楼空间的层高比二楼空间要高个8cm,我们把客餐厅的区域比二楼卧室的区域留高了一些。 ,#户型改造 ,#原户型
原始户型,墙体多,光线都被挡住了。所以除承重墙以外,把所有墙体都拆除了。空间上就一下子通透起来,窗外有湖景,把客厅的墙打通后,坐在沙发上就可以欣赏美景。 客餐厅和厨房改成了LDK的形式,中间还有一个挑空的吧台,闲暇的时候可以坐在上面发呆,休闲。一楼和二楼的卫生间全部做成了干湿分离的结构。 ,#户型改造 ,#空间布局
改造后基本在家看不到裸露的水管和梁体,还有承重柱。厨房用烟道和水管的位置像客厅借了点光,二楼的砌墙的位置都是根据承重柱展开的,主卧的水管,烟道都藏在了柜子里面。二楼卫生间主下水排口需要非常注意,需要在楼底下一楼接主下水管,现浇楼板主下水管的位置不能有钢筋和梁体。二楼在主卧和次卧之间增加了洗手间和洗衣房,这样使用起来更加的方便。
客厅的面积不大,阳台外面可以看到湖景,所以把沙发放在了可以直接看到湖景的一侧。电视背景墙刷了屋主最喜欢的绿色,让家里变得生动有趣。墨绿的墙面搭配焦糖色的沙发、窗帘。低调又浪漫。复古落地灯提升了整体的氛围。透明的茶几弱化了存在感。视觉上更加的开阔。水晶灯的点缀增加了一点清新气息。
因为厨房改成了开放式厨房,厨房的落水管和烟道裸露出来了 我们在洗菜的区域 不想封闭做一堵墙,显得很闷 。觉得可以有效的利用客厅大窗户的采光 于是我们从客厅借了点光进入厨房 太阳升起来的时候阳光打在这个中间 ,会感觉非常温暖。 ,#厨房 ,#壁龛 ,#开放式厨房 ,#吊灯
柜门上面做了弧形的设计 搭配顶上的弧形吊顶 ,还有精致的金色把手 ,在一些细节上花了很多小心思,一点一点的呈现了出来,让整体更加的精致协调。。 隔断墙体做了弧形壁龛储物墙,可以放一些杯子和小摆件。
楼梯下的空间没有浪费,因为家里是LOFT,没有阳台,储物空间不多,楼梯下面充分利用起来了。因为工作原因出差得比较多,大件的行李箱,棉絮统统都装得进去,还有家里的戴森吸尘器也放在柜子里藏起来了,让外面看起来更加得整洁。餐厅平时的话两边需要走动,吃饭的话是一个人的时候比较多,所以选了圆餐桌,在空间流动方面更加自如。楼梯在第一个踏步我们用的是石材,里面在电工进场的时候就留好了线路,第二个和最后一步用的都是楼梯的踏板,两种材质碰撞在一起加上灯光会非常好看。 ,#餐厨一体 ,#餐厅 ,#圆桌
卫生间干区我们把原有的一体的卫生间拆掉后,将卫生间的干区放在了入户的过道,这样既可以当作入户的过道又可以作为洗手池来使用。地面上的砖是绿色的小清新花砖和墙面的绿色相呼应。干区的水龙头是墙排龙头搭配着钨丝灯和弧形镜子还有黑色的浴室柜。让家里充满复古的气息。一楼没有住人的需求,只需要放下马桶就可以。
洗手间的浅灰色弧形门,和其他柜体颜色一致,弧形设计也和餐厅门洞统一。整体风格相协调。 ,#门 ,#弧形门
入墙式暗装淋浴花洒,搭配奶白色肌理瓷砖,整洁舒适。 ,#入墙式花洒 ,#瓷砖
主卧床和窗帘选择和暗绿和焦糖黄,撞色搭配。复古的氛围感拉满。用一整面墙来满足储物功能。床后面的原来是不规则形状,用木饰面来装饰,使墙面看起来平整美观。 ,#主卧 ,#木饰面 ,#吊顶 ,#中央空调 ,#采光
床头选的比较简约的吊灯,不占空间。灯头高于枕头,让光线从45度倾斜散布下来,更适合看书。 ,#吊灯 ,#床头灯 ,#氛围 ,#阅读角
柜体和一楼的鞋柜统一,搭配金色把手,耐看又高级。一件质感好的家具,在过了很多年依旧不会过时。
主卧只有一面窗户有采光 ,为了有效利用,所以选择在主卧门用通透的不锈钢玻璃隔断 ,这样可以改善过道和次卧的光线,玻璃门上下用的是长虹玻璃和超白两种玻璃结合,让空间更有层次。顶上面改善了梁体的结构做了斜着的吊顶 空间看起来更加的高。卫生间空间小,为了节省开门的空间,门用的是灰色谷仓移门 。卫生间还借用了主卧的采光在过道旁开了一小扇隔窗。洗衣房则放置在了卫生间和主卧的中间 这样洗完澡去洗衣服或者烘干的衣服拿回房间,行动比较方便。 (由于没来得及打扫,没有拍照) ,#玻璃隔断 ,#谷仓门 ,#长虹玻璃 ,#采光,#吊顶
相关案例推荐
云夕设计
设计师相关作品

粤公网安备 44010602000156号