前言:
客户需求
希望厨房餐厅大点儿
要有洗衣区
2个孩子要有独立房间
要一个老人房
不希望开门直接看客厅
好看一些,简单一些,节约造价一些
原始结构:
1、客厅挑空,需要增加利用率;
2、二楼入户浪费面积太多,增加利用率;
3、一楼入户开门直观客厅,隐私性不够;
4、两层实际使用面积不够大,需要合理布局;
5、没有生活阳台;
6、户型本身比较方正,公区宽敞通透;
7、客厅挑空,可塑性强。
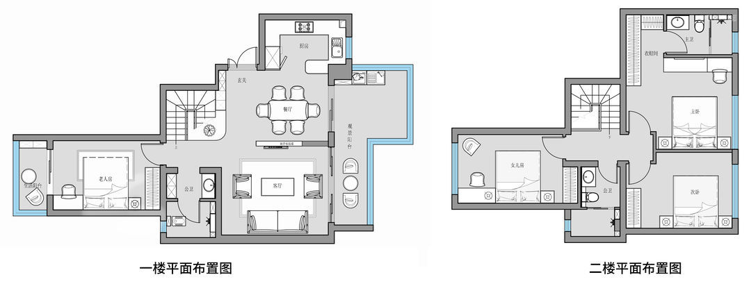
平面布置:
1.设计开敞式厨房,将厨房餐厅纳入一个空间范围,扩大空间感。
2.客餐厅之间设计悬浮式电视墙,区隔空间,增加入户隐私性。
3.现浇二楼楼板,增加功能布局空间,安排主卧、儿童房、次卧。
4.封堵二楼门洞,重构主卧套房布局。
竖厅结构,有大面积的景观阳台,所以在安排客餐厅布局时候,需要考虑人员坐姿朝向。需要解决入户门的隐私性问题。同时还不能影响户型原来的通风采光的优势。
厨房开放式,与餐厅链接。悬空电视墙实现分割空间作用,但是保持空间互动。软装上多采用浅色,布艺等来营造简单、温馨、干净的感觉。
入户进来直接就是餐厅,融合了入户,玄关等空间功能。为了避免整个空间的凌乱,保持整洁,整体采用了柔和米色,营造干净的背景环境。
整体拉通的玄关柜没有把手,搭配顶上磁吸灯,整洁,通透,配合开放式的厨房,空间互动感及空间开阔度显著提升。
深咖色座椅,皮质,大理石台面餐桌,干净整洁之余,也更显精致。
为了充分保证客厅原先的开阔,通风采光优秀的特点。同时为了解决入户直接对客厅一览无余的隐私性问题。设计了悬空电视墙,让做客厅、餐厅相对来说藏而不露,彼此联系,也彼此分隔。
利用木质护墙,打造了沙发背景墙,呼应入户玄关柜,厨房厨房柜的整体样式。形成视觉统一。
户型沙发搭配单人座,点线面的结合,空间显得干净。咖色与布艺软装,整体氛围柔和温暖。
主卧通过空间重构,以套房形式呈现,功能和使用空间都大大增强。
木咖色和木质的使用,让整个空间变得很温润,柔和,低趴的床铺也充满安全感。简洁明了的背景,搭配简易的条形壁灯,简约而不简单。
凸起的硬面造型,与灯带的融合,让空间浪漫温馨的画面得到彰显。
相对于主卧来说,老人房整体氛围就要显得更加沉稳,稳重一些,色调搭配更浓,家居软装直线硬朗的线条较多。
但值得一提的是,老人房拥有的独立的景观阳台。因此采用了全滑门窗,最大限度构造室内外的互联。
相关案例推荐
印集设计
设计师相关作品

粤公网安备 44010602000156号