前言:
110㎡的房子130的既视感;
收纳利用到极致的体现,经典黑白灰的简约时尚;
时下流行的全屋无主灯设计,人与房子的交互;
设计效果还原度高达95%。
业主诉求:
1.走廊过长,空间浪费,希望有所解决。
2.主、次、儿童房卧室面积比较狭小。
3.厨房太过拥挤,使用不便。
4.整体风格简洁舒适,时尚。
5.储物空间要尽可能多。
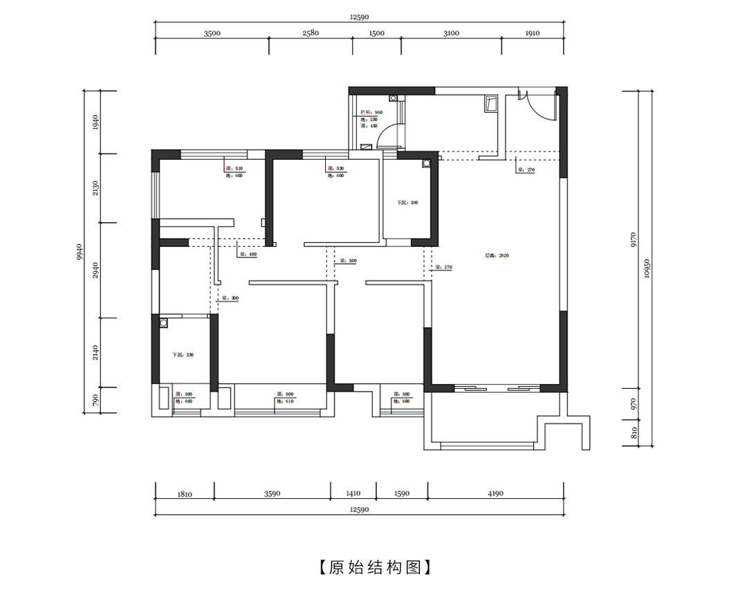
改造前:
1.走廊较长,视觉压抑,空间浪费。
2.主卧、儿童房内飘窗,非结构型。
3.入户玄关隔墙导致厨房过小。
4.户型很方正,功能分区明显。
5.阳台外景观视野很好。
改造后:
1.打掉主卧、儿童房飘窗,增大空间使用面积。
2.借用儿童房小半墙,延伸电视墙造型,增加过道利用率。
3.敲掉入户玄关墙体,做开放式厨房,重新规划动线与收纳。
4.敲掉院馆隔墙,设计多功能书房。
5.改客厅滑门,做推拉折叠门,增大客厅视野开阔度。
该套房属于业主二次置业,有学龄前儿童。业主偏好简约简洁,厌恶过多的造型与繁琐的装饰细节。但又不屑于奢华张扬。
所以在整体风格调性上选用了简洁简约的现代风格,色彩搭配上选用了经典耐看的黑白灰为主色调。既不过时,也符合业主精英自律的形象。并且为了让服务使用更加方便,增加了智能窗帘、智能灯光、智能厨具、智能设备等等的配置。初步实现人与房屋的交互。
岛台的设计既区隔了玄关与厨房的空间,也增加了厨房餐厅的使用功能,重新规划了厨房的使用动线,增加了厨房空间。顺利的将酒柜、蒸烤箱、冰箱、橱柜等融入在一起。大大增加了厨房、餐厅的使用多样性。
岛台高度略过于橱柜高度,能够实现厨房半遮半隐的视觉感受。同时增加的高度也更加适合收纳更多碗筷厨具等等。
内置灯光的加入,让玻璃酒柜里的美酒,展现出“葡萄美酒夜光杯”的韵味;
利用酒柜延伸,过道转角设计成操作台,增加了厨房操作台面,也增加了厨房的收纳。
开放式橱柜,放置一些常用的调味品,省却定制调料架等内容,方便也整洁。
全柜无把手设计,让空间更简约,整体更加平整。
感应式灯带能在晚上操作时提供光源,解决背光问题。
全屋采用无主灯设计,运用射灯+小孔灯搭配磁吸灯构建全屋灯光照明系统,为家居不同环境使用灯光创造条件。整体调性也更加干净、整洁。
黑色皮质沙发与背景格栅板相得益彰,布艺沙发、电视墙的白色纹理大理石等等颜色和材质的结合凸显了整个空间的高级和质感。
通体石材电视背景墙,不仅质感突出,也隐藏了诸多收纳功能。所以看不到任何线头与插座。悬空的石材电视柜,配合灯带,给人视觉上的延伸,立体感大大加强。
主卧的设计延续黑白灰的整体风格,空间没有过多的装饰,追求“少即是多”的现代美感。仅用护墙板做了半包的背景墙,再利用飘窗多出来的位置做了一面置物架和隐形收纳柜,简约耐看。
全屋非常规房门设计,其通顶挑高的比例设计,通过对线条拉伸,能延伸视觉美感,让家也以一个更美的姿态呈现。
儿童房的色彩以梦幻的粉色为主基调,结合纯洁的白色,提高了粉的质感。
全屋定制榻榻米和衣柜,让整个空间无处不收纳。精心定制的“房屋”造型衣柜,增加整个空间童趣。
鉴于孩子成长各个时间段对于空间功能的需求不同,所以儿童预留空间,现在是玩耍区,未来就是她的“寒窗苦读之地”。
相关案例推荐
印集设计
设计师相关作品

粤公网安备 44010602000156号