前言: 不同的家庭就会有不同的设计,<br>设计:应以居住者的生活习惯来定义。
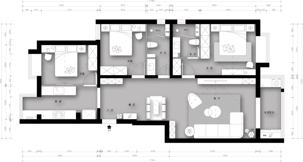
主卧
次卧
主卫
次卫
相关案例推荐
网友评论
大東·設計
设计师相关作品

粤公网安备 44010602000156号