前言:
									业主期待:1.进门对于一面墙,解决堵的感觉。
          2.厨房放了双开门冰箱后,空间太小,想多些收纳放置厨房的物品。
          3.希望露台可以种菜,养花,养狗。
          4.进主卧室的线路太绕,想要衣帽间和大的卫生间。
          5.阳光房想变成独立的亲子书房。
          6.想要独立的储藏室放置孩子推车、玩具车等。
 设计师构想:进入玄关把厨房和餐厅客厅都融为一体,开放式厨房的感觉。
             设计师在动线上做了合理的调整,让人在其居住使用时更为舒服。
这个房子是在顶楼,光线是超级好,厨房餐厅客厅全明亮的空间,每个房间都是有大面积窗户,书房里有个天井,阳光月光都能照到,窝在书房里不想出门。想想以后的生活有阳光陪伴是多么美妙的事情。
									
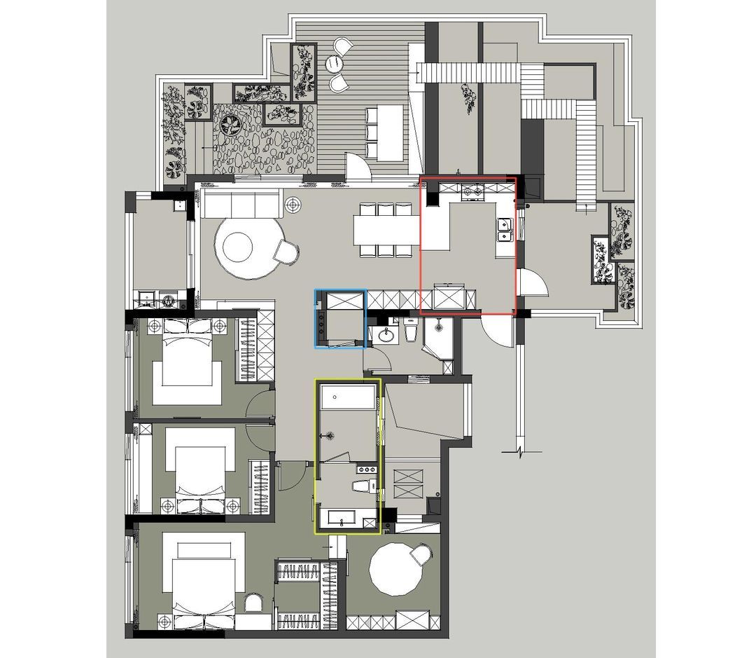
原始图中:红框内厨房对着进户门的墙拆除,进门感觉视野打开,这样开放式厨房操作台变大,90公分的吧台和餐厅对接在一起。
          蓝线内是把原来过道区域变成储藏室,更改过道区域。
          黄线内把原主卫的区域扩大,让卫生间享受更大的窗户。
平面布置图:红框线内整个是开放式厨房,灶台水槽冰箱形成三角线,这样操作比较便捷。
                  蓝框线内做了整个储藏室,里面设置插座方便装挂壁式吸尘器,柜子做成活动层板方便放置大的物件。
                  黄框线内变成整个主卫,浴缸和淋浴房合成一个区域,这样干湿分离,给孩子洗澡玩耍都比较方便的。
动线图中:绿色线是动线的更改,把动线变得更顺畅,均匀分布收纳。
客厅地面采用蓝色妖姬大理石700多一平,电视柜和展示柜融为一体,柜子采用现场制作面刷芬琳水性木器漆,下面采用黑白根大理石和爵士白大理石。
三人皮沙发和单人灰色皮沙发茶几都是整体工厂定制的,圆形茶几面采用火烧石,地毯是羊毛地毯。
圆形高低不同茶几,给空间增加焦点,窗帘采用棉麻材质,选择米色调给空间增添暖色。
红海行动海报很带劲。
小品点缀
电视柜连体过道收纳柜一体,柜体下设置暖色灯带,给空间更加层次感,同时可以做夜灯使用。
看到这个苹果装饰品就想到草间弥生大师的麻瓜。
月球人画配太空人的小雕塑更为和谐。
对比照。整个客厅有两面大落地窗,让自然光线只照空间,阳光是家最好点缀元素。
开放式厨房,灶台采用火星人集成灶,水槽区域是93公分高,让洗菜切菜更为舒适。
餐桌连着橱柜一体,集成灶上方做了整排吊柜,收纳增加了不少,链接餐桌的台面是天然大理石,下面都做收纳柜。
墙面和地面虽然都是灰色掉,整体暖色灯光运用让空间温馨很多。
上图是在水电阶段的图片,前后对比照出来。
厨房区域开阔和整个客厅餐厅融为一体,左边是大面积收纳柜,门板选择胡桃木色让空间更为稳重。
转个角度看餐厅和厨房。右边柜体内嵌冰箱和烤箱。
餐厅有个门可以到露台,孩子在外边玩耍也不用担心。
这个是开灯光的效果,窗帘上方有隐藏的暖色灯光。
不开灯的情况下,客户说我们家都不用开灯的,窗户和门都打开整个空间都比较凉快。
1.8米餐桌平时只放4把餐椅,另外两把放在书房,留出更多空间放宝宝餐椅。
这样的玻璃饰品家里不放的,拍照时设计公司带过去的。
上图是施工时水电照片,下图是完工时照片。
主卫台盆柜采取工厂定制的,下面做的有抬高10公分,放置受潮。
大面镜子和柜体一体定制,旁边开放式格子是为了方便放置脱下来的衣服。
浴缸和淋浴一体,卫生间有这么大面积窗是比较少见的。
主卧室。羡慕大面积落地窗的卧室,屋内做了简单的装饰,背景墙采用皮质硬包。
背景是硬包方法,线条是不锈钢材质。
客户买的小雕塑比较有趣
卧室就是纯睡眠空间,开关插座都设置在同一高度,是西蒙品牌。
胡桃木外挂移门后藏着现场制作的衣帽间,这个移门是吊轨,70公分宽。
客房是父母常住,采用最简单的方式呈现,半高的是90公分护墙板,小吊灯方便两边人是使用,夜间开任何一个都不会影响另外一个人睡觉。
窗帘选择上和墙面涂料颜色接近,更好的融合一体,让空间更为沉静。
书房是套在主卧室内的,为了加班看书不影响主卧室人的睡眠,采用实心门,也是吊轨移门。由于原阳光房区域有个地梁,你会看到进书房门有个踏步。
书房内做地暖就整体抬高和地梁一样高了,通常做水暖后完成面是10公分。
书桌现场制作更合乎实际的尺寸,采用木工基础贴饰面板刷水性漆。
防止书桌面晒坏,采用大理石台面,窗帘采用风情帘,很好的调节光线。
移门背后是采用黑板纸做的,买回来自己贴都可以的。这里和孩子一起玩耍。
对比照。绿色植物是壁画,无纺布材质160一个平方,书柜是整体现场制作刷水性漆,需要800多一平。
书房上方是个天井,只做了平面的窗帘,本来是想做电动的开窗的,价格太高就放弃了,这样也挺好。给天井做了个玻璃顶,里面装了空调,装了地暖,这样窝在这里看书是享受的事情。
大面积的飘窗整体做的是木作,连同旁边的书柜,选择的天空蓝。
顶面采用好玩的壁画,孩子喜欢躺在床上数动物。
现在书还很少都放在书房里,等过两年孩子独立谁在这里,他的书柜就会填满,希望孩子在飘窗上晒着太阳看着书,自己的小小秘密基地。
床背景是采用硬包做的不同颜色的组合。
床是整体工厂定制的,是柔软的布材质。
相关案例推荐
 
							本空设计
设计师相关作品
 
 
 
												
													
														
															
																 
												
													
														
															
																 
												
													
														
															
																 
												
													
														
															
																 
												
													
														
															
																 
												
													
														
															
																 
												
													
														
															
																 
												
													
														
															
																 
												
													
														
															
																 
												
													
														
															
																 
												
													
														
															
																 
												
													
														
															
																 
												
													
														
															
																 
												
													
														
															
																 
												
													
														
															
																 
												
													
														
															
																 
												
													
														
															
																 
												
													
														
															
																 
												
													
														
															
																 
												
													
														
															
																 
												
													
														
															
																 
												
													
														
															
																 
												
													
														
															
																 
												
													
														
															
																 
												
													
														
															
																 
												
													
														
															
																 
												
													
														
															
																 
												
													
														
															
																 
												
													
														
															
																 
												
													
														
															
																 
												
													
														
															
																 
												
													
														
															
																 
												
													
														
															
																 
												
													
														
															
																 
												
													
														
															
																 
												
													
														
															
																 
												
													
														
															
																 
												
													
														
															
																 
												
													
														
															
																 
												
													
														
															
																 
												
													
														
															
																 
												
													
														
															
																 
												
													
														
															
																 
												
													
														
															
																 
												
													
														
															
																 
												
													
														
															
																 
												
													
														
															
																 
												
													
														
															
																 
												
													
														
															
																 
                                                     
                                                         
                                                     
                                                     
                                                         
                                                     
                                                         
                                                     
                                                     
											
											
										 
											 
											 
											 
											 
											 
														 
														 
														 
														 
														 
				 
                
 粤公网安备 44010602000156号
粤公网安备 44010602000156号