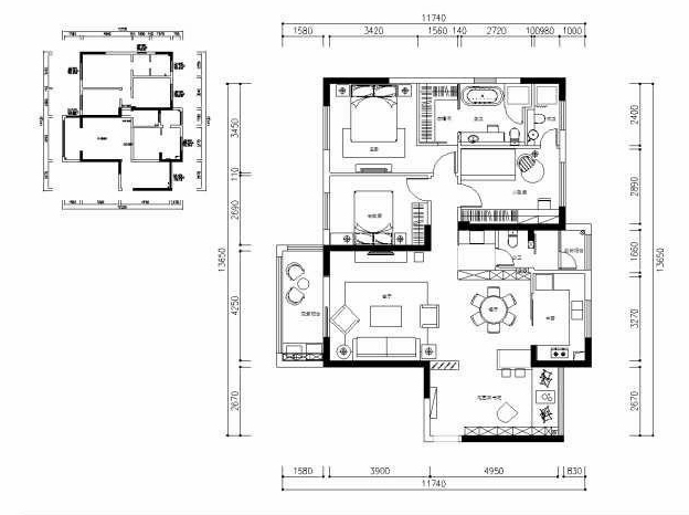
前言: 房价高企的时代,对于普通人来说,经济压力是痛苦的。购房前,总价、地段、学区、朝向等等因素更让人一个头二个大。等到房子购买完毕,怀揣对未来的美好居住环境的憧憬,不觉又要踏上装修的战场。硝烟弥漫、斗争不断,“敌人众多“嗯,比如吧自我爱好与需求之间,夫妻之间的不同意见,长辈之间啦。如何巧妙的平衡周旋,So!委托一位专业的设计师就非常必要了。言归正传!本案户型南北通透,采光良好、安静且格局相对方正。设计过程比较顺利。后来吧,男主更爱家爱厨房。是不是很大惊喜啊?
进户玄关做了适当的视觉遮挡处理,这样主卧的房门可以开在正面走道内,衣帽间适当调整了位置,挡住主卧卫生间的门,在心理上,风水上都有交代。原设计给女孩房加了个套卫,因实际施工和邻里协调的原因,无法完成。所以有时候,普罗大众设计也需要考虑所在地区的施工水平,不能处处宏大叙事,有时候确需直面生活。是妥协也是平衡。
利用原进户花园结合玄关一起,做成一个多功能空间,小朋友可以在此处玩耍、家中客人多了,女士或男士可以分开交流沟通。偶尔中午小憩、阅读。也给玄关引入了光线。
多功能空间,是小朋友可以在小伙伴一起HAPPY的小天地。偶尔客串客房
实际生活的必须,秋冬季节入户脱掉的长衣服,长雨伞、外出的包包等都有收纳的位置。
仿明式罗汉床,细部一般。平民材质。胜在价格亲民。地球人都知道海黄的好。
球迷的必备,大屏电视,满满的现场感。一侧的带脚踏的单人沙发,将舒适进行到底。宽敞,明亮光线永远是最好的装饰。
落地灯角度调节也比较方便。合用买的起有时候就够了,太霸蛮不太好。
品质生活参考因素之厨房,大大的、明亮的窗户,配套齐全的设备。洗碗机啦、蒸箱啦、烤箱啦、等等。先不说厨艺如何。好的厨房设计,让人进去就想大展身手。顺带就爱上了生活!
窗台的多肉和小盆栽,融融绿意和慵懒的Q感,聊以慰藉那些需要被同情的、终日周旋于“小祖宗”身边的昔日的女王大人。
餐厅区选用沉稳温暖的胡桃原木桌椅,一侧是餐柜,一侧是可以洗个水果,喝喝东西。放一下汤煲、电饭煲的工作台。这个高度,即使是放了热一点的东西,也不用担心,小朋友会扒拉到。
收纳收纳统统装进去吧。各种你想不到的东西。老家带的土特,朋友送的黄小米,公司发的福利。。。。。较多的带柜门的收纳空间,一定程度上,给并不是生活中,井井有条的你,在朋友上门的一刹那。
相关案例推荐
铁砚设计桑辉
设计师相关作品

粤公网安备 44010602000156号