案例 > 商业空间 > 案例详情

以店为家的日式面包店《面包家》

南京 |购物 210㎡ |30~50万 |风格: 日式
2019-07-30
33348

前言: 此案历时较长且中间很曲折,去年夏天业主找到设计师的时候是另外一处地方,后来由于一些原因那个地方没有达成租赁协议,后来业主就到处找房子中,2017年5月后才终于找到一处合适的地方,于是我们的合作又重新开始。业主属于有情怀又品味不俗的人,所以开得店也是要有内容的,用他自己的话说就是要看见店门面就像进去看看的那种感觉。喜欢日式,喜欢原木,喜欢接地气的随意,喜欢各种美好的小确幸。
整体空间呈现出一种宁静,禅味浓厚的日式氛围。透过门口大大的落地窗可以看见店内质朴的设计,与外面现代崭新的楼房街景形成鲜明对比,紧紧抓住你的目光。门头更是夺人眼球,大面积白色粗制外墙漆搭配黄色的防腐木简洁明了在街面上各色鲜艳的门头中脱颖而出。
这个空间其实是由两家门面打通后组成的,光平面格局上就经过了两个月的斟酌才最终定稿。定稿后的平面格局前厅有个大柱子,而且柱子正好在前厅的正中间。业主开始非常担心这个大柱子会影响零售区的动线和整体效果。设计师根据现场的环境层高,把柱子做成了一棵结合展示台的大树,最终出来的效果是这棵树到成了最大的亮点。
受制于工期及营业性质,需要用到大量木材的地方设计师都用杉木指

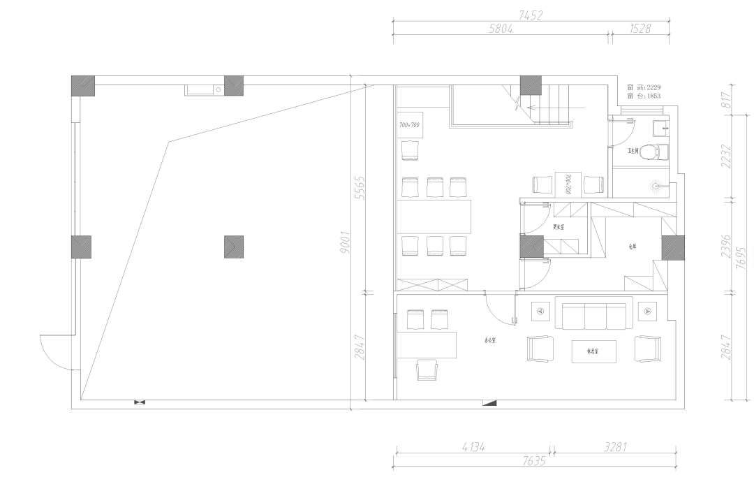
户型图

户型图 日式

原始平面图是两个店铺合并的

户型图 日式

平面布置图,考虑到购物动线及零售方法,把产品展台和就餐区划分开。这样顾客一进门就可以看到各种产品,很饱满。

户型图 日式

阁楼主要是办公室及仓库和卫生间。

玄关

玄关 日式

门口小景

玄关 日式

大门

玄关 日式

门头外立面

客厅

客厅 日式

点单台

客厅 日式

进门的零售区

客厅 日式

大树展台

客厅 日式

从餐台看整个空间

餐厅

餐厅 日式

吧台及就餐区

餐厅 日式

就餐区

餐厅 日式

卡座区域和秋千

餐厅 日式

卡座

网友评论

张兆娟

江苏省 报价:140-260元/平方米
扫码查看更多案例
点赞
评论
小程序
扫码登录 账号登录
请打开家居杂志客户端“扫一扫”
忘记密码?
还没有通行证帐号?立即注册
其他账号登录: