前言:
屋主是两个热爱生活的年轻人,女业主是我大学室友的朋友,夫妻二人喜欢温馨又简单的居家氛围。整体的色调暖木色为主,冷灰色为辅,希望能灵活的运用到整个空间里面,使得空间在色调的搭配下简约而又不简单,考虑到自己预算这块,所以对于材料质感无太大要求,只希望用料环保实用即可
房子是二手买入、本次装修全屋翻新,整屋硬装预算希望能尽量控制在十万以内,(房贷压力下不得不控制装修预算),做为设计师的我,理解的同时又不得不惆怅!这个预算别说效果了,能不能做出来都是个超大难题!但看到屋主对新家万分期待的眼神,我又不得不将心底话给藏起来,还是试一试吧!哪怕最后不成最起码也能够给屋主方一个比较好的建议
最后通过我们双方的共同努力下终究还是成功了,预算这块算下来跟屋主预期差不多,而效果却超乎预期非常多.......
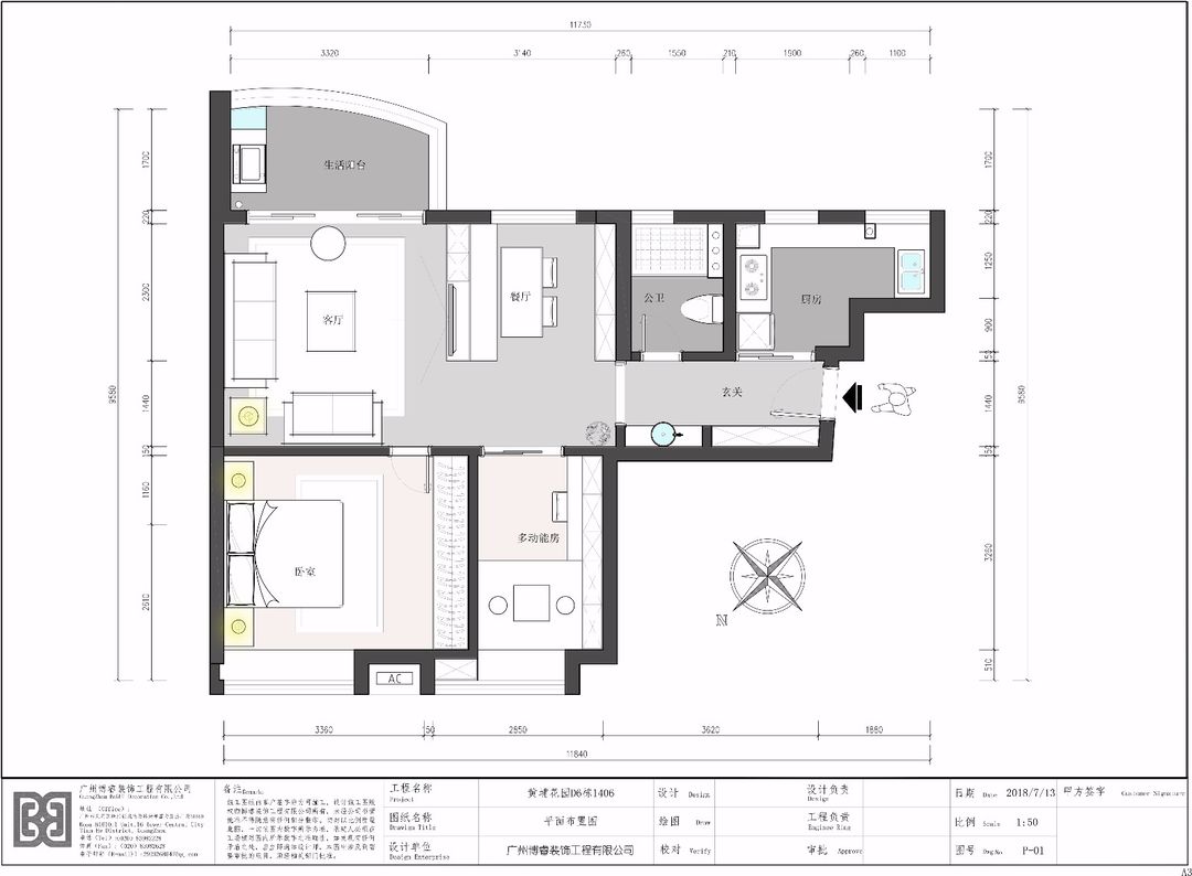
剪力墙的广泛分布导致室内布局受到了不少限制,本案布局相对比较规范,动线清晰,重点强调的动静区域的分离,值得一提的是电视背景这块,采用柜体隔断式的设计手法来区分客餐厅位置,美观的同时也非常实用,考虑到目前就夫妻二人住,而且近几年也不打算要小孩,所以次卧的位置给做了多功能房,满足睡眠功能的同时也能分担部分家庭的收纳
在平面的展示下爱的“小窝”已初具规模~
进门左侧是满墙的鞋柜,能够充分满足夫妻二人的收纳,顶柜可以放些平时不常用到的物品,靠门内嵌位置预留了正己镜及换鞋凳,中间的镂空位置方便放包包、钥匙及一些个性摆件等等
柜子是直接对接的家具生产商家(属于贴标厂),其一是价格比较符合业主预算,其二有质量保障
白橡木色面板“高雅”的特性给整个家增添多一份质感的同时又带来一丝知性
为节约成本,我们地板是在原有基础上直接进行铺贴(原地面是瓷砖,无需找平、打拆),不过这种做法也有弊端,整体层高会因此受到影响,所以为了避免产生压抑感,顶面的处理方式就非常简洁,直接一抹白墙过去,没有任何装饰性吊顶,从而保障不受到影响
挂画是去家居市场淘来的,总共下价格不到500-RMB........嘻嘻
考虑到偶尔会有朋友过来聚餐,所以电视柜的背面我们给利用起来做了个卡座,节省空间的同时又能提高餐厅区域的实用性,而且卡座的纳入能给整个电视背景带来固定的作用,从而延长整体寿命
坐凳下边的三个收纳柜也能减轻家庭收纳的"负担"
柜体都是找同一家厂商定做生产,质感比想象中要好许多,有股淡淡的宜家风~
相关案例推荐
博睿设计
设计师相关作品

粤公网安备 44010602000156号