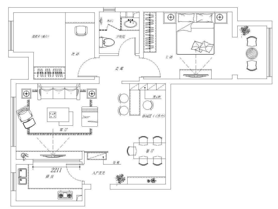
前言:
业主的要求就是多功能,所以我们整体的设计都是围绕多功能来进行的。
半雅半粗器具
半华半实庭轩
酒饮半酣正好
花开半时偏妍
客厅
#装饰画 #吊灯 #沙发 #台灯 #茶几 客厅全貌.没有明亮的色彩,业主很是喜欢这种低调的感觉
#电视柜 #吊灯 #飘窗 #电视柜 #隔断 #窗帘 #纱帘 #地毯 #绿植 #音响 #靠垫 这种日式的感觉很棒的
#电视柜 #吊灯 #飘窗 #电视柜 #隔断 #窗帘 #纱帘 #地毯 #绿植 #音响 #靠垫 这种日式的感觉很棒的
#茶室 #书架 #冰箱 #隔断 #休闲椅 #吧台 应业主要求家里一定要有个茶室.
#沙发 #台灯 #地毯 #装饰画 #靠垫 #茶几 蓝色的小边几真的很好看.
卧室
#床 #床头柜 #衣帽间 业主很喜欢衣帽间但是空间有限所以选择了步入式的.也很实用
次卧是卧室与书房兼用.有客人的时候住在这里.平常是当做书房工作来用.北京房价这么贵总不能总是空闲一间房的
#靠垫 用黄色来调节卧室的气氛.活泼一点的
#工作台 工作台很大两个人一起工作完全没问题
#梳妆台 总是要给女主人准备梳妆台的.女人总是爱美的.
相关案例推荐
网友评论
五明原创设计
设计师相关作品

粤公网安备 44010602000156号