前言:
本案案例是精装房改造,改造成民宿酒店的样式。每套建筑面积在45㎡左右。地址位于武昌区五环天地之中。每套改造费用不含家电平均下来在2万元左右。
每间房均使用100寸投影幕布,搭配环绕音箱,有极佳的影音效果
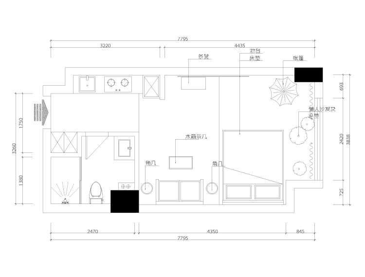
每套户型思路解分成了4个部分:
①:沙发休闲区 (满足座谈等休闲放松区域)
②:睡眠区(睡眠及辅助功能)
③:娱乐打卡区(有一定创意性区域,可拍照可丰富空间)
④:投影墙面(整面预留100寸投影幕布和小型写字桌)
这个风格是脑海中想到的第一个,民宿需要的感觉就是安静舒适。
以10公分地台弱化睡眠和功能休闲区。想让整体或坐或躺都可以。闺蜜一起住可以坐上地上相交谈心,情侣搭配夜光等效又是甜蜜的一夜
地和顶都选用了防腐木刷白漆,搭配实木圆柱,树皮都没剥这样看起来更古朴。
沙发原本是皮粉色,可惜实物和网络图片色差过大,本想退换货但是拿白色搭毯配一下感觉也不错。
帐篷上搭配了捕梦网,配以星星串灯,窗帘上也有,夜晚时分如繁星闪烁。
选择的60支磨毛床品,体感非常舒适
敦实的圆木柱是梁上原木切割出来,再打磨上清漆,摆上几本好书,搭配落地窗就是绝佳的读书角。
想做一个深色的房间,冷静,干净又不失精致和趣味。
原户型吊顶高低不均,用自喷漆涂黑黑色石膏线做顶线,并做了一层腰线,扩大房间的视觉感。
颜色使用上黑色千鸟格,黑白斑马纹搭配比较重的蓝色绿色咖色。
软装造型上全部使用的有棱角造型搭配圆形茶几吊椅。做到方圆结合。
极简+复古是我一直特别喜欢的2种风格,让他们融合起来碰撞出新的火花
不用复古石膏框线,改成线条框线墙纸
传统繁复的欧式床也改成铁艺造型,简单的线条隆起仿佛城堡尖端
吊灯虽然是线条造型却也还原除了复古风格的优雅。
基本元素都是线性,想要营造出严谨优雅的感觉。在细节上调整了壁纸的线框大小,让床的立柱刚好卡在线框边缘,营造对称气氛。
挂画也是线性的城堡,抽象的点题。而且也必须要对称。
民宿成本不高,也想让材质的感觉有点碰撞。丝绒,大理石,铁艺和玻璃。
初期想法是打造一所有异域风情的度假心居地
地面使用水泥地平,即好打理也有一丝粗狂感
墙面使用墨绿色纹理纯色墙纸
所选软装材质都是自然的藤质,树木,竹子,棉纱等,打造一些古朴感觉
粉色是女生无法抗拒的颜色
藏在心底的一丝少女心此刻正在蠢蠢欲动
大大的床边浴缸填充柔软海洋球,粉红豹陪你一起“泡澡”
所有的软装陈列也是拍摄的道具,不同的道具组合任你搭配
关灯后的气氛感觉又是另一种感觉
INS风房间当天拍照的时候已经晚上6-7点了。光线严重不足,大景拍出来颜色发白了些,实物比较好看
相关案例推荐
云尖设计
设计师相关作品

粤公网安备 44010602000156号