前言: 房子本身是一小复式,但原先的布置各方面都很不合理,造成空间无法完全利用,浪费和面积很多。
户型图
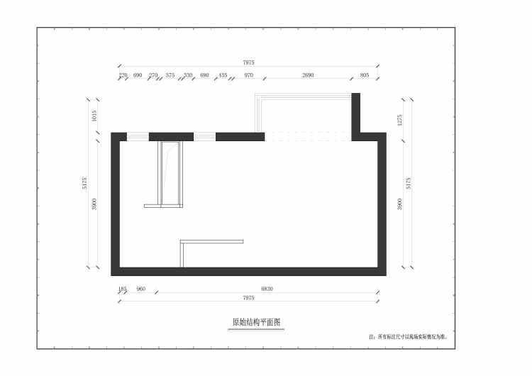
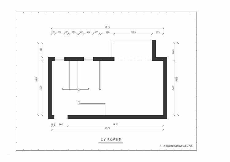
一层户型图原本进门右手边就是上二楼的楼梯,而且作为卧室没有私密性楼梯在此处也无法利用楼梯下面的空间。
二层户型图二层上来之后整个是一个开放的空间,实际二层的面积还算比较大,整个作为开间比较浪费
一层平面布置图首先改掉了楼梯的方向,整个二楼相对来说会比较私密独立,楼梯下方的空间也可以作为储物柜来使用。厨房做成了半开放式的,保持了通透和采光,同时也避免了最担心的油烟问题。门厅加入了一个小玄关,阻挡了卫生间正对门的问题,后期业主怕门厅显小就取消了
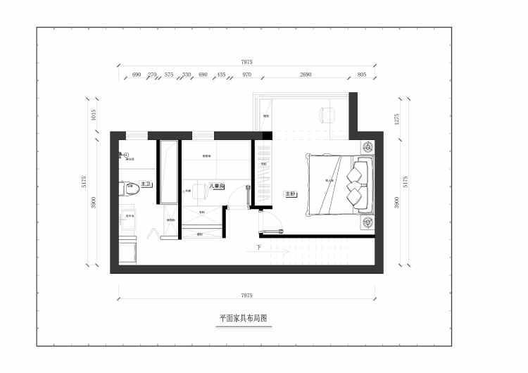
二层平面布置图解决了原先上来过于开阔的问题,还挤出了一间儿童房修改了格局之后,整体上三口之家生活,储物空间已经完全足够了~当然也保留了足够的活动空间
相关案例推荐
网友评论
苏可呀
设计师相关作品

粤公网安备 44010602000156号