前言: 这个案子是一个高3.94米的Loft。目前业主一个人住,有时候父母也会来,希望这次装修能满足未来结婚及有宝宝后三代人同住的情况。在这次设计改造中,我们结合了业主反馈的居住需求还有家庭成员的身高,计算出单层的极限使用高度,分隔出3层,最终实现了2室2卫1书房的格局。又解锁了一种关于Loft户型空间设计的新手法
户型分析:
1.楼梯位置不合理导致厨房使用不便
2.上下两层空间分配面积失衡,功能区缺失
3.不能满足多人住宿需求
4.储物量不够,且没有分区规划
户型改造:
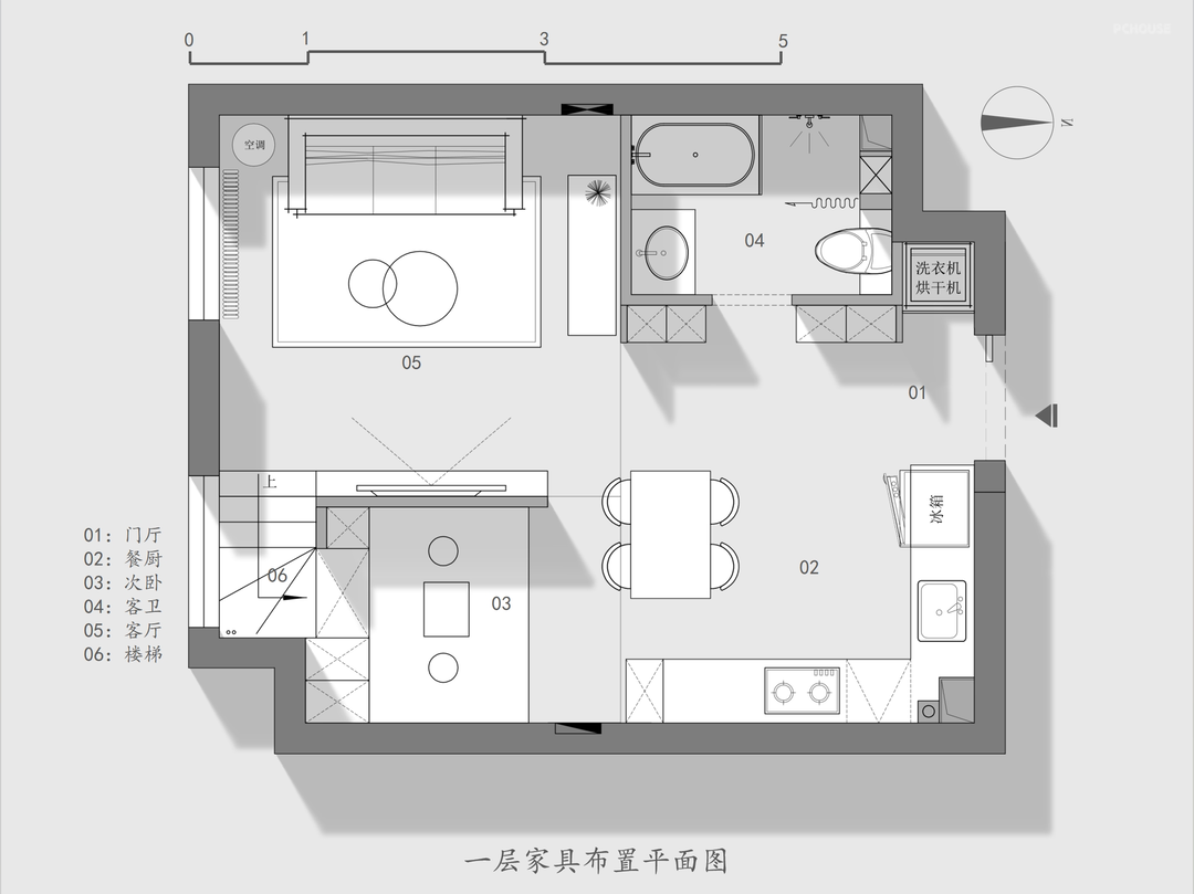
(一层)
1.调整卫生间墙体,增加进门鞋帽柜
2.挪出洗衣机,卫生间增加浴缸
3.调整楼梯位置,楼下做完整的厨房+餐厅
4.缩小客厅面积,用地台做出多功能区,可阅读可睡人
(二层)
5.计算层高,隔出半开放独立书房
(三层)
6.调整床头方向,利用空间宽度做储物+睡眠区
7.增加一间卫生间,解决楼上上厕所不方便的问题
原户型一进门没有换鞋区,鞋子和钥匙、手表这些随身物品都没地方放,家里看起来就很杂乱。我们压缩了原卫生间的深度增加了两组鞋帽柜,一组是上中下分段设计的鞋柜,开放格里能放手表耳机钥匙这些零碎物品,一组用来挂外套围巾和斜挎包,随身的东西一进门都能藏起来。
一层的卫生间是主要的洗漱区,为了保证卫生间内更舒适,就把洗衣机和烘干机移动到门厅区域,洗衣区的操作空间也要更宽敞些。我们在洗衣机底部做了50mm高的地台,更方便洗衣机排水。
原来的入户门洞有1480mm,有点太宽了,我们把门洞右边缩小了300mm,让给了厨房,这样厨房就可以选一个大冰箱和大水盆。原来楼梯是在厨房顶上,橱柜有很长一部分都不好用,楼梯调整后,现在橱柜吊柜和地柜均有4米,除了洗切炒的基本需求之外,小电器也能放得下。
吊柜和地柜中间贴的是木纹砖,勾缝是专门用环氧彩砂调的同色缝,这样会更整齐一些。
餐桌放在厨房里,用起来超方便,炒完菜上桌还有吃完饭收拾餐具都是一个转身的距离。考虑到家庭成员增加或者朋友聚餐,餐桌选的是凡屋的“余晖伸缩桌“,拉开后可容纳5-6人一起吃饭。餐厅的灯用的是摇臂灯,方便餐桌拉出来后灯也能挪到合适的位置。
最关键的部分来了!如果按照常规的Loft分隔习惯,3.9米的层高分成两层的话,一种情况是楼下2000mm,楼上1750mm,另外一种情况是楼下1900mm,楼上1850mm,这两种情况都可以正常住,但是一旦结合业主的生活习惯,这两种都不是最优解。他有长时间居家办公的需要,我们把空间上下分隔成三个高度,一层厨房高2000mm,二层书房高1935mm,三层卧室高1720mm。这样活动时间较多的厨房和书房都最大程度上拥有了舒适的高度。
入户门正对的墙面,做了3个竖向排列的石膏壁灯,增加回家第一视角的氛围感。这种壁灯需要在油工阶段预埋灯体,再用腻子找平,最后像墙面一样刷漆,壁灯和墙面就融为一体了。餐边柜选的1500mm长的,平时在这冲点咖啡喝点茶都很方便。客厅现在可以看电视也可以看投影,电视机是用移动支架放,投影直接投到电视墙。餐边柜边上的角落,本来计划放绿植,业主入住后发现放各种清洁设备很方便。
电视墙下边我们做了一排通长的收纳柜,也当作楼梯的第一节踏步,还可以放业主的一些音响和游戏设备。
窗帘是电动日夜蜂巢帘,平时在家不想阳光太强烈就可以用纱帘模式。蜂巢帘的好处就是一帘多用,节省空间,让墙面显得更利索。
家里的照明,挑空的区域用了两排明装轨道射灯,不影响楼上楼下互动的视线。
这个地方主要是考虑老人,因为老人来住的时间不多,就用地台代替常规的床。地台上铺的木地板,不在这睡觉的时候把床垫收纳到柜子里,就是一个休闲区。柜子打开就是楼梯下方,空间还是挺大的,能放不少东西。
一楼卫生间现在有3.6㎡,满足了洗漱柜、马桶、浴缸、淋浴四个功能。浴缸尺寸是1200mm*750mm。
为了保证一层卫生间层高的舒适度,楼上卫生间的排水管是贴顶面边缘走的,不需要牺牲整体的层高。排风是占用壁挂马桶水箱上方的吊顶厚度来安装的。
楼梯设计的是L型转角楼梯,下面的空间刚好留给多功能房当衣柜储物。
二楼的矮墙做了木质扶手,比原漆面扶手更好打理也比金属材质的触感更舒适。
他家用的是4cm高极简超薄金属踢脚,相比木质踢脚更硬朗简洁一些,像阴阳角的收口也是有专门的配件。
一上楼梯右手边的玻璃柜,用来展示他各种各样的收藏品。
考虑到主卧的采光和通风,门装的是1200mm宽的玻璃子母门,想大量通风就两扇都打开。窗户上也留了开启扇。床背后是开发商赠送的储物空间,很矮很不好用,我们利用洞口厚度,在靠近床背的地方做了一个开放格,在两端做的推拉门,这样储物间里还可以放一些不常用的东西。
楼上衣柜总长2240mm,高1720mm,主要以挂衣区为主。空调安排在了梳妆台上边,不吹人,空调管藏在书房开放格后边。
相关案例推荐
黄英培
设计师相关作品

粤公网安备 44010602000156号