前言:
项目坐标:南航明珠花园
项目名称:素简北欧
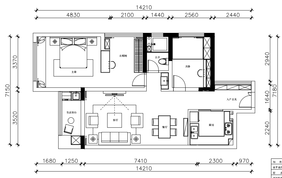
设计面积:89㎡
设计风格:北欧风
本案设计:境相设计
本案施工:聂工
每个人对家都有着不同的期待,屋主Ruby对这个未来的家也有着自己的憧憬。她希望在这个不大的房子里,有一个能淡理妆容的衣帽间和一个能让狗狗自由玩耍的空间,这些简单却不平凡的小愿景,终将成为未来生活里的小确幸。锦素流年里,回归初心,私享惬意。
设计师赋予了这个89㎡的房子一份宁静的北欧风情,线条简练、色彩明快,注重功能且贴近生活,清新素简如晴天一缕晨光,亦如雨天一湖涟漪。
木头的材质搭配清新的色系总能带来一种明亮感。设计师以北欧的“极简主义”为出发点,以北欧家具独有的线条感勾勒素简的居家轮廓,同时利用软装的色彩搭配增强空间灵动性。 #客厅
由于客厅电视墙结构上的不平整,设计师顺着不平整的天然结构设计出一个文艺小白砖电视墙,将电视柜也嵌入进去,极具肌理感的视觉呈现瞬间提升客厅文艺格调。 #客厅
在这样的客厅里喝茶、闲躺,心情总能立刻放松下来,这就是北欧风传达的一种舒适轻松的理念。几幅挂画,三两心情;一地原木,一派舒适。 #客厅
由于厨房为暗厨,本身没有采光窗,因此整体空间以文艺白为主,缀入高级黑,同时以六边小花砖来提亮空间。 #厨房
实际上这与真正的北欧地区的设计理念十分吻合,北欧地区由于地处北极圈附近,有些地方会出现长达半年之久的“极夜”,所以北欧人会利用大面积的纯白色让空间显得更为明亮。 #厨房
餐厅与客厅之间没有刻意隔断,这样一来整个大空间显得更为通透明亮。纯色的空间背景色下,设计师着重表现原木色系的自然张力,以极简北欧家具的原生态线条完满空间的弧度美。 #餐厅
#餐厅 #餐边柜
#餐厅
素简并不等于平淡,它没有中式的沉闷,也没有欧式的厚重,它简洁自然,少了繁复的纹理和雕花,更能让人回归简单生活的美好。 #餐厅
#餐厅
原本不大的卫生间通过改变次卧开门的方向增加了独立的盥洗区,洗手台外置、干湿分区的设计更贴近生活需求,设计师通过不同色系、材料的使用,完美再现极简风格的纯净与素雅。 #卫生间
#卫生间
一派舒适的木地板,两幅植物挂画,床头两边各一盏文艺感十足的水泥吊灯,没有繁复的色彩,没有多余的装饰,设计师以极简的笔触为屋主打造出一个真正意义上回归初心的休憩之地。 #卧室 #床
#卧室
水泥灯、木框画、原木柜,最灵动的设计细节呈现,总能回归生活最初的追求与美好。 #卧室 #床头
#卧室
次卧集功能性与美观性于一体,既能作为客房使用,也能作为书房使用。白色系的采用让小空间更显敞亮,榻榻米床+收纳柜的设计更节省空间,也让整个次卧显得规整有序、整洁干净。 #书房
#书房
相关案例推荐
境相设计
设计师相关作品

粤公网安备 44010602000156号