前言: 这套2013年开始进行的设计因为业主有两年不在重庆2015年才开始施工,2016年完成。我们没有用太多的风格标签去定义这个设计,只是完成客户想要的功能需求。业主是企业中层领导,35左右的夫妻二人,设计之初有一个7岁的小孩,设计完毕的时候响应国家二孩政策,已经怀了二孩。父母基本不会在这个房子里面住,但是需要比较多的储物空间,且业主有国外生活的经历,所以弱化中厨,加强西厨等功能需求。
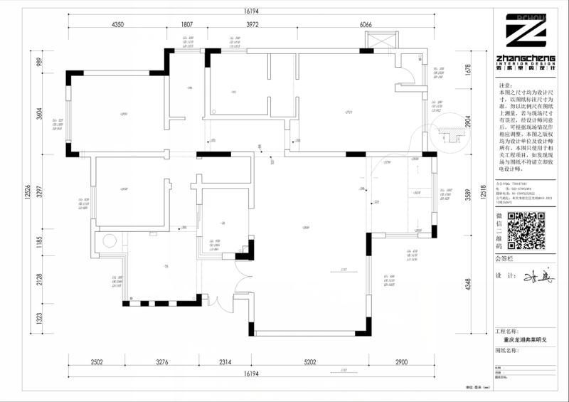
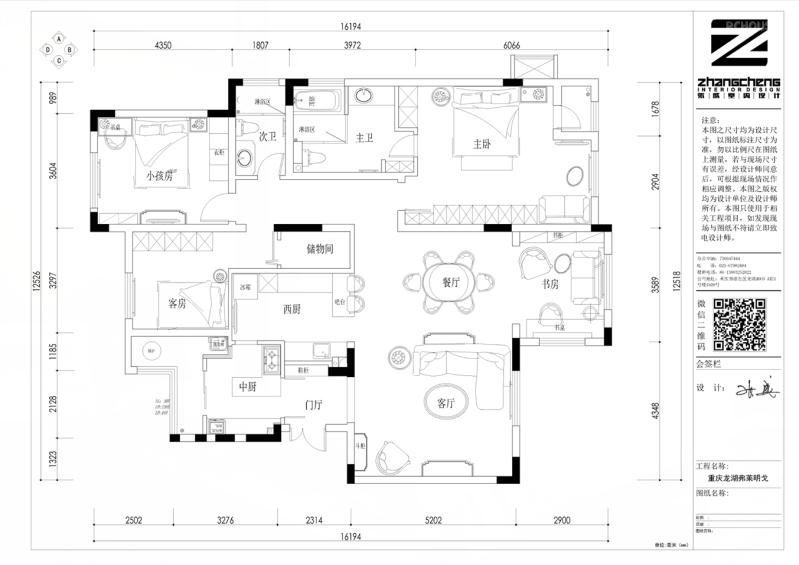
原始户型的动线比较复杂,该楼盘为龙湖早期开发的洋房户型,但是过道太多,动线结构不合理,厨房偏小。我们在后期改造的时候结合业主的实际需求,将原始厨房和过道的区域划分到了西厨,原始入户阳台区域划分出了中厨区域,之前的廊道的动线做了很大的改变,增加了整套住房的收纳空间。
结构上姑且全是改造吧,我更愿意叫做调整,根据需求做调整,尊重原始建筑,尊重原始空间。
干净,灰色的墙,亮光的砖,简洁的家具,简单的吊顶,一切围绕一个主题,不要多余的修饰。
我们团队在设计之前做过大量的调研工作,本身来讲,业主并不是特别喜欢大吊灯类型的设计,另外大吊灯类型的光源设计有一定的弊端,光源分布不太合理,整体空间的照度不够,我们在设计的时候更多的采用了点对点的照明设计,辅助了部分氛围光源以及重点照明,本身整个横厅的布局如果在整体吊顶比较单一的情况下,会显得设计单一,视觉重心太分散,所以我们设计的时候讲餐厅做了吊灯,作为餐区的重点照明,以及顶面采用KD饰面板作为视觉的一个补充。
不用主灯,偌大的客厅是否更加简洁,我们要的其实不简单,你能从家具的细节,硬装的局部看出来,越是简单越是有难度。
是否有那么一点时间,让你安安静静的坐下来,迎着窗外的阳光,喝一杯清茶。则一隅,即可。
360°,无死角,你能看到嬉戏的宝贝,也能看到忙碌在厨房的爱人,生活便是这样,满足。
冷静的墙漆,暗暗的色调,但是我们要的并不是冷冷冰冰,于是我们在吊顶的时候加了一片木质,让木质的自然,质朴,亲近融入这个家。
厨房的设计充分尊重了使用者的实际情况,业主因为有西式生活的经历,所以我们设计的时候弱化了中厨的面积,而加大了西厨部分的功能和面积,因为点光源会出现比较重的光影,所以为了在操作的时候照度更好,所以我们在橱柜的下方加了T5灯管,满足使用者在操作的时候的基本需求。当然西厨区域不但有冰箱、烤箱、蒸箱以及洗碗机还有水槽及吧台的功能性。
中厨,为了不太沉闷,我们讲地柜和吊柜的颜色叉开,既有木质的稳重和自然,也有白色的干净和优雅。
大大的冰箱装满对一家人的爱,烤箱和蒸箱也满足了西式烹饪的需求,伴着面包的清香,迎接一天的生活。
边烹饪边和其他家庭成员交流,生活就该这样,彼此的沟通和交流很重要。
我认为住宅设计的重点区域不应该是传统的电视墙,而是真正关系到业主生活品质的卫生间厨房等区域,所以卫生间的便利性以及美观性也是我们在设计的时候考虑的重点。
干湿分区的好处在于使用者在使用淋浴等功能的时候水不会溅出来,保证了干区整体的舒适性。
在我们的设计里,比较少的会将卫生间的门放在柜子里面了,很多年长的人会那样做,而我们觉的卫生间是和卧室一样重要的空间,所以不会刻意去隐藏
我们把电视放在了主卧的小休闲区,这个区别于一般家庭,同时保证了主卧区域的衣柜收纳
科凡的衣柜现代风格或者台式有很多人都会选择。细节不错,不过设计还是需要设计师去把控
到顶的厂柜门和加长拉手会使柜子显得更好看。很多客户担心的柜门变形问题在合理的尺寸内是不会有问题的
这一个横向摄影我们也是很喜欢,男主人的摄影功底很好,这个画面在主卧这个区域也显得很宁静
相关案例推荐
张成室内设计
设计师相关作品

粤公网安备 44010602000156号