案例 > 住宅空间 > 案例详情

兼具艺术、品味与实用性的豪宅

长沙 |风格: 现代
2016-03-28
12548

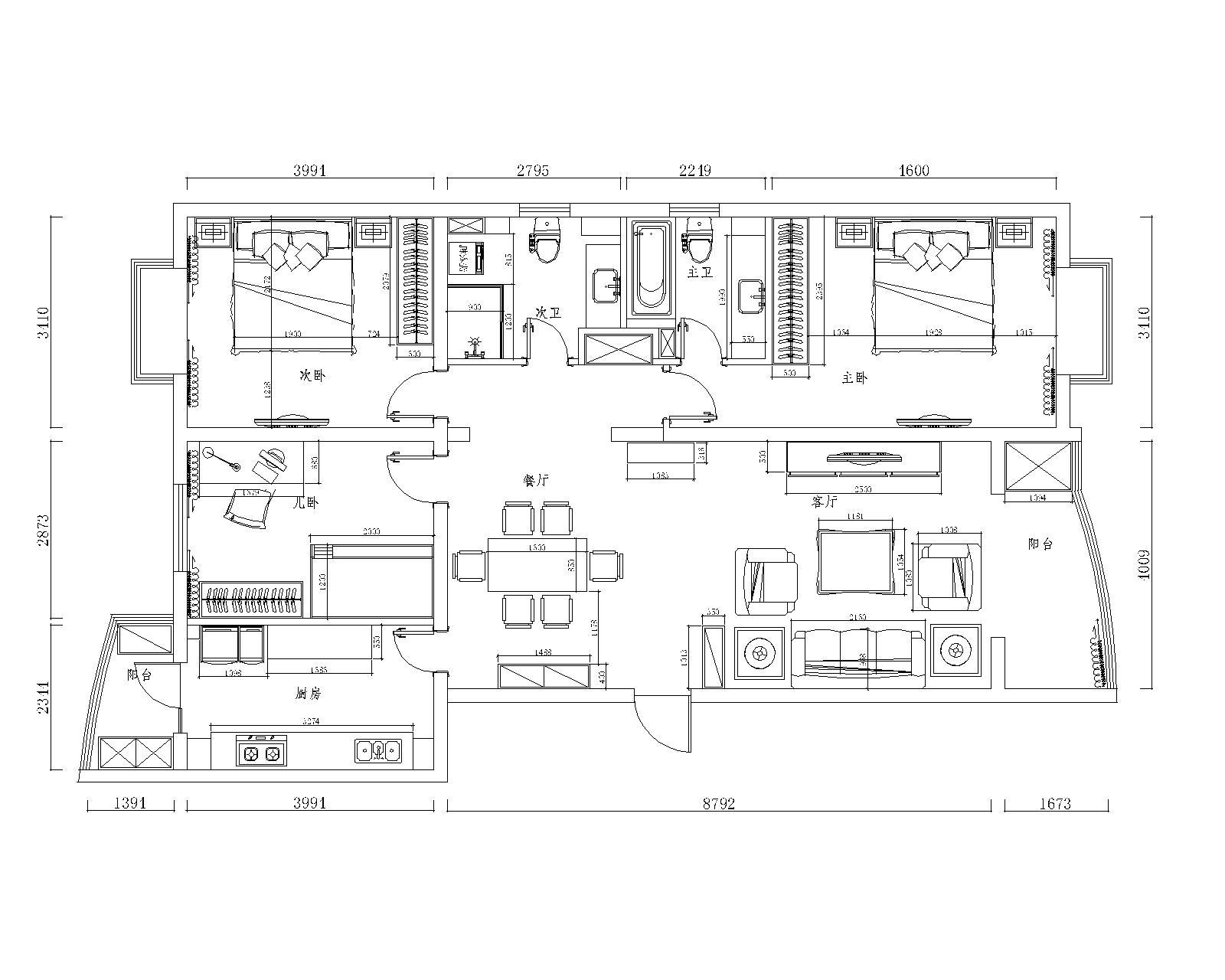
前言: 豪宅,不是说一定要多么的高大上,一定要用多么昂贵的材料来堆砌。真正的豪宅,应该是兼具艺术、品味与实用性的。以上这些细节告诉我们,豪宅的“豪”,不只在于金钱,更重要的,是要拥有上层的生活美学。 装修公司:金煌装饰 咨询热线:400 8090 488 QQ:2214141969

餐厅

现代 餐厅

书房

书房 现代

网友评论

丁金群

湖南省 报价:1-1000元/平方米
扫码查看更多案例
点赞
评论
小程序
扫码登录 账号登录
请打开家居杂志客户端“扫一扫”
忘记密码?
还没有通行证帐号?立即注册
其他账号登录: