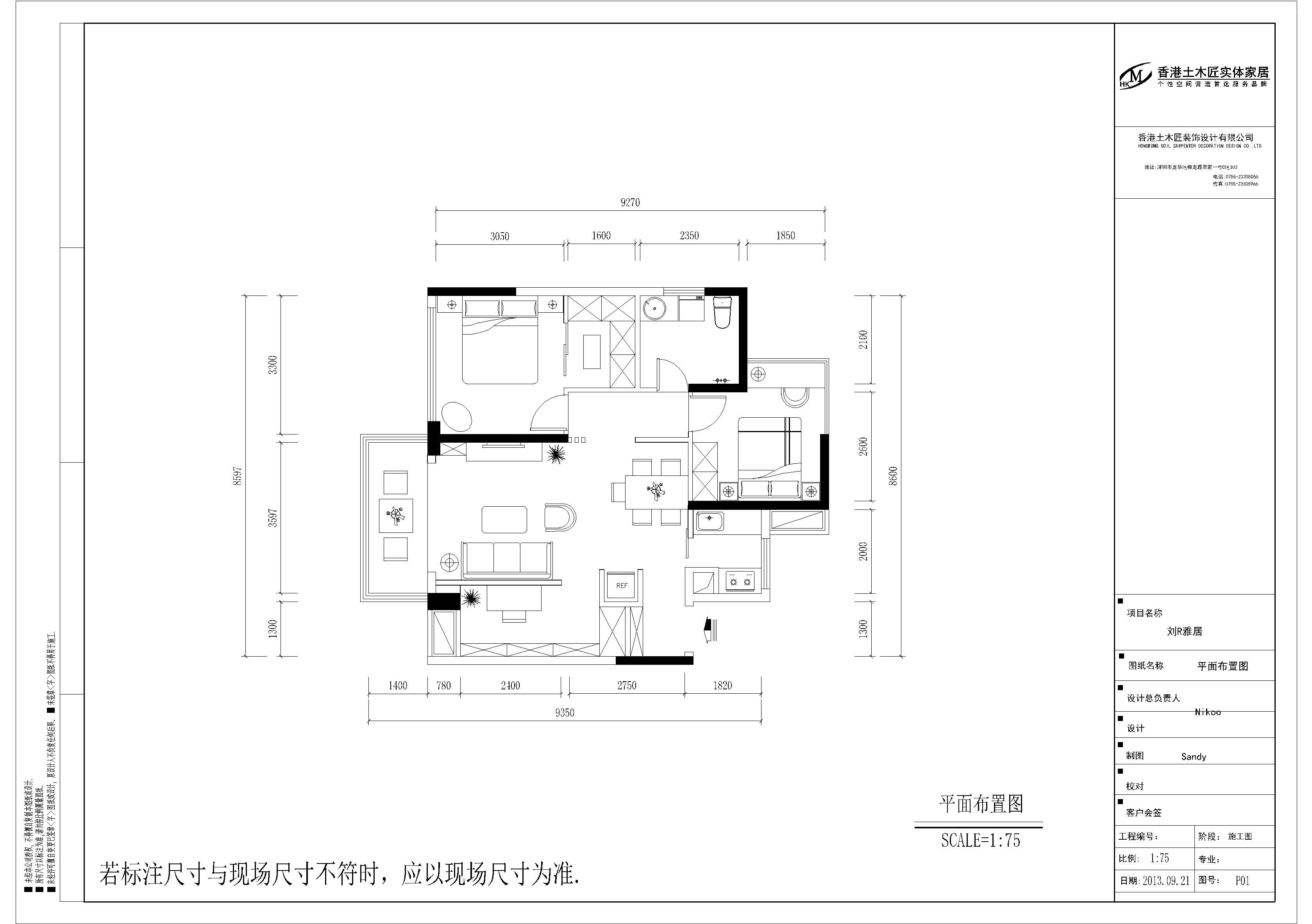
前言: 套内面积65平米,小三房。本案大量运用代表地中海风情的蔚蓝色和纯白色,使用大面积的白色肌理涂料和大纹理的白色木材,把蔚蓝色作为点缀,再结合百叶窗及装饰柜,给人一种海边小屋的舒适感受。该空间设计尽量采用低彩度、线条简单且浑圆的木质家具,沙发及抱枕的布艺特别采用蓝白相间的条形图案,与地中海风情交相辉映。在自然光和灯光的相互作用下,整个空间尽显柔美与舒适。
相关案例推荐
网友评论
管然

粤公网安备 44010602000156号