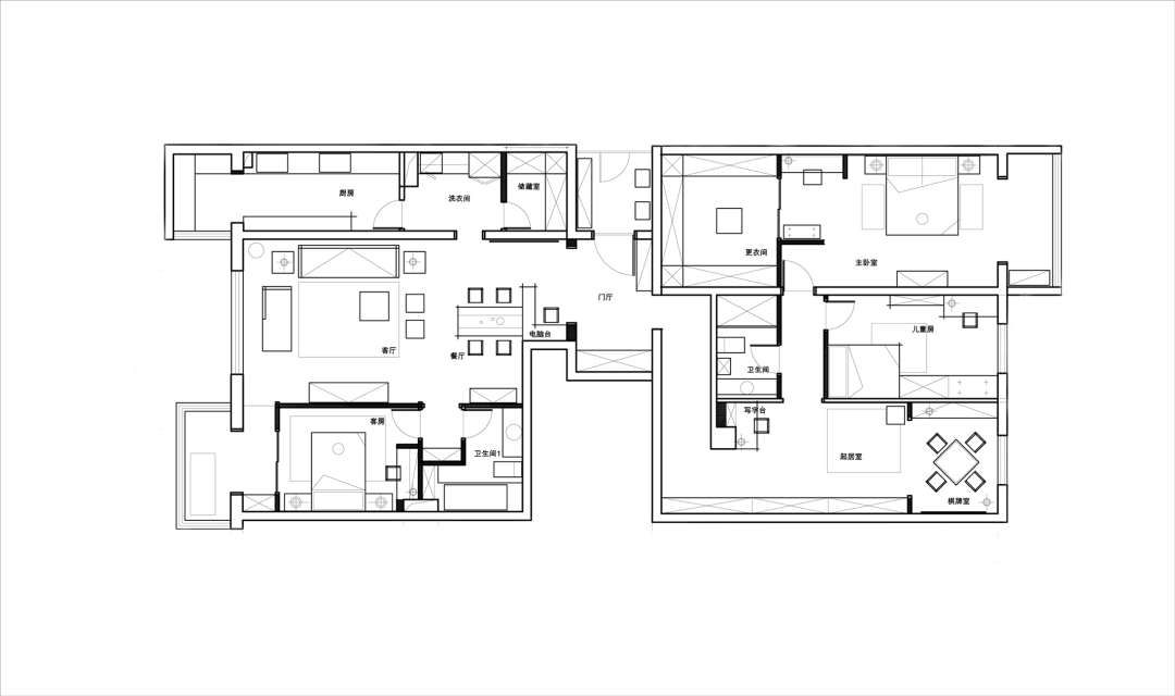
前言:
业主是三口之家,有一个活泼可爱的男孩。对于新家,他们希望有功能全面但不感到拥挤,简约大方也要有生活感,居住舒适持久,风格不会过时。
设计关键词:经典,简约和功能。以木色、灰色、白色为主,带来低调的宁静感,调整配饰,点缀流行色,让家更加生活化。调整格局,实现功能性、实用性,让家更舒适好住。
客厅
客厅的装修并没有太复杂,以木色、白色为主,带来低调的宁静感,电视背景采用和地面一样的地板。
点缀亮色,让家更丰富、有质感。
经典北欧元素,浪漫的白色基调、温暖的木质材料、轻快明亮的家具和灯饰。
厨房
厨房是女主人最喜欢的部分,木色和白色的组合总能让人心情舒畅。
点缀彩色墙砖,为厨房注入清新活力,定制的搁板不仅解决收纳问题,也是墙面的装饰。
冰箱、洗衣机、储物柜的多功能组合区。
餐厅
男主人喜欢上网,可是不想一个人在书房,还是希望和家人在一起。所以利用矮墙的设计隔出一个工作区,有私密感又不会失去和大家其乐融融的机会。
储物、装饰、备餐于一体的餐边柜。
书房
起居室,也是书房,女主人在这里练习瑜伽,所以设计了大面的镜子。当然也少不了大面积的储物柜收纳物品。
为业主特意设计的棋牌室,这样公共空间更像是一个家庭娱乐室。
相关案例推荐
网友评论
肖毅峰
设计师相关作品

粤公网安备 44010602000156号