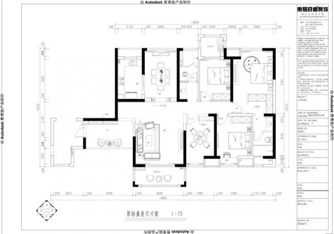
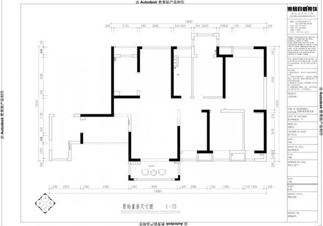
前言: 案例风格:中式 案例面积:168㎡ 家庭成员:一家三口 设计师:曾煌 设计说明:每一种装修风格都有其特定的文化背景作为支撑,以此来传递特定文化氛围中人们的生活追求。那么该中式风格是以中共传统古典文化作为背景的,营造的是极富中国浪漫情调的生活空间,红木,黄花梨,青花瓷,紫衫茶壶以及一些工艺品等都体现了浓郁的东方之美。这正是中式古典主义风格与其他风格所不同之处。渗透了东方华夏几千年的文明,因此中式风格不仅永不过时,而且时间越久越散发出迷人的东方魅力。
相关案例推荐
网友评论
长沙东易日盛装饰

粤公网安备 44010602000156号