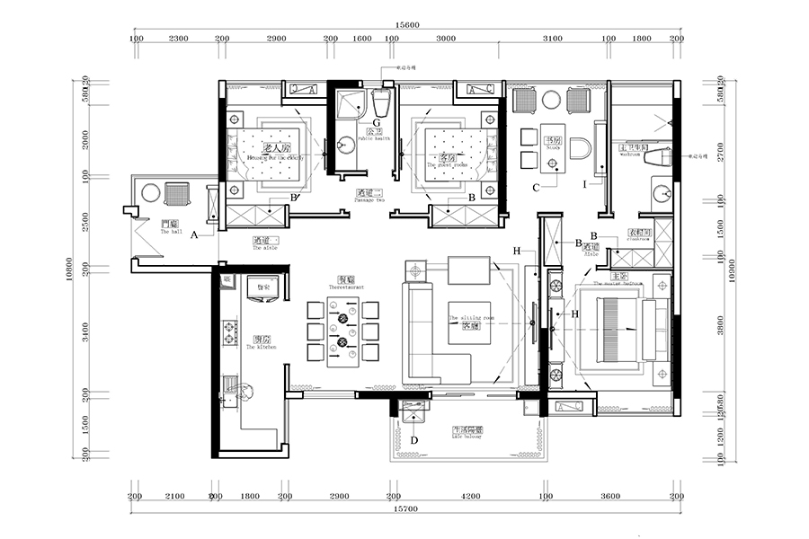
前言: 本案为四居室两厅的平层户型,客餐厅连为一体,无明显分隔,为了尽量突显空间大,在设计时利用色彩营造效果,利用色彩的反射使空间感觉更亮,更大。绿色的采用,给人放松,心旷神怡的感觉。在材料上,选择天然的材质,贴近自然,突出环保,表现出以人为本的思想。大理石的自然纹理,如同一幅山水画,给室内增添了一份接近自然气息,亦如人在画中走。木线的手法,让室内充满现代线条感,自然惬意。丝布,是整个空间融合起来,刚柔结合,充分表现了超自然,崇尚自然的梦想。黑钢的点缀,给室内增添了时尚感,将自然与现代感结合。 从繁重的工作中抽离,回到家中,宛如微风吹过,轻松、和谐的氛围,如同置身了大自然中。梦想中的家,也应如此吧。
相关案例推荐
网友评论
唐桂树/张都

粤公网安备 44010602000156号