前言:
窗外车流奔腾,
回头看到那一宅的简洁、秩序、质感,
和品味恰到好处的相处。
于繁华中,守住了自己的冷静和简单。
About Room:
Design Team:匠诚美艺
Designer:陈莉莉
Decorate Team:匠诚美艺
Address:中天·金融城
Floor Area:150㎡
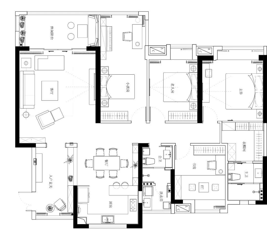
原始平面图
原房情况:功能分区大致合理;板式结构采光和通风良好;整体还是不错的;
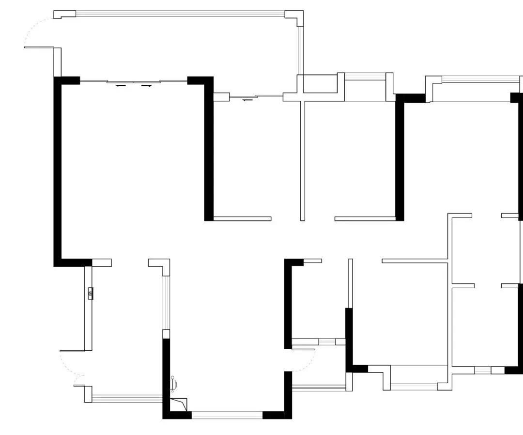
平面布置图
改造亮点:
打造了一个良好的入户体验,让回家第一站变得更加舒服;
利用景观阳台打造了一个良好的学习、休闲和独处的空间;
通过餐厅和厨房的连通营造了一个更便于交流的家庭空间;
扩展了小孩房空间,让孩子有个更完整和宽阔的独立空间;
扩展了生活阳台,打造了更加好用的生活阳台及客卫空间。
本案开工仪式上的画面还历历在目,时间却已经带领我们来到了完工的实景地了,想起开工仪式上男业主那段感人的发言,我们依旧满怀感激,他们怀着对家美好的憧憬,怀着对陈老师的信任,对合作商的信任,选择了我们匠诚美艺。千金难买是信任,因为信任,他们放
公共空间以开放式格局表现大气与奢华,温润有质感。客厅是交际畅谈的空间,是优游自在所处,没有太过于夸张的造型与色彩,简单而有细节的硬装,使整体氛围更加融洽!
电视背景左右两边选用色漆,结合爵士白大理石材,对称的设计与雅白的质感,营造出华丽端庄的电视墙画面。
餐厅延续客厅的风格现代而富有光泽的吊灯以及餐桌椅给空间带来了轻奢的魅力与高级之感。
线条精简的餐桌椅,石材的硬朗与温润的皮革交织在一起,让日子也跟着简单又温柔起来。
主卧(Master Bedroom)
主卧设计高级又端庄,床头拼接背景墙层次分明富有立体感,柔和的色调营造温暖舒适的氛围,金色元素为空间点缀出轻奢质感,生活的格调满满。
精心挑选的吊灯和饰品,使整个空间显露与众不同的摩登时尚。
客房(Guest Room)
在走廊的尽头放上装饰画,让空间不那么死板。
匠诚美艺设计团队介绍匠诚美艺设计团队是贵阳首个创新全案设计团队,全案设计托管服务内容包括了功能布置和风格定位、整体预算编制、 施工过程全程跟踪、主材搭配及落地对接、家具及软装跟进与落地。我们的设计团队按照项目来配置,每一个项目一个主案设计师做整体的把控和协调,搭配一个至两个执行设计师做硬装部分的设计完成、施工跟踪对接,配置一名软装设计师做家具和软装搭配落地。只有一个强大、完善的设计团队才有一个良好的过程和满意的结果,才会有设计想法的充分落地和美好的实景作品的落地。
大家好,我们是匠诚美艺DESIGN
联系我们
TEL: 08518555
相关案例推荐
陈莉莉
设计师相关作品

粤公网安备 44010602000156号