前言:
“吾居无束,自由自宅”
层次悦动梦想,未来为你而来!
在都市核心中,拥有梦想空间,成就理想生活!
我们的生活就要1+1>2……
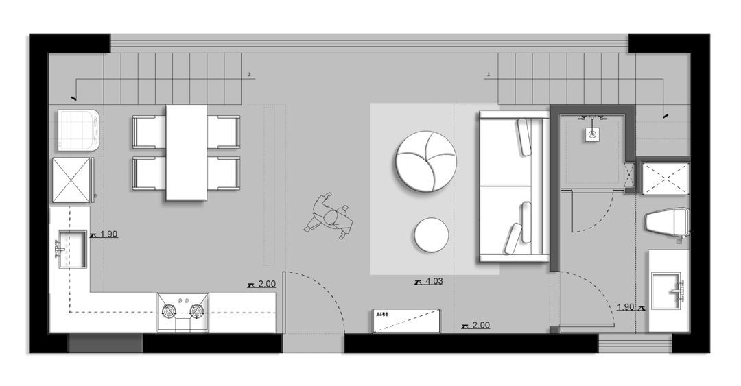
户型图
在层高只有3m的小小空间中,一层是生活区,厨餐厅合二为一,最大限度的释放了客厅的空间,将卫生间设置在了楼梯下面。
为了保留户型原有的圆弧形玻璃窗,特意将阁楼一分为二,分布在两侧,从两侧的楼梯分别拾级而上,既可以设置成卧室+书房的模式,也是变身为两间卧室,满足不同业主的需求!
客厅
靠窗一侧的小楼梯拾级而上,是屋主的卧室。
巨大的圆弧玻璃窗、浪漫的白纱,光线充足倾泻而下,充分的感受着阳光带来的美好!
绿色的背景墙和橡皮粉的单椅,遥相呼应,强烈的视觉冲击让人感受到了年轻的雀跃!
从二层往下眺望,看到斑驳的光影,映衬着宁静的午后……
黑白组合的圆形茶几,简约而又实用。
网友评论
80后设计师| Lisa
设计师相关作品

粤公网安备 44010602000156号