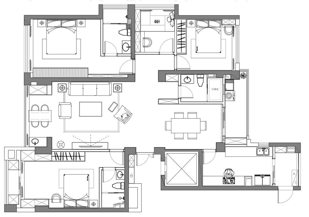
前言:
这是业主的第二套房,一家四口,考虑到原来那套的装修有些年份,所以希望这套房能够装修的简洁大方,便于打理卫生,又不失现代感。考虑到家里常会有亲朋好友来访,在功能需求上,希望有一个客房,能有一个大餐厅招待客人,平时疲惫的时候,在家可以享受汗蒸,舒缓一天的疲惫。
鉴于客户汗蒸和泡茶的需求,分别在卫生间划出一个汗蒸空间,在客厅划出泡茶的休闲空间。再规划一个多功能房,用于有客人来留宿只用,平时可作为书房使用。最大的难点就在于餐厅的尺寸不足,为此将备餐柜与墙面齐平,既保证了餐厅的空间,又完善了餐厅存储的需求。
客厅在左,餐厅在右,备餐柜采用对称的形式,与另一端相呼应。地面采用铺贴瓷砖设计,便于女主人日常打扫,在灯光的映衬下,隐约中略带高级感~
一组真皮沙发,是业主的最爱,地面条纹地毯,让客厅更有暖意。茶几和餐桌都采用流行岩板造型。
客厅和餐厅采用无吊灯设计,全屋房门采用统一材质,增强协调感,次卧房门采用隐形设计,加宽了电视背景墙的长度,让整个客厅更显大气。电视内嵌于大理石中,电视柜采用悬空设计,打破传统落地设计。
餐厅背景墙的长度和宽度都不够,考虑到业主家中常有亲朋好友拜访,所以在保证足够的用餐空间的前提下,将备餐柜设计成背景墙的一部分,满足了业主存储需求又保证了充足的用餐体验感。
通过这个视角就更能感受到备餐柜设计的巧妙之处,同时采用对称式备餐柜设计,让人很难发现其中一个是假的备餐柜。两边充裕的空间,让这小餐厅,显得富裕了许多。
简单的一个花摆件,让生活更有色彩~
超薄的岩板餐桌,更能透露出主人不一样的品味。推拉门采用双层玻璃设计,玻璃中间嵌入窗帘,光线的调节只在一指之间,非常的方便实用。
相关案例推荐
姚爱英
设计师相关作品

粤公网安备 44010602000156号