前言:
									本案的屋主是一个很有想法的夫妻,他们有一个可爱的小公主. 他们对于生活的想法: 「简约、舒适、低调而内敛的生活,同时又不失高贵与奢华.」
本案设计采用现代轻奢与美式风尚的结合,在舒适的环境中融入生态品质的生活理念,追求理想的温暖生活态度。简单的幸福感是业主追求的,即使是每日忙碌的业主也渴望得到家的温暖,同时坚持着生活的要求.
									
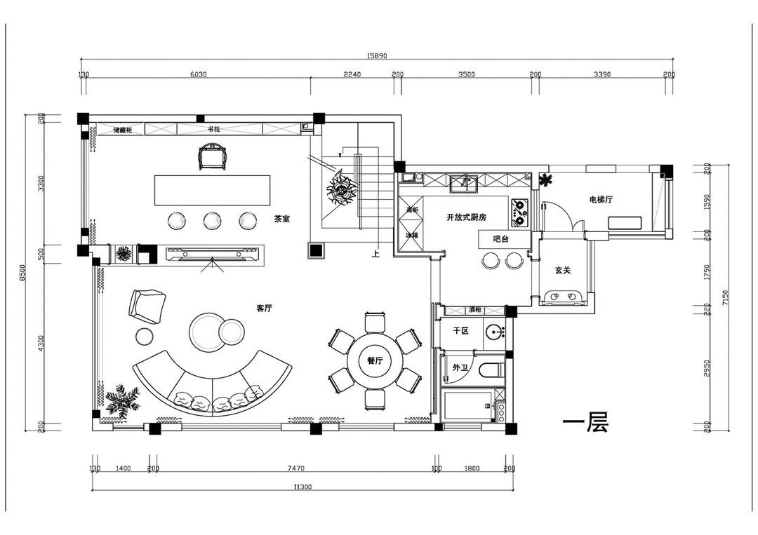
										客厅
										
											
											
										
											
											
										
											
											
										
											
											
								
							
								
									
								
							
								
									
								
							
								
									
								
							
								
									
								
							
								
									
								
							
								
									
								
							
						借助大面积的落地窗.将光线引入室内,配合灰色的基底.白色的大理石.墙面的金属线条.使室内空间更加丰富.肌理细腻.
客厅与书房做了半开放式的链接,把公共空间与私人空间通过这样的载体做了个分离又同时融汇在整体空间中。书房结合了中式的元素,中国红的开放式书柜,榫卯拼接的新中式茶椅,搭配个性独特的牛皮鼓凳,体现出了业主的个人审美品味,在此与友人共饮一杯清茶,聊聊生活琐事,惬哉。
相关案例推荐
网友评论
						
						
						
						
                        
						
						吴健
 
 
 
												
													
														
															
																 
												
													
														
															
																 
												
													
														
															
																 
												
													
														
															
																 
												
													
														
															
																 
												
													
														
															
																 
												
													
														
															
																 
												
													
														
															
																 
												
													
														
															
																 
												
													
														
															
																 
												
													
														
															
																 
												
													
														
															
																 
												
													
														
															
																 
												
													
														
															
																 
												
													
														
															
																 
												
													
														
															
																 
												
													
														
															
																 
												
													
														
															
																 
												
													
														
															
																 
                                                     
                                                         
                                                     
                                                         
                                                     
                                                         
                                                     
                                                         
                                                     
                                                         
                                                     
                                                         
											
										 
											 
														 
														 
														 
														 
														 
				 
                
 粤公网安备 44010602000156号
粤公网安备 44010602000156号