前言:
退休夫妻购置的新房,二老自己住,只有一个出嫁了的女儿偶尔带外孙来玩。对房间个数要求不高,要求宽敞明亮,简洁大方。
整体设计采用现代新中式的风格,没有一些冗杂的装饰设计,注重于格局规划和功能分配,以胡桃木和艺术漆作为饰面材料,减少大理石的冰冷感,以米色调为基准,用软装及画增加空间的活力,带动出禅意中含蓄的雅致。
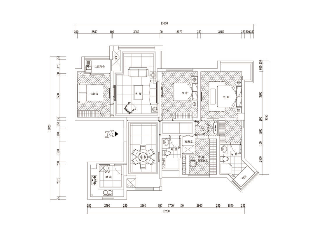
户型图
卫生间
阳台
相关案例推荐
网友评论
王舒森

粤公网安备 44010602000156号