前言:
其实,人生本来就是一个慢慢删减繁琐变得简单的过程,我们的生活,无不是从豪华美丽到醇厚朴实,从繁琐重复到简约,也从复杂再到简单,回归到生活最初的模样,抛开不重要的99%,简单归零才是完美的状态。
本案的屋主在沟通的过程中,我们了解到他们向往的世界是简单的,希望在进入家门的那一刻就能得到宁静。同时造型又得是精致耐看的设计感,希望目光所及的都是生活的小惊喜。
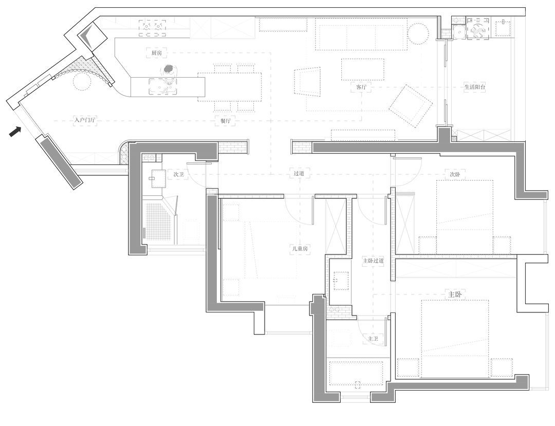
常住人口是一家三口,女主人大部分时间独自在家,同时要辅导孩子的学习和照顾男主人的生活起居,所以需要尽可能多的储物空间,并且为了增强家人的情感互动性,我们打开了厨房,让家人之间的交流更加通畅。
独立且通透的玄关
打通原有的与客厅之间的隔断墙面,大面积采用全通透的形式,一秒打破空间闭塞,原本阴暗的采光被改善
开放式餐厨一体
改变了原始户型的一个房中房形式的厨房,将厨房、餐厅、客厅融合为一体,打造成开放式厨餐一体,改善原有的采光差通风差的问题
增设多功能阳台
在不影响采光的情况下,增设了洗手台,拖把池,储物柜,洗衣机柜,充分利用空间,为女主人照料家人的生活起居,打造出舒适的空间
玄关区域拆除原本在室内形成阴角的墙体,巧妙运用曲线实现了玄关向室内的过度,将客厅良好的采光引入到玄关,同时延申了入户时的视线,拉宽了空间感,
曲面墙用浅色线条软包饰面,搭配精致的石材地面,营造了一份安静又不失美好的空间质感
客厅整体以极浅的灰白作为墙面的基底,在大面积的灰白空间下,加入蓝灰,红棕和米咖的软搭作为空间印象色,整个配色在一柔一刚,一静一动的融合里,既让空间有了故事性,同时丰富了空间的色彩层次
沙发的造型选用极具复古和典雅感,画龙点睛般的衬托出空间的精致的艺术感
厨房是女主人最能提升幸福感的地方,我们尽可能多的给予到厨房功能性,将原结构独立闭塞的厨房空间改造成开放式餐厨一体,极大增强了家的温馨感,空间也更为宽广通透,强调了一家人的互动性
忙碌了一天的家人们,在餐桌盘守候着女主人为他们准备精致的晚餐,一起品尝着生活的惬意与悠闲
卫生间是标准的干湿分离的形式,清浅的大理石台面上点缀着一支绿植,屋主人早晨起床洗漱时,映入眼帘的一摸活力,温馨而美好。
次卫做了镜柜,怕小朋友的东西会乱扔,到时候有客人来了来不及打扫的时候,也可以先全部放进去,次卫还做了壁龛,收纳空间也是非常可观的。
主卧的配色选用低饱和度的湖泊蓝为整个空间做底,搭配米咖的床头装饰以及红棕色的床品,为惬意幽静的空间加上一抹律动的色彩,到下午的时候,阳光透过来,整个房间显得暖烘烘的,温柔地包裹住着屋里的人们
次卧采用的是非常干净清爽的蓝色,有利于缓解人的疲劳,放上一束鲜艳的红色花朵,避免空间的颜色太过单调。
相关案例推荐
咫尺设计
设计师相关作品

粤公网安备 44010602000156号