方界设计|那一抹蓝
前言:
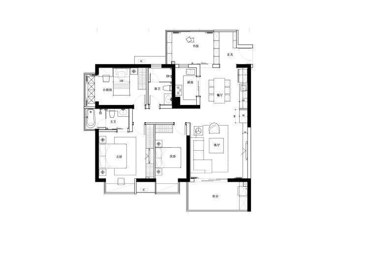
项目简介:
名称:那一抹蓝
地址:深圳南山星海名城
面积:125㎡
设计:深圳方界设计顾问有限公司
主案设计师:田婧婧
设计背景:
男主人白天上班,闲余时候喜欢看看书沉淀自己。
女主人是名老师,平时在家也做做小点心,有空会邀请朋友来家喝个下午茶。
小主人是个四岁的小男孩,上着幼儿园。
房子使用情况:
两代人居住,偶尔父母或朋友会来居住。男主人需要书房,女主人需要储藏空间。有个四岁的小男孩,需要活动空间,暂不考虑二胎。
对家的诠释,每个人都有自己的理解,当然最为基础的功能避免不了的基础上应该还有赋予个人的情感与居住者的特别需求,业主希望空间尽量都用浅色调,女主人从事和艺术相关的工作也较能接受新事物,整个沟通过程都非常的愉快,出来效果家人都挺满意的。硬装造价32W,软装10W,合计42W。
现在的书房早期时女主人考虑过做成榻榻米,后面沟通还是搭出了个书桌出来。其次主卧室的衣柜里原本考虑嵌入的一个电视后也取消了,男女主人说家里基本也不怎么看电视,需要柜子收纳取了最后的决定。整个空间最终呈现基本达到我们的预期,特别是储物的考虑,业主还是相当满意的。
……客厅……每个人对于家的印象都不一样,是香喷喷的饭菜味,是家人间絮絮叨叨的谈话声,还是和孩子打打闹闹的场景。
基本都是以白色调来作为空间的主色调,在软装我们搭配了蓝色来点缀空间,墙面的油画组合挂画是女主人的最爱。家里储物空间要够是初见两人提得最多的关键词,在做的过程中我们把柜体与造型结合在了一起,包括现在居住也反馈,家里确实很容易收拾且不会显凌乱。
……餐厅……家--最温馨印象最深的一幕大概就是一家人在餐桌上大快朵颐,吃着香喷喷的饭菜,聊着身边的琐碎小事。
一本书,一杯水,一处生活。
餐厅与厨房之间采用可视推拉门,保证视觉空间的通透性。左侧的水吧台起了很大的作用,与右侧的厨房同时服务于餐厅空间,洗水果或者家人客人来时泡茶等都在水吧台解决了。
……主卧……主卧室,一面墙的衣柜储物收纳,卧室的蓝与客厅做到延伸,素雅中带着个性。
临窗的书桌,偶尔书房两个办公同时这里也可以解决一个人的工作空间。
……次卧……生活简简单单,舒服就好。
浅色棉麻搭配深色地板,简简单单,属于自己的一方天地不需太多繁杂。
相关案例推荐
方界设计
设计师相关作品

粤公网安备 44010602000156号