161㎡轻奢混搭,时尚大气之旅
前言: 本案为161㎡的复式楼,该案子角色房子主人是一对30岁的年轻夫妇,丈夫是一位平面设计师,妻子是一位教师,虽然教师这个职业给人的感觉非常的规正严肃,但是在她妻子身上一点都没有感受到这种气息,反而很时尚热情嘞,夫妻二人对于生活的居住品质要求非常的高,喜欢奢华质感的样式,但需避免过于的奢华显得俗气,确定了轻奢混搭的风格,奢华中带着时尚的气息。
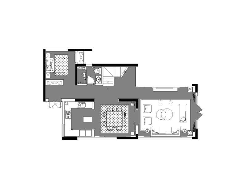
一楼平面布置图。后期施工将平面做了一些优化,公众活动空间以半开放式为主,保有各自独立的空间,却又相互衔接,增加了家人之间的互动性。业主想要更自由的厨房空间,所以将厨房中岛去掉了,选择了更有仪式感的长形餐桌。
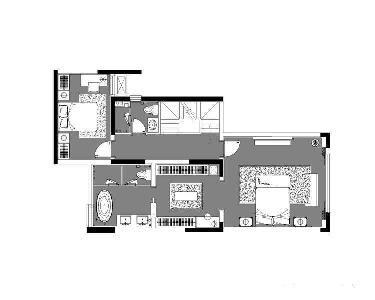
二楼平面布置图。二楼还是初定的平面,主卧以舒适与享受为主,化妆镜放置于衣帽间中,独立的衣帽间解决了很大的储存问题,浴室干湿分离,可沐浴兼可淋浴。
客厅以白色与香槟色为基础色调,让客厅风格显得干净明快,灵动的金属光泽巧妙地塑造了客厅的空间感,让客厅的视觉空间得到了极好的延伸和拓展。明亮的主色调搭配鲜艳蓝色的点缀,让客厅在充足的光线下焕发出充沛的朝气与活力,令人感到温暖而舒畅。
米白色的真皮沙发柔软舒适,富有层次的皮革质感让客厅空间的光线更添柔和与灵动。北欧风格的黑罩台灯搭配极具线条感的艺术饰品,各色抱枕色彩层次的变化,丰富的组合突破了大面积白色与香槟色带来的虚浮质感,让视觉动线更加温和清爽。
电视墙背景采用屏风样式的设计,利用石纹瓷砖突出电视墙的质感,厚重而沉稳,细腻的色泽与客厅环境完美融为一体,简约的色调,素雅的背景,让电视墙周围的空间显得宽阔而简洁,绿植与艺术画等饰品的加入让其多了色彩与质感的变化,避免了色调的单一与视觉上过于的空旷。
真皮与布艺质感的沙发,金属质感的茶几与吊灯,绒毛地毯,木制电视柜,玻璃器皿......装修材质多样化的综合运用让材料之间的层次更加丰富,刚与柔,光与暗,虚与实,轻与重的对比更加清晰,利用材质的差异化极大地充实了视觉感受,体会到不同质感带来的多重体验。
宽阔的落地窗设计让阳光肆意地洒向客厅的每一处角落,极大地改善了室内的采光效果,充足的光线令纯色搭配的空间显得更加干净明亮,纯洁如一尘不染,搭配多样化的灯具组合,形成多层次的光源补充,让光明与温暖永远停驻其间。
客厅与餐厅之间象征性利用墙体作为功能区的划分,通透的功能区布局令主体空间显得更加开阔。造型独特的创意壁灯让单调的墙面焕发出新奇的审美趣味,作为光源补充的同时,也可作为艺术装饰点缀空间。
餐厅大量运用金属与玻璃的材质让整个空间显得富丽堂皇,明亮璀璨,闪烁的光芒之中荡漾出优雅与精致。白色与香槟色的运用简约而不张扬,低调的色彩之中蕴含着奢华的高级质感,令人一见倾心。
宝石蓝的丝绒座椅色泽低调内敛,造型古典而华美,设计线条柔和精致,弧线形的椅腿与直线型的餐桌支架相呼应,洁白细腻的餐厅桌面映衬淡雅的蓝花地毯,餐厅空间奢华的风格之中又巧妙添加一丝清新,相得益彰。
极具后现代主义风格的太阳壁镜极具艺术气息,既改善了白墙带给人的单调感受,增添了视觉层次,又让餐厅空间得到了延伸,增添了灵动的视觉感受。
欧式风格的楼梯旋转而上,清爽简洁的线条仿佛雕塑一般的艺术品,令人舒畅。厚重的石纹瓷砖沉稳而淡雅,金属质感的踢脚线让视觉动线显得更加充满活力,带有一丝俏皮的意味。色彩鲜明的壁画组合为奢华的空间之中增添了更多的艺术气息,柔和的质感中和了金属、瓷砖的冷硬,带来更舒适的审美享受。
楼梯的照明采用吊灯与壁灯的组合光源,多层次多方位的光线让楼梯的照明没有一丝死角,温和明亮的光线点亮楼道的每一个角落。金属底座与水晶灯饰的搭配更增添了光线的朦胧之态,圣洁而华美。
卧室以森系色调为主,自然清新,营造出更加放松而舒适的休息环境。浅色系的床头背景墙与深色的床品形成色彩的对比,一明一暗,一深一浅,鲜明的差异化表达让视觉层次更加丰富。造型简约的金属台灯,典雅细的线条透露出精巧的美感,金属的光泽为卧室空间增添了几分灵动,搭配极具金属线条感的床头桌,让每一次的使用都恰好符合手臂伸展的舒适角度,从细节出发打造美好生活。
大大的飘窗保证了卧室充足的光线,如果喜欢阳光,每天都可以被阳光轻柔的唤醒。若不想被阳光打扰,只需轻轻拉上窗帘,便可享受属于自己的私密空间。吊顶的圆形欧式复古灯别具一格,让卧室仿佛欧洲古堡一般。窗边的长躺椅和座椅,一方面方便主人在卧室会客,另一方面也可供主人在卧室小憩。屋内的各种摆饰让卧室氛围生动活泼不少,床头的金属材质饰品更是带来了灵动的气息。
主卧的电视背景墙与客厅的电视背景墙采用了相似的设计,二者遥相呼应,细腻的瓷砖质感搭配粗犷的石纹图样,映衬着木纹地板与灰色的毛绒地毯的搭配,对比的冲突极富张力。
布纹毛绒地毯紧紧贴合着原木色木质地板,打造出了一方茶歇天地。金属材质的桌面光亮照人,同时映射着室外的阳光,镜面反射的原理让桌面看起来干净整洁,透着清澈干净。黑色的桌台显得沉稳,与金属的桌面一明一暗,强烈的色彩对比让人眼前一亮也增加的室内的色彩饱和度。大大的窗户保证了充足的光源,让室内到处透着阳光的味道。桌上一束花、一杯茶、一本书,让人感到舒适而宁静。
客卧。客卧以暖色调为主体,温馨自然,有助于留宿的客人安然如梦。地上铺设着柔软的地毯,既美观又起到消音的作用,夜晚在房内走动也不会打扰到别人。天花板的光源柔和而不刺眼,除了能提供充足的光亮,LED的灯光寿命更加持久且省电。床上大大小小的靠枕可以轻易消除客人的疲劳,墙上后现代主义风格的画作让客卧环境透露着淡淡艺术的味道。两边壁挂式的衣柜,节省了室内空间,玻璃柜门设计让空间更加通透,提升了客卧的整体亮度,淡蓝色的灯光打在衣柜上,梦幻且朦胧。
红蓝色高对比度的壁画挂在墙面,让客卧的色彩层次更加丰富,跳跃的色彩活泼生动,使客卧静中有动,动静结合。金属的台灯、金属的桌脚、金属的镜框、金属的装饰,这一连串金属元素的运用让这一角落更加灵动。灰白色软椅和白色桌面,冷色调的调和让人可以安静下来。
衣橱采用壁挂的形式,为卧室节省了部分空间,设计精致。玻璃材质的壁橱更显通透,让衣柜看起来更有光泽度、更时尚,它融合时尚的现代类型和传统装饰,象征着主人的生活品味。衣柜下的空间巧妙的用木质横板打造成了简易台面,节省了床头柜的费用,又简约耐用。衣柜旁的垂吊灯泡,实用而具有美感,在夜间为人们提供光线的便利。
客卧2。真皮的床头靠背搭配各色靠枕,看到便让人感到温暖舒适。墙上竖条形的画作,仿佛具有催眠的作用,装点房间也让房间有了一丝静谧的气氛。两边的靠墙床头柜,一体而多层,增大了存储面积也让客卧看起来更加通透,没有逼仄的感觉。
壁橱上的饰物多种多样,金属多边形海胆形装饰品,让房间多了一股张扬的意味,相框则让房间透露出生活的气息。床下的毛绒地毯温暖轻柔,即使光脚踩在地面也不觉寒冷了。卧床正对窗户,不偏不倚,每日清晨拉开窗帘,阳光洒入,带给人一整天的美好心情。
主卧衣帽间黑白色调的强烈对比让空间富有视觉层次感。洁白的墙面干净整洁,顶上的内嵌点射式光源让室内充斥着柔和的灯光,打造出一个温和舒适的私人空间。黑色的衣柜和梳妆台贴墙而立,黑色干净耐脏,衣柜分割空间的设计,不仅增大了存储面积,也让用户可以更为轻而易举的找到衣物所在。玻璃材质的长凳上套着白色毛绒凳罩与地面的白色地毯相呼应,既实用又美丽。梳妆台上的大大玻璃镜让主人可以全方位映照出自己的身影,台上的黄色小雏菊为整个衣帽间增添了一丝自然的气息。
主卧浴室以大理石瓷砖为主体,配合天花板内嵌式Led光源,让浴室显得温暖整洁而舒适。小窗的设计是为了让浴室可以自然通风,保持干燥,也有助于浴后散去浴室氤氲的水汽。浴室提供了浴缸以及淋浴,可以自由选择,既可以舒舒服服泡个热水澡,也可以追求速度冲个凉。浴缸旁放置圆型坐墩,为了让人进出浴缸时有所依扶不致滑倒,体现出设计者的人文关怀,淋浴间的透明设计,既实现了干湿分离的功能区划分,又让卫生间显得更加通透明亮。
洗手池上的毛巾摆放整齐而有序,体现出五星酒店般的设计。大大的壁镜让浴室更为开阔,洗手台下的几个抽屉则增大了浴室的收纳面积,可以放置零碎物品。浴缸上贴心放置了毛巾,洗浴时可以铺在地上,以防进出浴缸时滑倒。大理石材质的使用让浴室整洁易打扫,也在不经意间体现出简易风格的美感。
公卫以灰白色石纹瓷砖为主体,令卫生间显得更加干净整洁,内部空间纹理和谐而淡雅。细腻的白瓷卫具搭配艺术壁画为卫生间带来清新的气息,宽阔的壁镜拉伸了空间广度,拓展了视觉空间,内嵌的led灯带来充足的光源补充,让整个空间显得更加明亮。
淋浴间的透明设计,既实现了干湿分离的功能区划分,又让卫生间显得更加通透明亮,有效缓解了干区湿区分割之后,卫生间的有限空间带来的压迫感,带来更加宽阔的视觉效果。
相关案例推荐
方界设计
设计师相关作品

粤公网安备 44010602000156号