前言:
一城一清静,一墅一繁华.
近享城市繁华,静享郊墅如画,城与墅的爱恋,有距离,才更美!
在本项目的设计之中,优良的结构改造是必然的一个漫长过程,我们更多的是注重人文,一墅一景,三代同堂,能让三代主人都静溢在一墅里面常温,是我们必不可少的己任和使命.
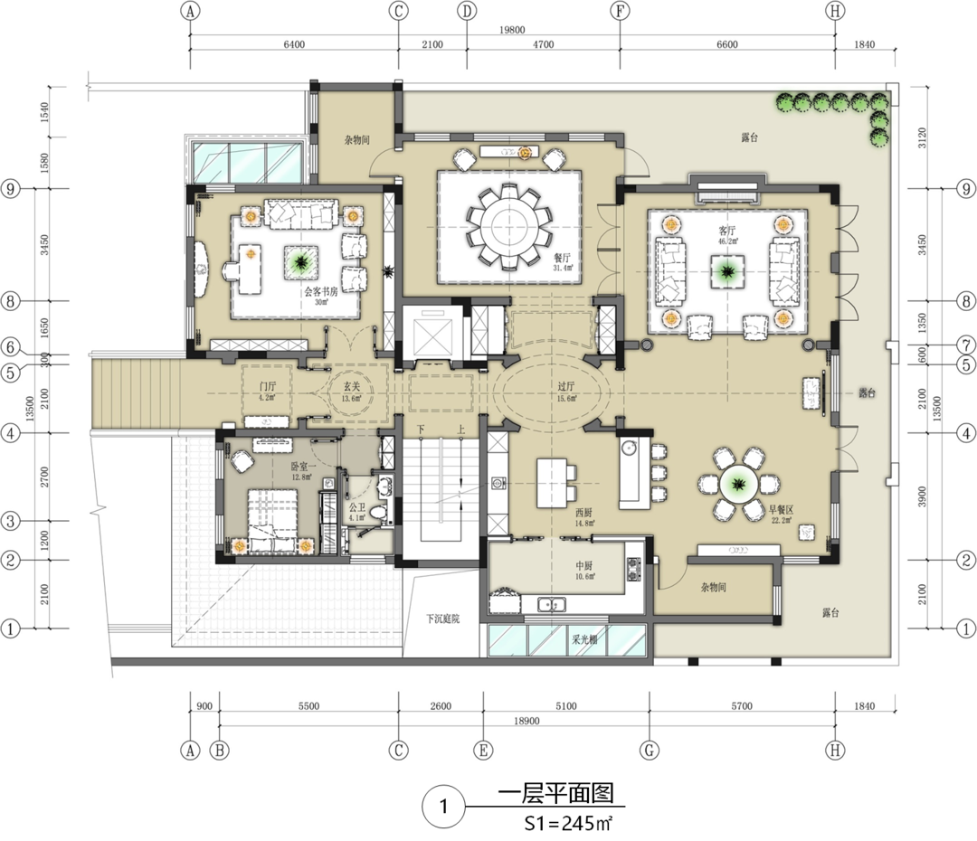
启起,我们划分风格的定位而不同异,一二层给予青年代使用,我们采用的是轻奢简欧风格,常在海外生活的年轻主人,我们使用的风格很贴切,很自然的融入他们的实际生活,很美好,没有磨合,至简!
负一楼给予长辈使用区域,新中式的定位,庄严却不庄重,威严却不威武,也贴合长辈的交际朋友圈,同时禅意的文化,酒香的生活气息都蔓延在这里呈现,格调倍现!
楼上的睡眠区域,都保留了生活的起居室,难能可贵的是都拥有一个会客室,一家的亲子时间温馨且温暖,体现出各自对家人的凝聚和爱意!
理想住宅的第一个条件;是房子都要建在高处有土有植物.
理想住宅的第二个条件;是人住在里面应该能感知春夏秋冬四季的变化;能亲品自然的味道.
理想住宅的第三个条件;就是风;不管是什么样的新建筑;自然的风斗士应该进入建筑;这是好建筑的一个重要条件.
相关案例推荐
网友评论
危小飞
设计师相关作品

粤公网安备 44010602000156号